Streamer tracing shadow, quiet time such as mail
作品详情
  • Details of the work 标题横线
    头像或者logo
    图片 温州水木设计 橙设传媒特约推荐
    城市:温州
    公司:温州水木设计
    参赛作品: 流光溯影,静时如寄
    空间类型:公寓(150㎡以下)
    个人/公司简介:
    水木设计, 是一个成立于瑞安的室内高端私人定制机构,始创于2015年, 主要从事于室内设计和装饰、装修,提供住宅与公共空间室内设计及施工服务。我们将设计与施工一体化,致力于完善客户委托的设计方案,从了解客户的风格爱好、分析客户的实际需求、探索设计背后想完成的目的与效益,更专业地为客户提供独一无二的装饰体验。 水木是两种属性, 柔软和坚韧, 宏观来说是一种包容, 旨在召集更多热爱设计的人, 一起为中国设计力量发声. 微观来讲, 是两个单独的个体, 介于彼此的转换, 是内心的自我对峙, 是感性和理性的共同体, 是一种真实、矛盾和依存的状态. 秉承着 “让你的梦想变成现实”的设计理念,为更多的业主提供最优质的服务,“设计型”公司就是我们的代言词。
    设计说明 | Design Instruction
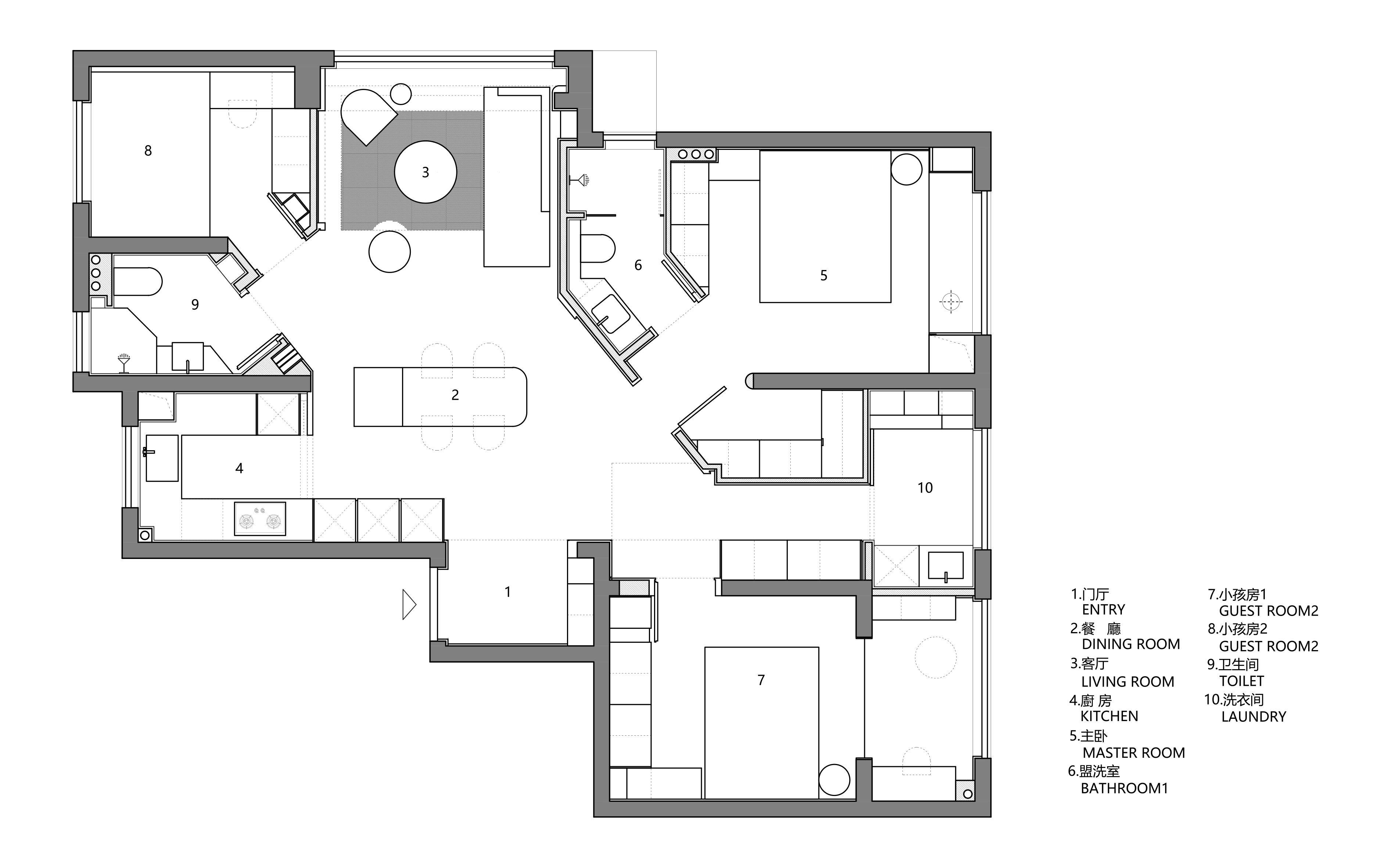
  • 项目为一家四口的居所,在空间面积有限,且原始承重墙较多,话语权较重的情况下,需要满足三个卧室与两个卫生间的必要需求,设计师不得不在平面的改动中做更大胆地推敲。 释放空间 在拆除绝大多数可被拆卸的立面之后,空间释放,我们得以清晰地感知场所的原始状态。 业主希望空间呈现开阔通透的效果,但碍于承重墙体的存在,空间被肢解地零散且紧凑。在既定条件无法更改的情况下,我们采用斜向分割的方式,联通客餐厅区域,扩展公区视觉上的延伸感,同时又能保有私密区域的独立属性。 色彩诠释 在色彩的使用中,大面积的米白色填充提升明度,辅以黑灰色用以层次的过渡。克制地使用色彩为空间留白,使其能够承载日后渐次丰盈的生活需求。 原本逼仄狭长的过道被敞开后,通过自然光与人造光的协同合作,打造层次分明且极富变幻的光线体验。与此同时,行走在空间中的痕迹也因此而变得更容易被家庭成员捕捉,建立起易于沟通的互动场景。 客厅背景墙后方被剖出一间小卧室,地面抬高成床,极大地节约了空间面积的使用,而暗藏的灯光配合柔和的曲面,弱化突兀的承重结构同时,化解小空间的单调感,创造细节处的温暖火光。 形态分割 斜向步入的方式为卧室的展开形成缓冲,自然呈现明暗交替的光线分界,视线也得以短暂地逡巡。 黑色木饰面作为主卧的背景,成为空间中的重色,赋予其沉淀感,同时布置线性暖色光源穿插其间,平衡突然的色彩变化带来的视觉陌生性,赋予纯净空间柔和温暖的感知力。 用相同的色彩方案传递空间整体的概念,围绕客厅为中心,依次布局三间卧室,搭建平衡便捷的使用动线。 居所之间,以室为安,静谧而有力量的寝居空间成为家的灵魂所在,当克制的笔触落于由点线面构成的四方宅所,得栖身心才是最重要的答案。 我们从整体的眼光去全览布局,仔细规划空间的边角细节,从而得到一个满足四口之家居住的温暖之所。 空间寂静无声,却有着强大的包容力,随光流转,溯影婆娑,设计的意义,便是在既有的束缚中,破茧而出,重构居住的崭新形态。
  • 图片
  • 图片
  • 图片
  • 图片
  • 图片
  • 图片
  • 图片
  • 图片
  • 图片
  • 图片
  • 图片
  • 图片
  • 图片
  • 图片
  • 图片
  • 图片
  • 图片
  • 图片
  • 图片
  • 图片
  • 图片
  • 图片
  • 图片
  • 图片
  • 图片
  • 图片
  • 图片
  • 图片
  • 图片
  • 图片
  • 图片
  • 图片
  • 图片
  • 图片
  • 上一个 下一个
    2024第八届金腾奖 私宅(独居)丨私宅(多人居)丨餐饮丨酒店丨办公丨商业丨公共丨公益丨人物丨NEW100 jintengAWARD(小金_金腾奖组委会) 广州市海珠区琶洲大道68号华新中心21楼
    金腾奖视频号 金腾奖小红书号 监制:刘译遥
    统筹:张俊媚
    运营:赖钰炼 曹凯月 刘芳棋 小金
    新媒体:王贝贝 严洁 张文一
    技术:黄天佑 丁德昌
    最终解释权归金腾奖主办方所有