There is a trade-off, but there is a gap
作品详情
  • Details of the work 标题横线
    头像或者logo
    图片 温州水木设计 橙设传媒特约推荐
    城市:温州
    公司:温州水木设计
    参赛作品: 取舍有得,空盈有间
    空间类型:公寓(150㎡以下)
    个人/公司简介:
    水木设计, 是一个成立于瑞安的室内高端私人定制机构,始创于2015年, 主要从事于室内设计和装饰、装修,提供住宅与公共空间室内设计及施工服务。我们将设计与施工一体化,致力于完善客户委托的设计方案,从了解客户的风格爱好、分析客户的实际需求、探索设计背后想完成的目的与效益,更专业地为客户提供独一无二的装饰体验。 水木是两种属性, 柔软和坚韧, 宏观来说是一种包容, 旨在召集更多热爱设计的人, 一起为中国设计力量发声. 微观来讲, 是两个单独的个体, 介于彼此的转换, 是内心的自我对峙, 是感性和理性的共同体, 是一种真实、矛盾和依存的状态. 秉承着 “让你的梦想变成现实”的设计理念,为更多的业主提供最优质的服务,“设计型”公司就是我们的代言词。
    设计说明 | Design Instruction
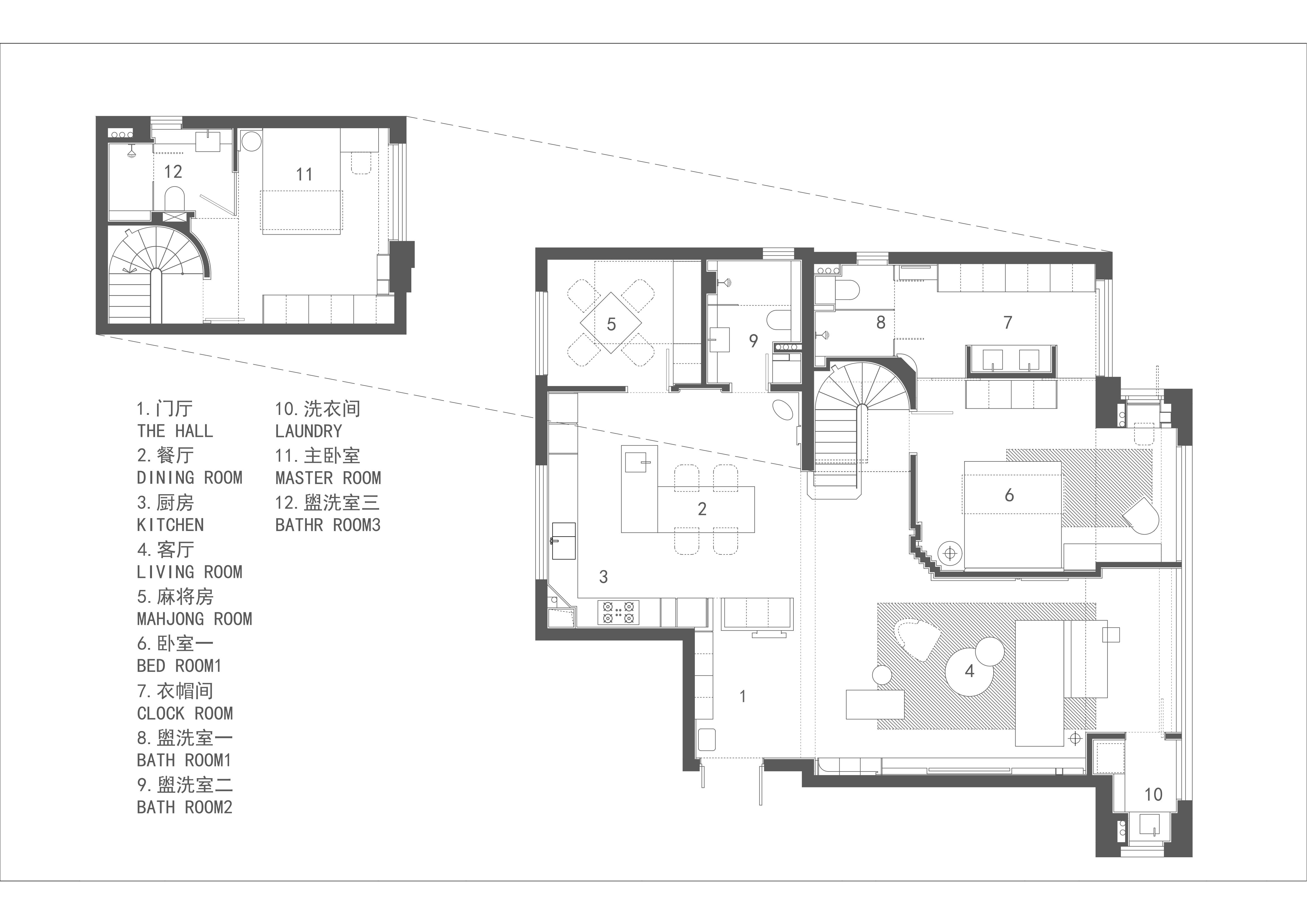
  • 水木设计此次的作品,是一个年轻家庭的宅居空间,作品中没有华丽的炫技与先锋的设计手法,只以克制的笔法挥洒优雅而静谧的沉静力量,他们将大量的精力投入在对布局的划分与对光线走势的把握中,让人与空间相互作用,共同研磨出温暖香醇的生活体验。化形以塑形基于居住者对空间明亮宽敞的需求,设计结合居住家庭三人居住的实际情况,以宏观角度打开功能空间之间的关系,从而获得一个可操作性明晰的整体性区域,通过重新划分场域的广度与深度,为功能与形式带来新的考量方向。入户,视线被光线捕捉,延斜向的墙体自然向内,客厅区域缓缓显露,纳入阳台空间后,使用场景连贯承接,以围合姿态落座,构建出和谐畅然的生活图景。空间通体以奶油白色为底,墨色作染,落下重点,穿插金属线条与宝格丽奢石点缀,为气质温润的空间渡上时尚精致的外衣。入户,视线被光线捕捉,延斜向的墙体自然向内,客厅区域缓缓显露,纳入阳台空间后,使用场景连贯承接,以围合姿态落座,构建出和谐畅然的生活图景。空间通体以奶油白色为底,墨色作染,落下重点,穿插金属线条与宝格丽奢石点缀,为气质温润的空间渡上时尚精致的外衣。打破客餐厅间的隔阂,光线得以从空间两侧贯穿延伸,提 升 空 间 明 亮 度 的 同 时 , 強 調 居 所与 人 的 互 动 关 系 , 公 区 被 统 为 一 处 , 通 过 减 少 休 闲 区 与 卫 生 间 的 部 分 空 间 , 来 为 中厨 使 用 场 景 让 步 , 强 调 生 活 的 体 验 感 。墙面被赋予大量的置物功能,深浅色交织的立面为空间提供丰富的层次感,木材、石材与漆面间的表现比例经过深思熟虑的考量,最终呈现为相辅相成的和谐关系,以此,场景中重点鲜明,整体却仍旧保持轻盈。取舍有道,取舍有得 项目原始户型依据动静关系,将主卧置于二层,一层为相对外向的公共区域。设计考虑到二层空间较小,无法满足主卧的品质需求,而居住家庭为三口之家,仅需两间卧室,于是决定将主卧移至一层,整合两间次卧,串联衣帽间与卫浴空间,形成一个宽敞的主卧套房区域。空间重组后,既保证主卧室宽敞舒适的使用需求,又将儿子房移位至二层,从而创造了更为私密独立的生活场景。在有限的空间中,通过舍弃非必要的场景,而为使用感让步,也表达着设计对生活本身的理解与尊重,尽可能扩大各个功能区域的使用频率,让家空间真正为居住者而服务。
  • 图片
  • 图片
  • 图片
  • 图片
  • 图片
  • 图片
  • 图片
  • 图片
  • 图片
  • 图片
  • 图片
  • 图片
  • 图片
  • 图片
  • 图片
  • 图片
  • 图片
  • 图片
  • 图片
  • 图片
  • 图片
  • 图片
  • 图片
  • 图片
  • 图片
  • 图片
  • 图片
  • 图片
  • 图片
  • 图片
  • 图片
  • 图片
  • 图片
  • 图片
  • 图片
  • 图片
  • 图片
  • 图片
  • 图片
  • 图片
  • 上一个 下一个
    2024第八届金腾奖 私宅(独居)丨私宅(多人居)丨餐饮丨酒店丨办公丨商业丨公共丨公益丨人物丨NEW100 jintengAWARD(小金_金腾奖组委会) 广州市海珠区琶洲大道68号华新中心21楼
    金腾奖视频号 金腾奖小红书号 监制:刘译遥
    统筹:张俊媚
    运营:赖钰炼 曹凯月 刘芳棋 小金
    新媒体:王贝贝 严洁 张文一
    技术:黄天佑 丁德昌
    最终解释权归金腾奖主办方所有