The boundary hidden, free to observe
作品详情
  • Details of the work 标题横线
    头像或者logo
    图片 王舒森 橙设传媒特约推荐
    城市:温州
    公司: 温州豪诺装饰
    参赛作品: 界隐,自在观照
    空间类型:别墅
    个人/公司简介:
    个人简介: 姓名:王舒森 公司+职务:温州豪诺装饰有限公司 主案设计师 社会职务:群众 毕业院校:天津大学 设计宣言:空间生活家 擅长空间类别:居住空间 获奖经历: 2017 年第十一届大金内装设计大赛空间设计奖 2018 年 M+中国高端室内设计大赛全国城市榜 TOP900 2019-2020 40under40 中国(温州)设计杰出青年 2020-2021 40under40 中国(温州)设计杰出青年 金筑奖-2020 中国(瑞安)十大居住空间设计师 2020 中国住宅优胜奖 代表作品:《搁浅》、《静好》、《无亦所有》、《淬炼时间》、 《别来春半》
    设计说明 | Design Instruction
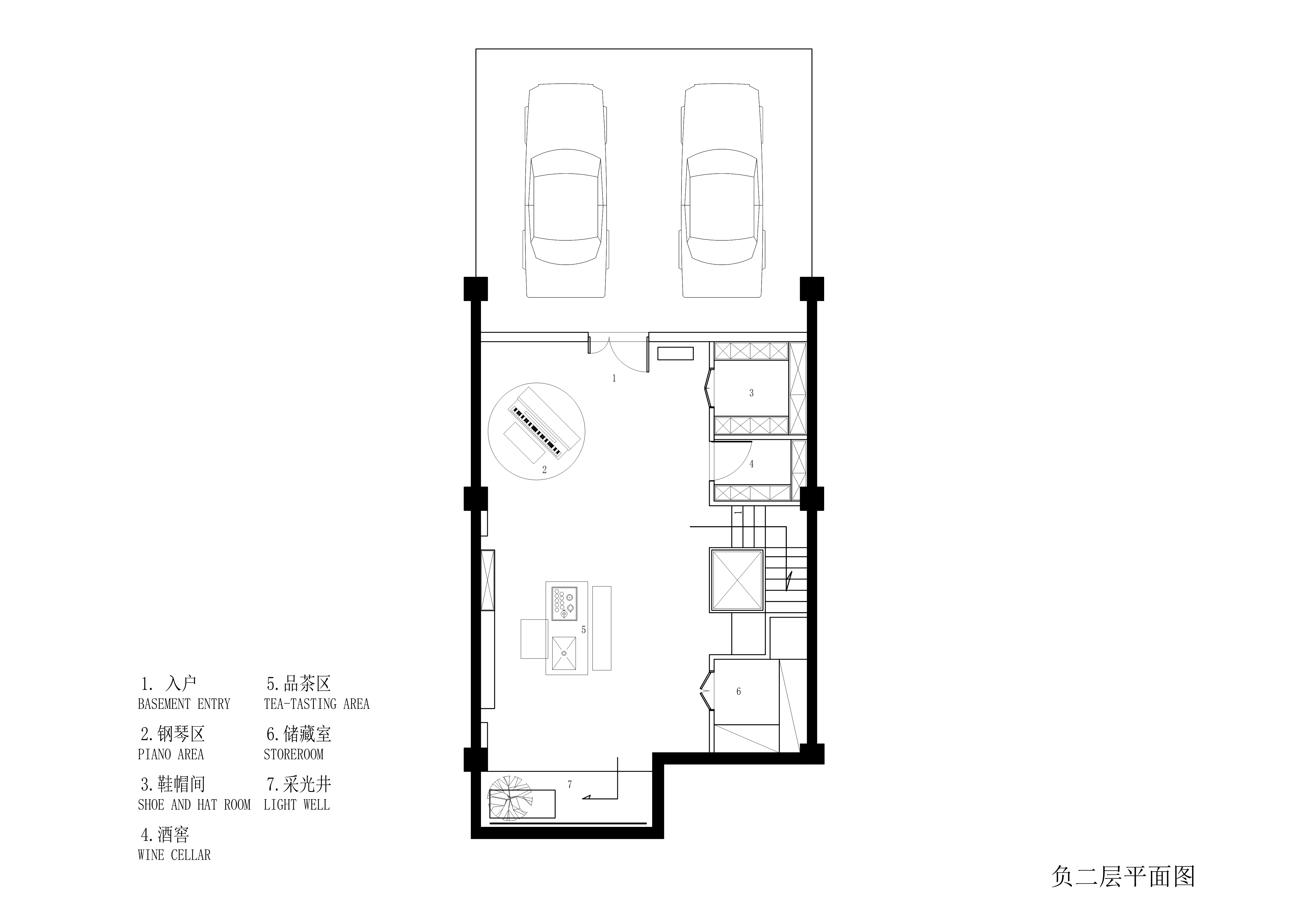
  • 01 交叠,多元场景 本案通过简意与雅情共和的现代语言,打造属于一家四口的小千世界。通过生活场景的多元叙事,展示空间予人包容、质朴、自然的感受,细腻观照居者内心。 设计布局地下双层挑高,扩大层高优势。地面三层立面同步调度不同功能模块的联动关系,洞穿界面轨迹,形成多维交集。 地下室以自然原木为基调,上扬场域张力。茶室为君,景观作臣,仅一桌一椅、一花一木,便见其卓然风致,呈高雅之趣。 凿取天井之光,造小隐秘境。光影流转,辉月入梦,自然语境与当代美学共创一场精神的超然平和,随心而行。 石纹与原木互相拼接、对冲,盈盈生长之力搭乘静谧温润之感,相得益彰。璀璨之下细观繁简,弥漫熠熠之光。 02 无界,自由演绎 一层联动不同场景体验,展开节奏布局。玄关序引,内建原木框架,合理规划鞋柜、外衣、杂物等收纳,关照生活一举一动的细节体验。通过悬挂手法的视觉过渡,探究生活的品质序章。 一层公共区隐去多余墙体,客餐厅与厨房围合成全开放态势,模块之间自由连贯,彼此张弛融情,共奏多元的生活表达。闲情逸致间,铺展诗意章节。 方正客厅组合岛屿式沙发,尽可能减少对光的阻挡,视觉延展域宽。留白中搭配浅咖基底,弥漫优雅知性的品格,同频居者精神至上的惬意自如。 沙发背景墙铺展立柜,收纳与陈列组合,净白与暗雅通透拼接,一抹灵动相协,分寸适宜拿捏,平衡轻盈质感。 设计流畅落笔,线条与体块制造多维互动,框出一副静谧亦生动的居家场景。空间美学重构融合,加强情绪感官的变奏。 视野贯穿空间始末,自由漫步间,铺展开放且连贯的交流语境,无界亦有界。餐厅设置一方长桌与厨房岛台平形协调,餐边柜辅助拓展多元料理,此时此刻家人闲坐,灯火可亲。 03 流动,诗意期许 餐厅侧边的楼梯与垂直电梯共行一处,充分利用了空间每一寸面积与角落,实现不同界面的流畅过渡。电梯采用观光式的透明处理,与光影产生不期而遇的美妙,时刻面对日常中的欣喜。 书房以实木定制成一体式的“木盒子”,连贯的布局确保了收纳的实用性。设计于此退让,更专注内里的情绪凝结,让精神与空间产生自然交汇。 主卧延续自然体块的生长,以线条辅佐框架搭建,在低调素雅的底色中沉淀另一份生活厚度。随主人的精神、阅历逐渐丰盈,深刻洞察内心的深层意志。 “精神只有不成为支撑物时,它才会真正自由。”依托家的载体,徜徉于每一次的拂晓与晚风,平凡日常也能牵引生活诗意,与家人共创一隅宁和世界。
  • 图片
  • 图片
  • 图片
  • 图片
  • 图片
  • 图片
  • 图片
  • 图片
  • 图片
  • 图片
  • 图片
  • 图片
  • 图片
  • 图片
  • 图片
  • 图片
  • 图片
  • 图片
  • 图片
  • 图片
  • 图片
  • 图片
  • 图片
  • 图片
  • 图片
  • 图片
  • 图片
  • 图片
  • 图片
  • 图片
  • 图片
  • 图片
  • 图片
  • 图片
  • 图片
  • 图片
  • 图片
  • 图片
  • 图片
  • 图片
  • 图片
  • 图片
  • 图片
  • 图片
  • 图片
  • 图片
  • 图片
  • 图片
  • 图片
  • 图片
  • 图片
  • 图片
  • 上一个 下一个
    2024第八届金腾奖 私宅(独居)丨私宅(多人居)丨餐饮丨酒店丨办公丨商业丨公共丨公益丨人物丨NEW100 jintengAWARD(小金_金腾奖组委会) 广州市海珠区琶洲大道68号华新中心21楼
    金腾奖视频号 金腾奖小红书号 监制:刘译遥
    统筹:张俊媚
    运营:赖钰炼 曹凯月 刘芳棋 小金
    新媒体:王贝贝 严洁 张文一
    技术:黄天佑 丁德昌
    最终解释权归金腾奖主办方所有