Fanghua Shuying
作品详情
  • Details of the work 标题横线
    头像或者logo
    图片 杨扬华 橙设传媒特约推荐
    城市:温州
    公司: 界面空间设计
    参赛作品: 芳华疏影
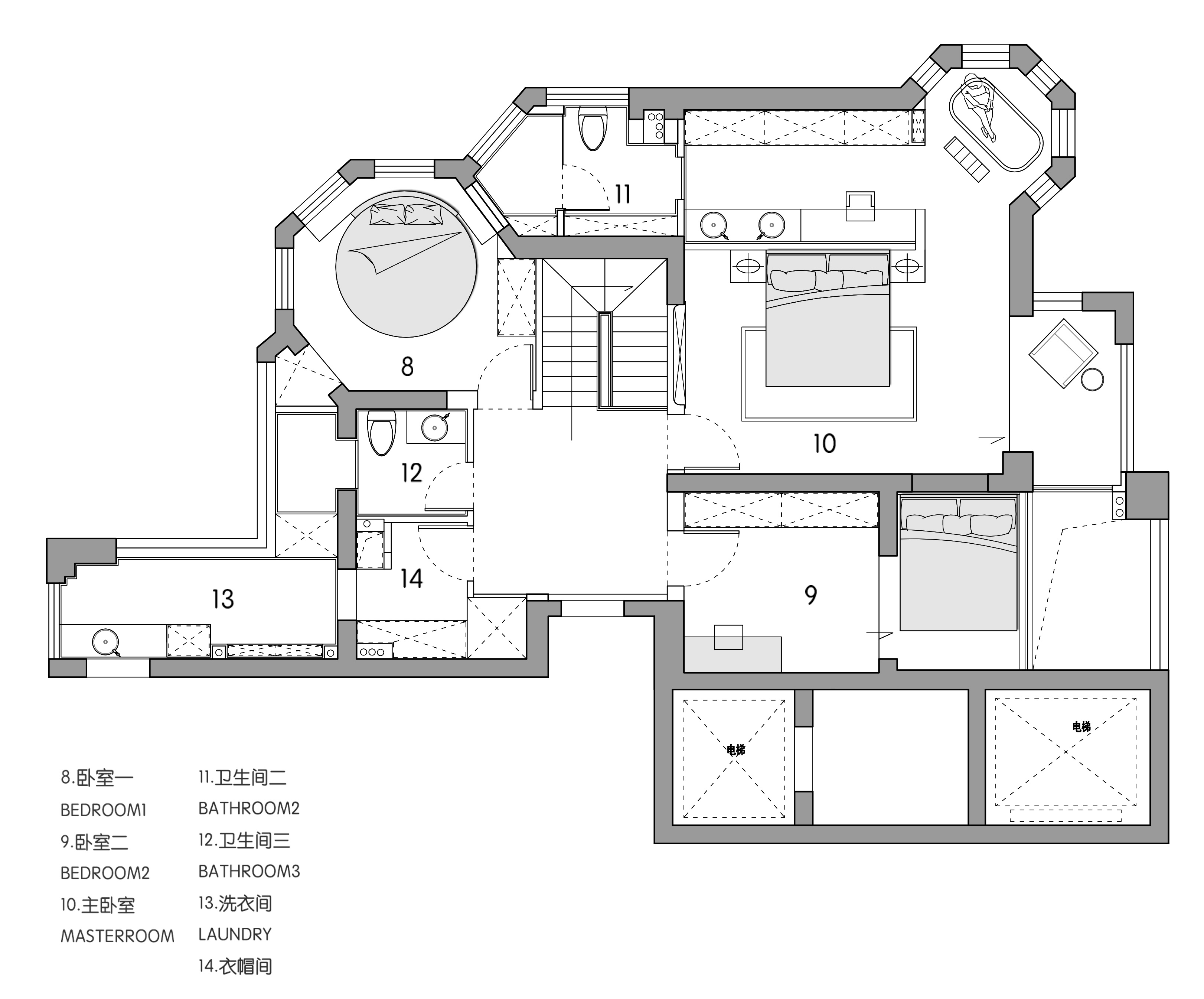
    空间类型:别墅
    个人/公司简介:
    杨扬华 界面空间设计 设计总监 获奖荣誉 2022年40UNDER40中国(温州)设计杰出青年 2022年金住奖 2020年金堂奖、住宅公寓入围 2020年度酷+创造营先锋设计·TOP6 2018年度M+中国高端室内设计大赛优秀设计师 2018年度网络人气奖 2018年设想家·红星美凯龙杯大赛优秀奖 2017-2018年度国际环艺创新设计大赛银奖 2016年艾特奖 2015年筑巢奖
    设计说明 | Design Instruction
  • 01 光束,循序指引 设计为这三维空间引入光的哲思与灵性,使生活各个角落都能成为“光生长的地方”,在同一场景中呈现不同时空感知,释放深刻的灵魂共振。 玄关入序,梳理结构与光影的空间关系,重构功能美学联动融合。门厅以开放式思维布局,沿不同方位过渡至室内,实现公共模块串联互通,形成完整循环的动线关系,隐含自然无限的规律哲学。 一束光源,随透明砖嵌入地面,在这个建筑体中勾勒极简一笔,模拟时空轨道链接生活的不同维度,牵引视觉入户。 02 自由巡演 将思绪寄情于落日余晖的悠然禅意,理想生活在这里得到具象化呈现。茶室作为门厅与室内过渡,在自由流动的布局中舒缓漫步,缱绻于线条光影的包罗万象,愈觉超然世外。 本案立面规划双层居家形态,公共区沿主体脉络形成洄游动线,环绕轴心打造空间骨架。不同功能区域连贯互动,经纬相交舒缓律动节奏,相互独立亦能映照互动,任光自由穿梭。 客厅呈方正格局,向外延伸环形阳台,内外风景互相穿透,铺展自然轻盈的生活底色。极简框架与软装家具互相围合,舒缓张弛间展现精妙互动,共创生活质感。 设计在沙发背景墙细腻刻画光束的流动姿态,高低错落间铺展不同界面语言,为沉稳静谧的氛围注入灵动之息。 简色为笔,一番流畅辗转,渲染清雅神韵。设计对餐厅的考量在于人、空间、动线的平衡梳理,长桌端持而立,同岛台相连,与西式厨房平行,芳华气韵一以贯之,呈现开放且连贯的交流语境。 03 时光变奏 餐厅、休闲区、楼梯呈开放式三角结构,区域之间独立自持亦联动交互,丰盈整体叙述结构,展现社交属性。 入夜前奏,时空切换。这方极简之域如一块天然无暇的幕布,将在某个时刻触发柔美绚丽的变化,迎接光影演绎。 疏影随光流动,寄情于落日余晖的柔幻场景,逐层丰盈故事肌理,细腻感知时光永恒的深沉浪漫,享受这份极致慵懒。 04 写意华章 场所营造,从不限于单一表达。楼梯作为上下立面的过渡载体,打破其结构与功能体的应用层级,通过对光影细腻处理,注入时间、情感、想象与体验,还原本体之貌。 抽象的生活诗意,在最贴合人体感知的区域中,拥有更加具像化的体验。主卧延续公共区主调,源于灯光、色彩、触觉的综合因素,在连贯且一致的结构布局中,展现秩序感的空间意向,静谧之下感受内心平和。 衣帽间位于入寝区域后侧,似隔非段调动视觉层次。卫浴区域延伸入里,形成流畅的直行动线,设计充分考量收纳需求,将不同功能应用分列两侧,行动间舒缓悠然。浴缸沐于阳光之下,体现精致的仪式感,创造浪漫主义的个性化追求。 虚实之间,简光辉映,此时无声亦有声。人与自然共创,基于克制的情绪与场景之上,弥漫厚实质感的生活沉思。空间与光自由穿透,深刻感知每一场情绪的反馈,寻找丰富真实的内在世界。
  • 图片
  • 图片
  • 图片
  • 图片
  • 图片
  • 图片
  • 图片
  • 图片
  • 图片
  • 图片
  • 图片
  • 图片
  • 图片
  • 图片
  • 图片
  • 图片
  • 图片
  • 图片
  • 图片
  • 图片
  • 图片
  • 图片
  • 图片
  • 图片
  • 图片
  • 图片
  • 图片
  • 图片
  • 图片
  • 图片
  • 图片
  • 图片
  • 图片
  • 图片
  • 图片
  • 图片
  • 图片
  • 图片
  • 图片
  • 图片
  • 图片
  • 图片
  • 图片
  • 图片
  • 上一个 下一个
    2024第八届金腾奖 私宅(独居)丨私宅(多人居)丨餐饮丨酒店丨办公丨商业丨公共丨公益丨人物丨NEW100 jintengAWARD(小金_金腾奖组委会) 广州市海珠区琶洲大道68号华新中心21楼
    金腾奖视频号 金腾奖小红书号 监制:刘译遥
    统筹:张俊媚
    运营:赖钰炼 曹凯月 刘芳棋 小金
    新媒体:王贝贝 严洁 张文一
    技术:黄天佑 丁德昌
    最终解释权归金腾奖主办方所有