Return to the primitive aesthetics, seclusion and flourishing
作品详情
  • Details of the work 标题横线
    头像或者logo
    图片 叶舟 橙设传媒特约推荐
    城市:温州
    公司: 室言空间设计
    参赛作品: 返璞美学,隐逸而盈动
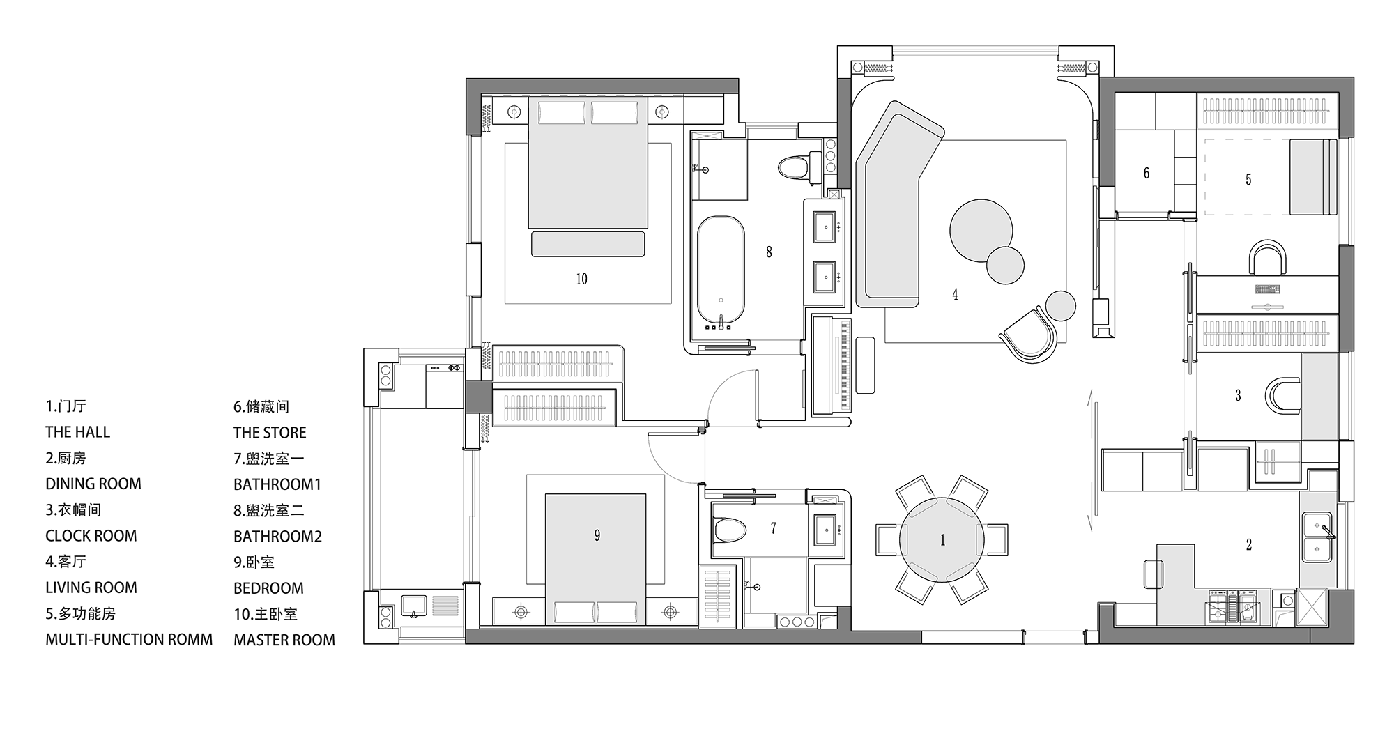
    空间类型:公寓(150㎡以下)
    个人/公司简介:
    室言空间设计事务所 设计总监 2004 年从事设计工作,2007-2016 在迈斯建筑装饰设计师,2015 年成立室言空间设计事务所至今 设计过大大小小住宅套房,别墅,办公空间,房开展厅,样板房,会所等等,目前是温州中室协陈设委跟温州 CIID 会员 设计理念一惯以简约实用风格为主,以少胜多、以简胜繁的效果,把空间跟色彩做对了,让软装来点缀,才能体现最完美的效果
    设计说明 | Design Instruction
  • 01 物致于此,静谧盈动 家的构建,一半圆满,一半留白。辅以肌理材质、结构光影的层次变化,在宁静温润的形制下,抒发明暗的节奏起伏,演绎一番灵动自由。 设计师通过开放式结构进行空间疏导,重构居家形态。以舒缓流畅的动线布局,使各个模块区形成有机链接,形式与功能于此结合,生活美学在平静的场景氛围中萦绕而生。 奶油肌理铺展于空间各个角落,形成整体的场域布局,同时在光与结构的作用下,打造多个氛围感的小场景。在弧形与线条的立体组合中,演绎静谧而生动的层次渐变。 钢琴内嵌于墙体,保障公共区的一体化结构,承载业主内心深处的热爱,用声音丰富五感释放,奏响诗意盎然的生活乐章。 设计师将客厅与阳台互通,以柔和弧度修饰天顶横梁,形成舒缓过渡。自然光景透过落地窗,顺着空间脉络自由流动,释放明亮通透,实现视觉尺度的扩容。 客厅软装汲取米色与棕调的温暖元素,由浅入深,在简约与温柔中释放优雅氛围。 居家场景生动铺展,以清丽而鲜活的自然元素,装点家的灵感与温度。设计师巧借光影,渲染优雅法式的生活滤镜,打造业主心向往之的松弛静谧。 02 万物润泽,自由秩序 餐厅与客厅东西相连、同厨房南北互动,是凝聚生活滋味的主要场域。软装搭配中延续公共区的语言基调,刻画更深刻的肌理质感,自然流露居家的情绪共鸣。 餐桌选用天然的白洞石,浑然天成的纹理萦绕润泽质地,勾勒细腻线条,抒发柔和静美的空间氛围。 厨房基于操作与功能的需求,打造流畅布局。在满足实用主义基础上,与餐厅产生呼应和交流,促进家庭成员紧密联动。 2米长的玻璃推门通过移动切换开合状态,实现厨房、多功能区、公共区三大区域之间的过渡与互动,赋予空间自由的流动感,营造多元的生活场景。 暖光渐起,轮廓与阴影勾勒着物体材质的边缘,在体块的排列组合中,感受艺术的张力与丰盈。 更衣间以拱门造型进行结构装饰,布局优效的储藏和化妆功能,满足女主人精致的生活仪式感。 03 生活之诗,向内而生 步入就寝区域,次卧安静地显露着家的纯粹,在落地窗前观览四季变化,带来清风明月般的惬意时光。 主卧汲取木质的温度与自然气息,与光影、肌理叠加,简约修饰中浸润着细腻质感,顷刻间释放负荷,轻盈身心,渲染慵懒惬意的就寝氛围。 卫浴延续奶油肌理的主调,无需刻意的修饰,在时间的痕迹中,自行填充更加丰富的色彩与欢笑。
  • 图片
  • 图片
  • 图片
  • 图片
  • 图片
  • 图片
  • 图片
  • 图片
  • 图片
  • 图片
  • 图片
  • 图片
  • 图片
  • 图片
  • 图片
  • 图片
  • 图片
  • 图片
  • 图片
  • 图片
  • 图片
  • 图片
  • 图片
  • 图片
  • 图片
  • 上一个 下一个
    2024第八届金腾奖 私宅(独居)丨私宅(多人居)丨餐饮丨酒店丨办公丨商业丨公共丨公益丨人物丨NEW100 jintengAWARD(小金_金腾奖组委会) 广州市海珠区琶洲大道68号华新中心21楼
    金腾奖视频号 金腾奖小红书号 监制:刘译遥
    统筹:张俊媚
    运营:赖钰炼 曹凯月 刘芳棋 小金
    新媒体:王贝贝 严洁 张文一
    技术:黄天佑 丁德昌
    最终解释权归金腾奖主办方所有