Using light to sound
作品详情
  • Details of the work 标题横线
    头像或者logo
    图片 李鸣
    城市:上海
    公司: 明礼舍(上海)创意设计事务所
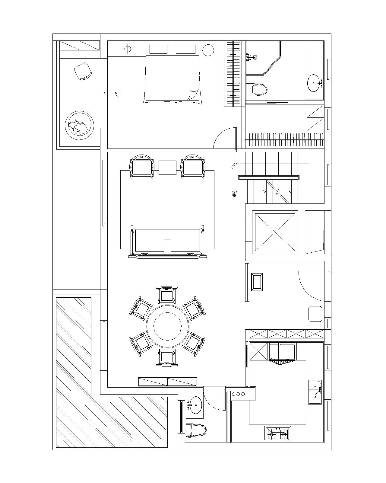
    参赛作品: 光影之下
    空间类型:别墅
    个人/公司简介:
    明礼舍设计事务所创始人 40UNDER40“当代杰出青年设计师” 全国“IDD设计100榜”;金人奖 金奖;”美国缪斯设计奖 金奖等
    设计说明 | Design Instruction
  • 本案的特点是强调人与自然、文化的联系,追求内在的平静和美感。不是简单的物质追求,而是一种哲学性的生活态度。 1,地下室的空间中,我们的硬装是大量的留白处理。给到软装和主人生活的更多可能性。,2,会客区的软装搭配Rochebobois当代主义的弧形沙发,和颇具东方气韵的“莫比乌斯环”porada实木茶几,以满足不同人群的功能性。 3,作为屋主生活中不可或缺的茶道,则搭配了金丝楠木定制的茶书房空间,配搭收藏的一些列瓷器。 4,而极具浪漫的空间,则是光影之下的“秘境花园”,设计上用了沙漠系列的色彩与肌理,融合植物的氛围。 再搭配了Bretz的多彩沙发,和Rochebobois的蝴蝶椅;定义其“爱丽丝梦游仙境”的空间感觉,让闺蜜间的交流变得愉悦和松弛。平日里,在此处发呆晒太阳、看书、品茶、抚琴。5,而夹层的空间则留给了冥想,坐禅。在空灵的环境下与自我对话,修身养性,滋养心灵。
  • 图片
  • 图片
  • 图片
  • 图片
  • 图片
  • 图片
  • 图片
  • 图片
  • 图片
  • 图片
  • 图片
  • 图片
  • 图片
  • 图片
  • 图片
  • 图片
  • 图片
  • 图片
  • 图片
  • 图片
  • 图片
  • 图片
  • 图片
  • 图片
  • 图片
  • 图片
  • 图片
  • 图片
  • 图片
  • 图片
  • 图片
  • 图片
  • 图片
  • 图片
  • 图片
  • 图片
  • 图片
  • 图片
  • 图片
  • 图片
  • 图片
  • 图片
  • 图片
  • 图片
  • 图片
  • 上一个 下一个
    2024第八届金腾奖 私宅(独居)丨私宅(多人居)丨餐饮丨酒店丨办公丨商业丨公共丨公益丨人物丨NEW100 jintengAWARD(小金_金腾奖组委会) 广州市海珠区琶洲大道68号华新中心21楼
    金腾奖视频号 金腾奖小红书号 监制:刘译遥
    统筹:张俊媚
    运营:赖钰炼 曹凯月 刘芳棋 小金
    新媒体:王贝贝 严洁 张文一
    技术:黄天佑 丁德昌
    最终解释权归金腾奖主办方所有