Flourishing
作品详情
  • Details of the work 标题横线
    头像或者logo
    图片 李漫
    城市:南京
    公司: 南京DoLong董龍设计
    参赛作品: 旧梦繁华
    空间类型:别墅
    个人/公司简介:
    李漫 从业17年 DoLong董龙设计丨首席设计师 设计理念: 通过设计,给居住者提供最好的情绪价值 工作经历: 2006-2008年就职于国内知名工装公司 2009年至今就职南京Dolong董龍 设计 现任首席设计师
    设计说明 | Design Instruction
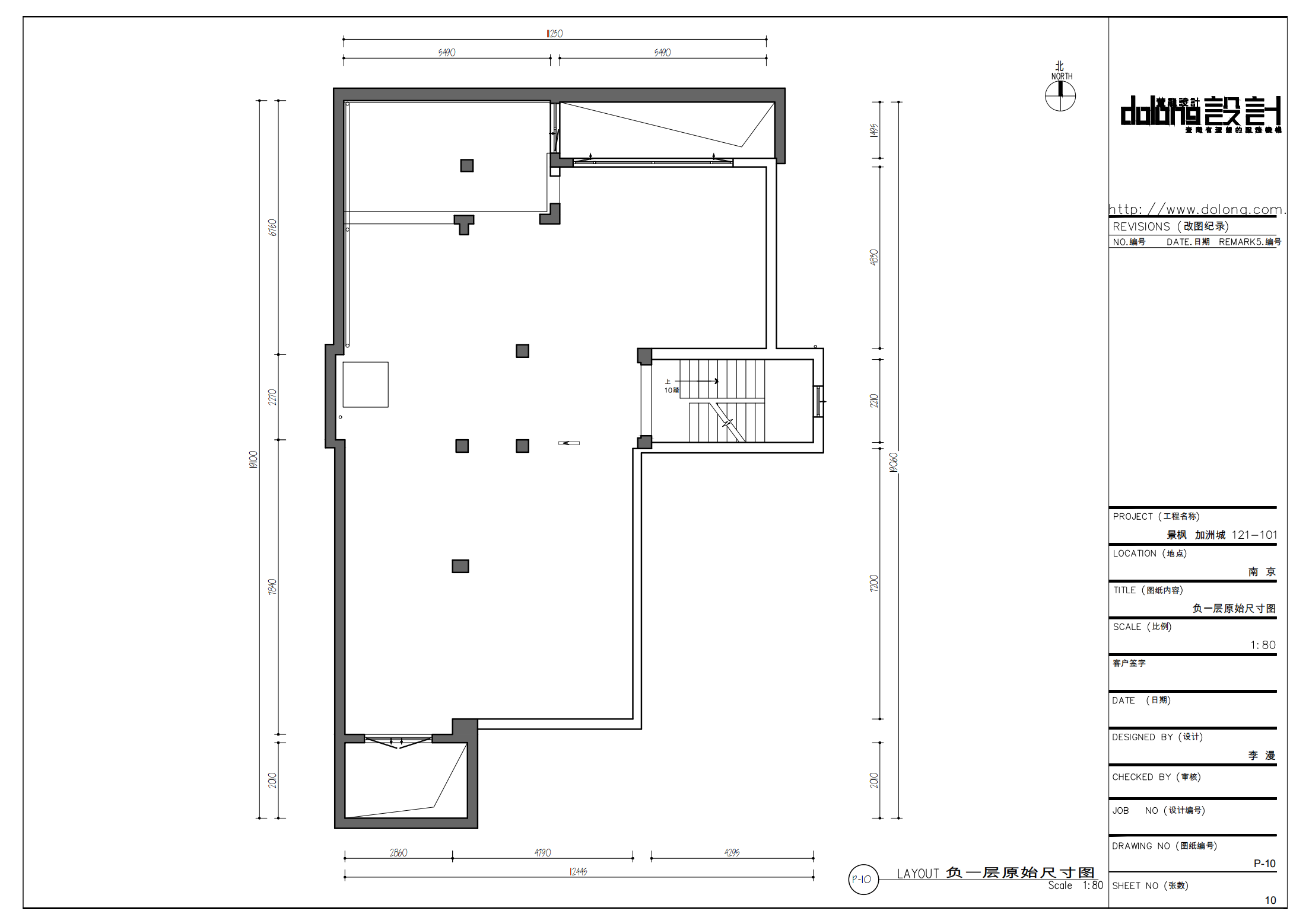
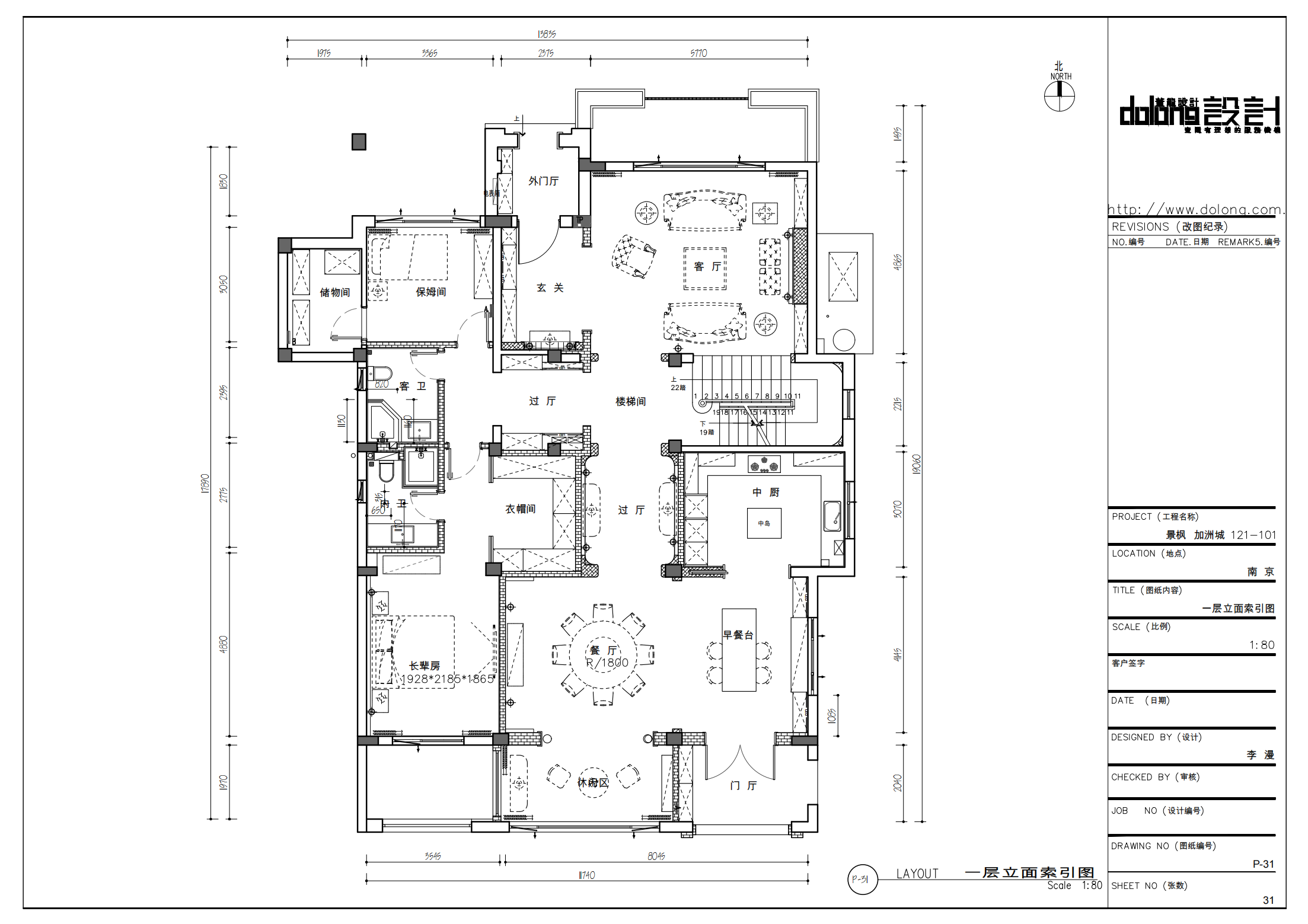
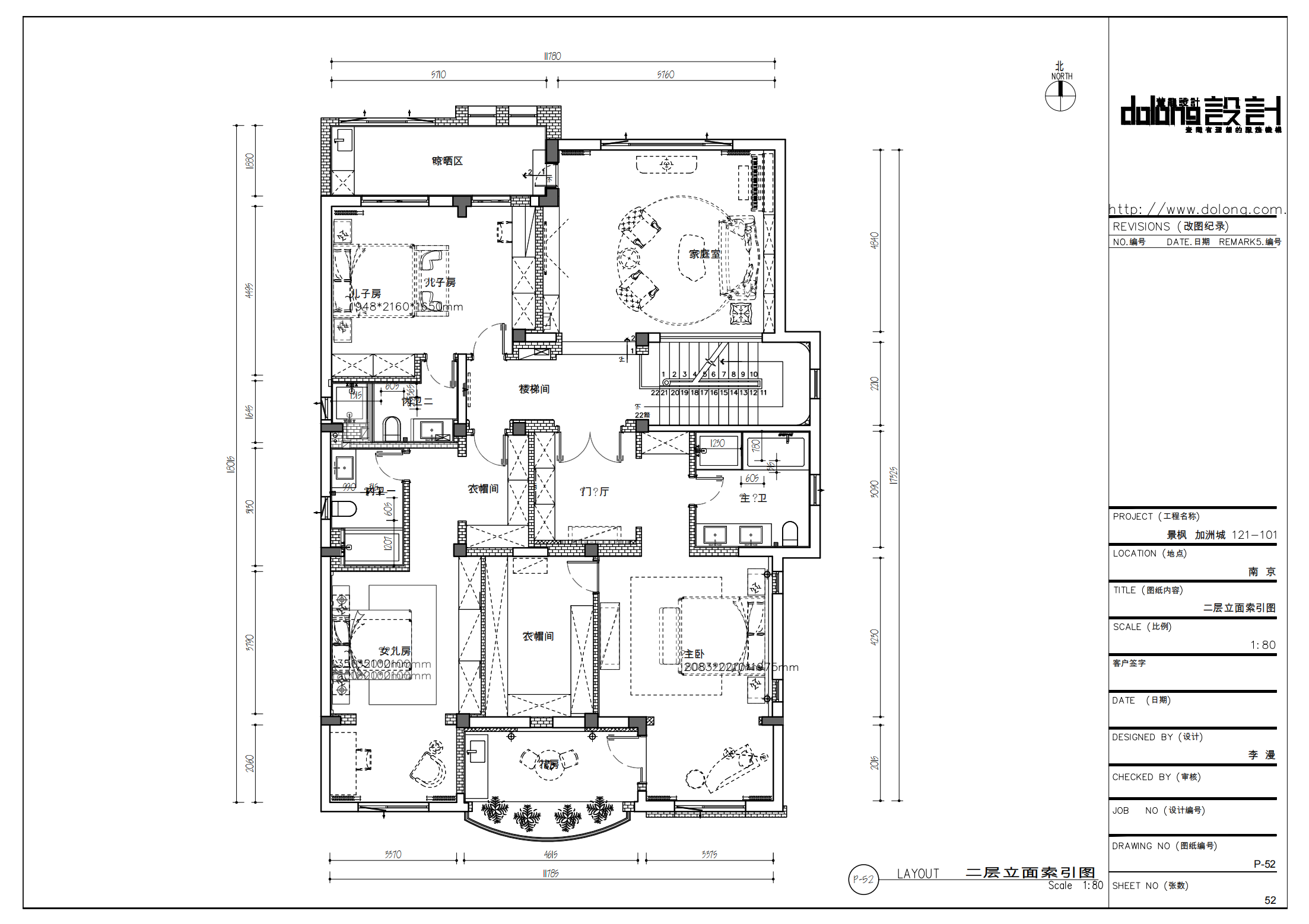
  • 家所涵盖的不仅是温暖,更是一种人文关怀。项目坐落于南京最大别墅社区之一的景枫加州城,整体建筑依山而立,环境清幽。室内设计风格方面根据业主喜好,以沉稳典雅的古典美式和侘寂风为主,材质和色彩在日升月落中,勾勒出独特而精致的居住艺术。 设计从项目的在地属性出发,以林间藏鹿为开场,塑造出山林间曲径幽幽之感。随着动线的深入室内,光影变幻下的浮雕拱门,因明暗的交替更迭而变得更加丰富有趣。空间内大量的复古花纹及暖棕木作的贯穿,氤氲出古典美式的典雅韵味,几何线条随着岁月流淌,刻画出家的繁华丰茂。 以过厅为中轴而展开,每一个功能区域都被设定在合理的位置,五感在场地中自在游走,感知生命的静谧与感佩。 丰富的纹理变化经过转译,呈现出深远时光的融汇之感,空间的生命力外射于物,滋养每一寸温润的木作和布艺,壁炉上盘旋的浮雕,轻声诉说着点滴故事。 餐厨区域以静谧的语言表达自然与生命的力量,回游动线构筑成和谐的烟火人居。温润与通透交错,生发出迭代的层次感在空间内自由伸展,最终复融于场景之中,质感在琐碎的日常情境中反复出现,归于生活,映于百态。 一层的线条和色调伴随台阶延升至二楼,线性的在顶端汇聚,于无形中将空间观感放大。娱乐区域兼顾生活和美学的使用需求,不同家居组成的几何在递进间酿绿藏光,承载着每一次的欢声笑语。 与建筑契合的穹形吊顶增强了空间感染力,复古的精致腔调在现代设计手法的打造下,形成了更富有韵律和耐人寻味的生活场景。 与上层浓烈的复古美式情怀完全不同,加州城地下一层静默无声地陪伴,是家给予业主最长情的告白。设计于繁华之下构建怡然,灵活地利用材质的特性打造空间内不同场域的调性,诠释出设计应“以人为本”的核心理念。
  • 图片
  • 图片
  • 图片
  • 图片
  • 图片
  • 图片
  • 图片
  • 图片
  • 图片
  • 图片
  • 图片
  • 图片
  • 图片
  • 图片
  • 图片
  • 图片
  • 图片
  • 图片
  • 图片
  • 图片
  • 图片
  • 图片
  • 图片
  • 图片
  • 图片
  • 图片
  • 图片
  • 图片
  • 图片
  • 图片
  • 图片
  • 图片
  • 图片
  • 图片
  • 图片
  • 图片
  • 图片
  • 图片
  • 图片
  • 图片
  • 图片
  • 图片
  • 图片
  • 图片
  • 图片
  • 图片
  • 图片
  • 图片
  • 图片
  • 图片
  • 图片
  • 图片
  • 上一个 下一个
    2024第八届金腾奖 私宅(独居)丨私宅(多人居)丨餐饮丨酒店丨办公丨商业丨公共丨公益丨人物丨NEW100 jintengAWARD(小金_金腾奖组委会) 广州市海珠区琶洲大道68号华新中心21楼
    金腾奖视频号 金腾奖小红书号 监制:刘译遥
    统筹:张俊媚
    运营:赖钰炼 曹凯月 刘芳棋 小金
    新媒体:王贝贝 严洁 张文一
    技术:黄天佑 丁德昌
    最终解释权归金腾奖主办方所有