Magnificent Houses
作品详情
  • Details of the work 标题横线
    头像或者logo
    图片 苗青 重庆走鹊传媒特约推荐
    城市:重庆
    公司: 重庆MQ-DESIGN 觅前室内设计有限公司
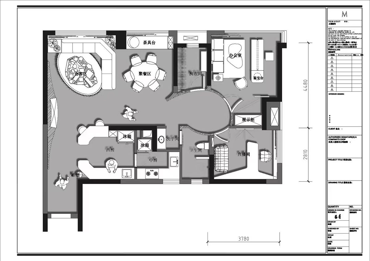
    参赛作品: 贝阙珠宫
    空间类型:公寓(150㎡以下)
    个人/公司简介:
    从业年限:21年 毕业院校:西南大学 设计理念:创新、创美、创造价值、严谨 所获荣誉: 2024年度金堂奖·全国最佳住宅公寓 2024年度「CIFF设交圈·设计千人计划」全国入选设计师 金住奖-中国百杰居住空间设计师(2023-2024) 2023年度先锋榜·华西区域十大先锋设计师 设计千人计划·设计星火(2022-2023) 金住奖中国(重庆)十大居住空间设计师(2021-2022) 老宅新生(重庆)十大改造设计师(2021-2022) 红棉奖中国设计奖·最美现代空间设计奖 年度优秀现代空间设计(2021-2022) IDF国际设计论坛年度大会学员(2021) 中国雄安新设计师奖(2019) M+高端室内设计大赛·重庆站T0P10(2019) 金创意奖·国际空间设计大赛 二等奖(2019) 40UNDER40中国(重庆)设计杰出青年(2018-2019) 亚太空间设计大赛 大奖(2018) 搜房网室内设计 二等奖·非凡设计(2015) 筑巢奖 环境艺术奖(2013) 筑巢奖 创新艺术大奖(2012) 经典案例: 保利高尔夫、两江新宸、金科时代中心、招商江湾城、约克郡、玥湖园、御澜道、御龙天峰、紫御江山、庆隆高尔夫柏翠庄、庆隆高尔夫荟澜山、碧桂园南山澜、龙湖两江新宸、万科悦湾、欧麓花园城、凡尔赛、重庆兰园等。
    设计说明 | Design Instruction
  • 本次的作品的性质介于住宅与商业,既有住宅的温馨舒适也包含了部分商业接待的的功能。更多的像一个小型的私人接待场所。空间的布局打破了传统房间的方正印象,在整体的设计思路上结合客户本身职业的并以此为题。打造出了这一蕴含深意及独特的室内空间。 本案是以珠宝的诞生过程为设计主体,所以当我们踏入这个空间的时候即是对这一过程的见证。来到入户的位置,两个对称的异形吧台围合成为水吧台及西厨区域。从平面图的视角来看吧台的造型,就像是固定珠宝用的夹具。而这时候会客区域的墙面与珠宝初时一样,依旧有一些粗糙,但大致的弧形与圆润感已经具备。可以看到窗户造型,墙面的嵌入式壁柜,空间当中的立柱等等均用了不同程度弧形元素。 定制沙发的作用在于既节约了空间的同时也将空间进行了简单的分隔,正是这种软处理的分隔方式才让空间各区分明且视觉效果大大加强。 继续向前走近,我们将来到一个更为奇妙的阶段或者说空间。圆润与粗糙在此转换,象征着新生与升华。柔和的橙红灯光既是旨在带来亮眼的感受,更是为了在这一奇妙的空间增添恰到好处的温度。 转身可以发现四周入眼皆为圆润光滑,光线在此折射流转。更有熠熠光华蕴蕴而出,满是柔和温润,这说明这一枚珠宝光华内敛,内涵神韵,必是佳品。 推开门,一步踏进,洁白的空间没有多余的装饰,让空间会更具神韵。椭圆型的灯膜让光线柔和平缓,圣洁的气息在此间流转,黑色的鉴宝台与真皮座椅则让空间增添一丝肃穆高级。 整个过程到此就已完成,而整个空间的主题也是在此升华。业主希望这个空间带给他的作用就像是珠宝诞生的过程一样,将客户变成朋友,将利益关系一步步升华为友谊。
  • 图片
  • 图片
  • 图片
  • 图片
  • 图片
  • 图片
  • 图片
  • 图片
  • 图片
  • 图片
  • 图片
  • 图片
  • 图片
  • 上一个 下一个
    2024第八届金腾奖 私宅(独居)丨私宅(多人居)丨餐饮丨酒店丨办公丨商业丨公共丨公益丨人物丨NEW100 jintengAWARD(小金_金腾奖组委会) 广州市海珠区琶洲大道68号华新中心21楼
    金腾奖视频号 金腾奖小红书号 监制:刘译遥
    统筹:张俊媚
    运营:赖钰炼 曹凯月 刘芳棋 小金
    新媒体:王贝贝 严洁 张文一
    技术:黄天佑 丁德昌
    最终解释权归金腾奖主办方所有