门外世界,门里是家
作品详情
  • Details of the work 标题横线
    头像或者logo
    图片 田野 重庆走鹊传媒特约推荐
    城市:重庆
    公司: ACI筑室设计事务所
    参赛作品: 门外世界,门里是家
    空间类型:别墅
    个人/公司简介:
    从业年限:7年 设计理念:专筑于室,注与己事 所获奖项:中国国际建筑装饰协会住宅公寓空间类银奖 中国艾舍奖住宅建筑设计金奖 德国高仪.中国设计精英榜重庆榜单优秀奖 M+设计大赛TOP100 IDD中国设计100榜 IHIDA人居空间设计年度十佳样板空间 红棉设计奖·最美空间奖
    设计说明 | Design Instruction
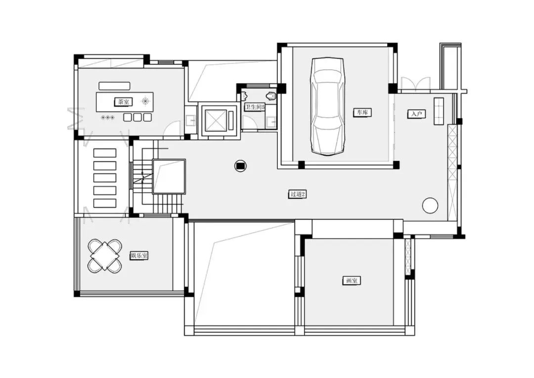
  • 本案坐落于北碚区城南新区,西面靠缙云山脉,北面临人工湖,视野宽广,通风性好。自然、简单、舒适,是业主设计之初向我们传达的对家的理解,不需要太多装饰,回归生活的本质。 设计师通过独特的建筑感营造来表达空间,将奇思妙想赋予家里的每个角落,灵动的家居布局、挑高的客厅、向阳而开的窗户……以艺术、以本真、以有趣,不断塑造家的样子,实现于现实生活的乌托邦。 接近五米的层高,给人开阔的视野感受,空间围合式休憩区,一侧超高收纳架放置淘来的饰品,无论是一家人交流还是聚会,氛围清雅。
  • 图片
  • 图片
  • 图片
  • 图片
  • 图片
  • 图片
  • 图片
  • 图片
  • 图片
  • 图片
  • 图片
  • 图片
  • 图片
  • 图片
  • 图片
  • 图片
  • 图片
  • 图片
  • 图片
  • 图片
  • 上一个 下一个
    2024第八届金腾奖 私宅(独居)丨私宅(多人居)丨餐饮丨酒店丨办公丨商业丨公共丨公益丨人物丨NEW100 jintengAWARD(小金_金腾奖组委会) 广州市海珠区琶洲大道68号华新中心21楼
    金腾奖视频号 金腾奖小红书号 监制:刘译遥
    统筹:张俊媚
    运营:赖钰炼 曹凯月 刘芳棋 小金
    新媒体:王贝贝 严洁 张文一
    技术:黄天佑 丁德昌
    最终解释权归金腾奖主办方所有