Beauty is in the air
作品详情
  • Details of the work 标题横线
    头像或者logo
    图片 田野 重庆走鹊传媒特约推荐
    城市:重庆
    公司: ACI筑室设计事务所
    参赛作品: 美室天成
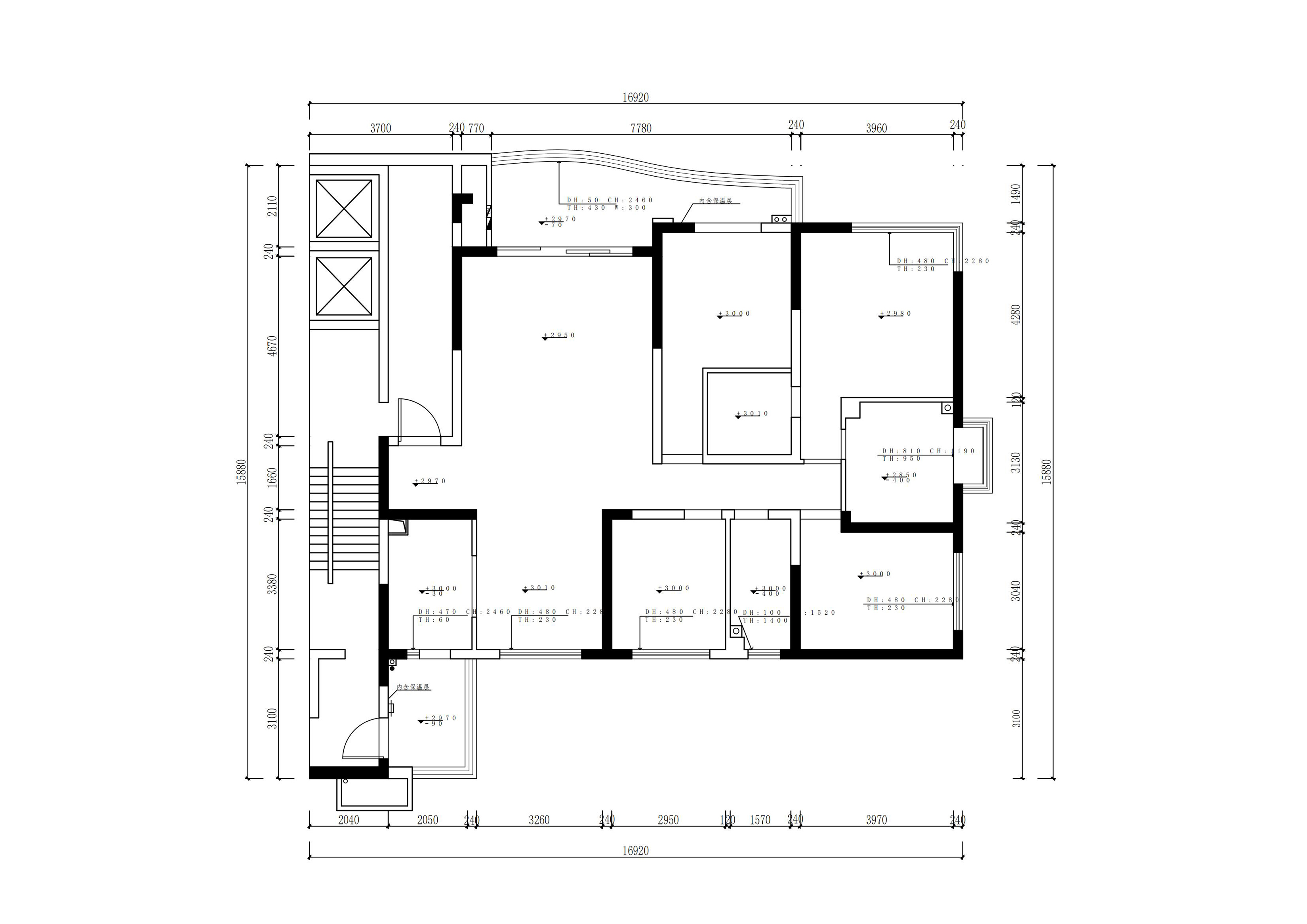
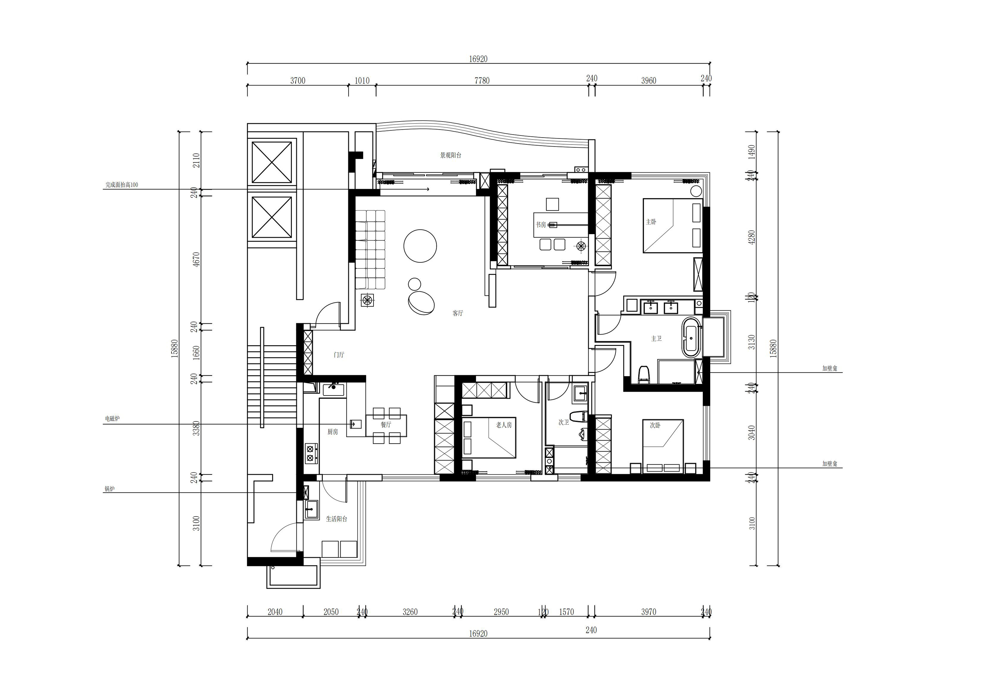
    空间类型:别墅
    个人/公司简介:
    从业年限:7年 设计理念:专筑于室,注与己事 所获奖项:中国国际建筑装饰协会住宅公寓空间类银奖 中国艾舍奖住宅建筑设计金奖 德国高仪.中国设计精英榜重庆榜单优秀奖 M+设计大赛TOP100 IDD中国设计100榜 IHIDA人居空间设计年度十佳样板空间 红棉设计奖·最美空间奖
    设计说明 | Design Instruction
  • 在空间的思考上,小空间到大空间的整合统一性,和材质上的延展性,让空间自然过渡的同时,用正形的方式去隔开一个负形的空间。 丢掉固定某一种风格,结合业主喜好的同时去创新和融入一个富有生命力的生活氛围调性。 客厅以开放式的空间设计,保证整个空间的精美,空调设备的选用了单向气流的处理,使得客厅空高的最大化,自带大面的落地滑门和超高的视野,使得白色的墙面与浅色木饰面相符相成强化通透性。 采用KD饰面,天然石皮去处理,合理分配支出的每一笔费用。 回访后很耐看,很耐用,特别能够提升整个家庭氛围。
  • 图片
  • 图片
  • 图片
  • 图片
  • 图片
  • 图片
  • 图片
  • 图片
  • 图片
  • 图片
  • 图片
  • 图片
  • 图片
  • 图片
  • 图片
  • 图片
  • 图片
  • 上一个 下一个
    2024第八届金腾奖 私宅(独居)丨私宅(多人居)丨餐饮丨酒店丨办公丨商业丨公共丨公益丨人物丨NEW100 jintengAWARD(小金_金腾奖组委会) 广州市海珠区琶洲大道68号华新中心21楼
    金腾奖视频号 金腾奖小红书号 监制:刘译遥
    统筹:张俊媚
    运营:赖钰炼 曹凯月 刘芳棋 小金
    新媒体:王贝贝 严洁 张文一
    技术:黄天佑 丁德昌
    最终解释权归金腾奖主办方所有