The concrete expression of space-time travel
作品详情
  • Details of the work 标题横线
    头像或者logo
    图片 袁杰
    城市:杭州
    公司: 独立设计师
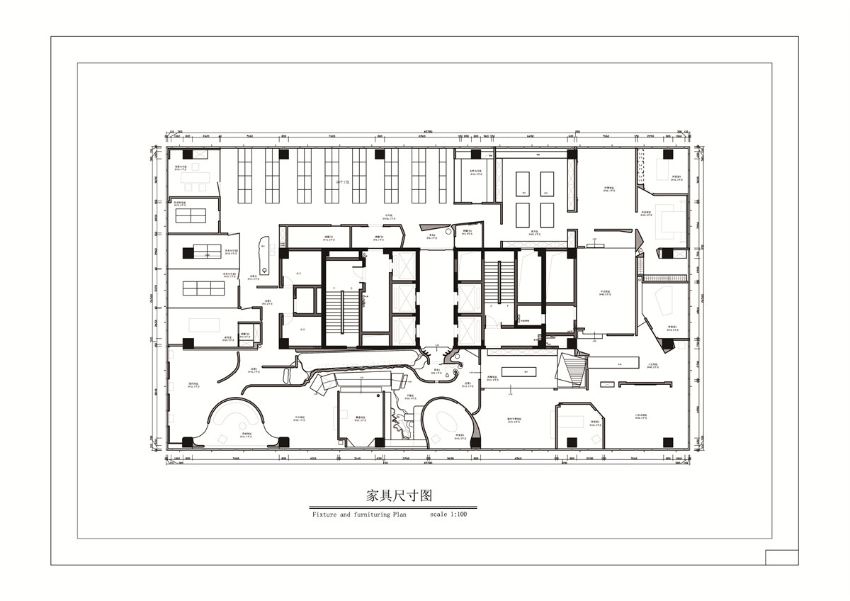
    参赛作品: 时空穿梭的具象表达
    空间类型:别墅
    个人/公司简介:
    当代新锐空间设计师 一直专注于空间美学设计,深层次解读使用者的生活方式和内心诉求,挖掘建筑空间本身的粘性关系及空间情绪,打造专属的美学空间。
    设计说明 | Design Instruction
  • 艺术是人类的天性,仅凭描摹,不足以有趣,将艺术与生活碰撞,便可创造出超乎想象的呈现。光影指引,抵达对设计的理解,过去与未来同时汇聚于现在,要尽兴,要好奇,要活得热烈有趣。 从过去到现在,跟随科技与材料的进步发展,空间设计潮流持续更迭,但“以人为本”的理念始终如一,近十年行业深耕,精进工艺,融汇风格,在新展厅汇聚展现,引领多元人居的无限可能。以原始粗粝的石质穴居感和超时空的未来科技感为入户,带着对家的憧憬,开启多维度的感知体验。 在流动的空间里,间隔错落有致,往复有趣,框景与借景并存,弧形艺术感手法,塑造微妙的空间感,流畅的曲线让视线聚焦,浮光掠影间自带开放区域的空旷与通透,光有了具体形状,明暗之间,勾勒干净安宁的色调,流畅引领向下一个承载艺术与精神的空间。
  • 图片
  • 图片
  • 图片
  • 图片
  • 图片
  • 图片
  • 图片
  • 图片
  • 图片
  • 图片
  • 图片
  • 图片
  • 图片
  • 图片
  • 图片
  • 图片
  • 图片
  • 图片
  • 图片
  • 图片
  • 图片
  • 图片
  • 图片
  • 图片
  • 图片
  • 图片
  • 图片
  • 图片
  • 图片
  • 图片
  • 图片
  • 图片
  • 图片
  • 图片
  • 图片
  • 图片
  • 图片
  • 图片
  • 图片
  • 图片
  • 图片
  • 图片
  • 图片
  • 图片
  • 图片
  • 图片
  • 图片
  • 图片
  • 图片
  • 图片
  • 图片
  • 图片
  • 图片
  • 图片
  • 图片
  • 图片
  • 图片
  • 图片
  • 图片
  • 图片
  • 图片
  • 图片
  • 图片
  • 图片
  • 图片
  • 图片
  • 图片
  • 图片
  • 上一个 下一个
    2024第八届金腾奖 私宅(独居)丨私宅(多人居)丨餐饮丨酒店丨办公丨商业丨公共丨公益丨人物丨NEW100 jintengAWARD(小金_金腾奖组委会) 广州市海珠区琶洲大道68号华新中心21楼
    金腾奖视频号 金腾奖小红书号 监制:刘译遥
    统筹:张俊媚
    运营:赖钰炼 曹凯月 刘芳棋 小金
    新媒体:王贝贝 严洁 张文一
    技术:黄天佑 丁德昌
    最终解释权归金腾奖主办方所有