Hermit nature, the heart yearn for it
作品详情
  • Details of the work 标题横线
    头像或者logo
    图片 袁杰
    城市:杭州
    公司: 独立设计师
    参赛作品: 隐逸自然,心向往之
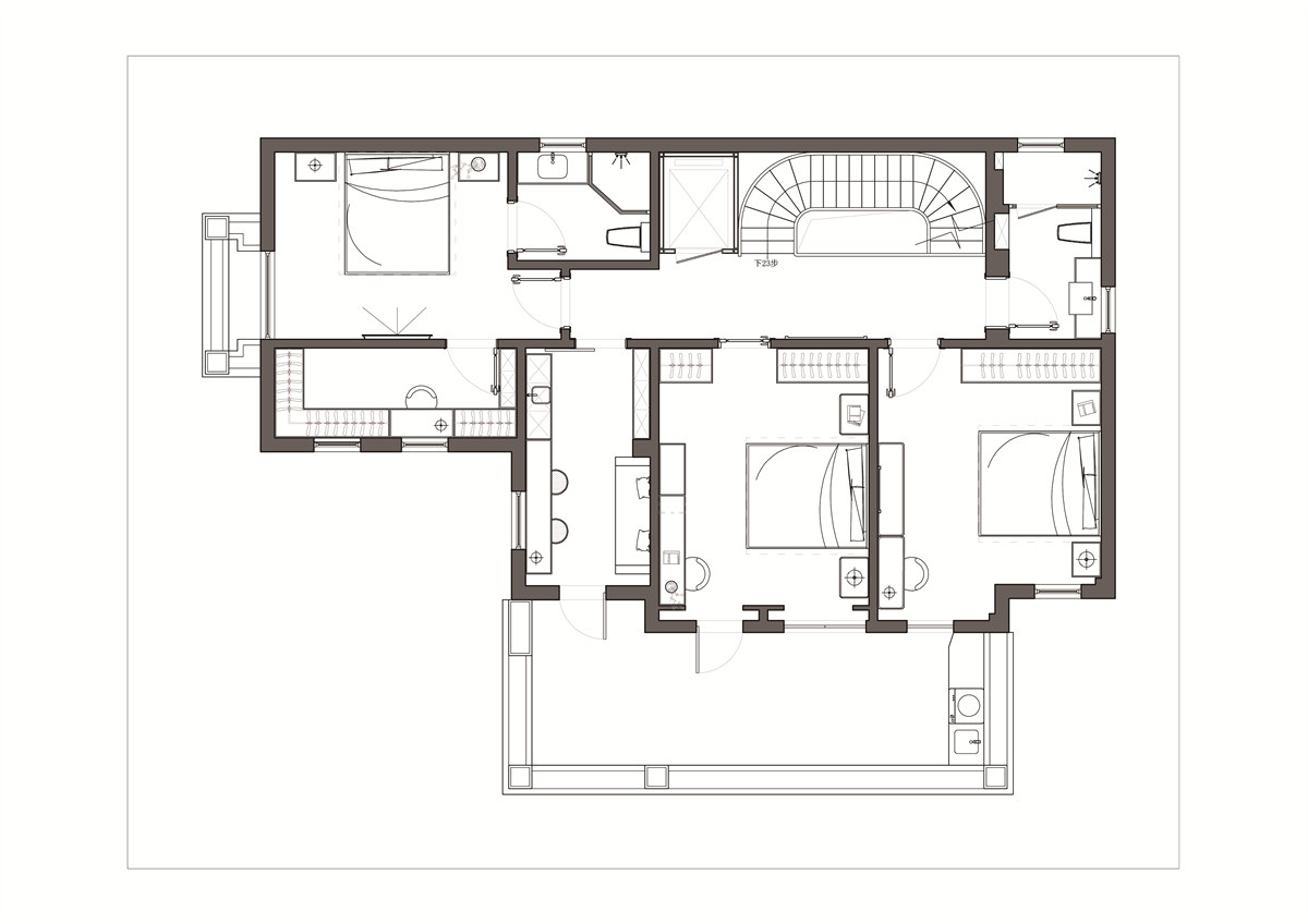
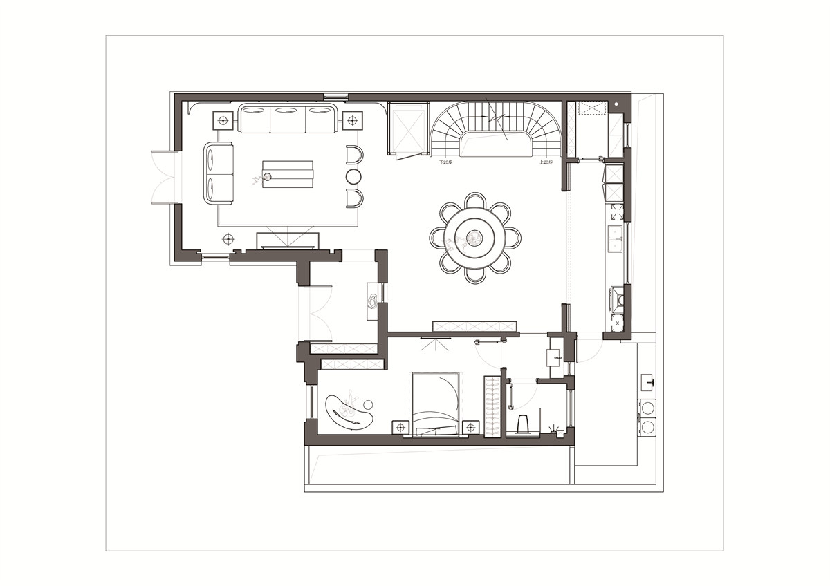
    空间类型:别墅
    个人/公司简介:
    当代新锐空间设计师 一直专注于空间美学设计,深层次解读使用者的生活方式和内心诉求,挖掘建筑空间本身的粘性关系及空间情绪,打造专属的美学空间。
    设计说明 | Design Instruction
  • “清风明月自往来,高山流水无古今。”意境悠长的东方美学是国人血脉里流淌着的与生俱来的审美,是镌刻在骨子里的浪漫基因。步入“知命之年”的周氏夫妇,半生勤勉,操持着办公家具的家业,算是半个同行。他们对中式风格始终有着一份挥之不去的情怀,希望这个新家可以打造为富含东方韵致的高雅圣殿。 设计团队摒弃传统中式风格的深沉色调,取而代之以淡雅的米色铺陈家的底色,打造出月朗风清、人淡如菊的翩然诗韵。最引人注目的莫过于处于视觉中心的沙发背景墙,富有层次的巧心设计让墙面如诗画卷轴一般徐徐展开:山石松柏,亭台楼阁,祥云环绕,以细腻工笔娓娓道来。大面积留白,营造出高山流水的高雅意境。起笔山水,写意生活,亦以“背倚山水”之美好寓意,点石成金般让整个空间的气韵灵动起来。
  • 图片
  • 图片
  • 图片
  • 图片
  • 图片
  • 图片
  • 图片
  • 图片
  • 图片
  • 图片
  • 图片
  • 图片
  • 图片
  • 图片
  • 图片
  • 图片
  • 图片
  • 图片
  • 图片
  • 图片
  • 图片
  • 图片
  • 图片
  • 图片
  • 图片
  • 图片
  • 图片
  • 图片
  • 图片
  • 图片
  • 图片
  • 图片
  • 图片
  • 图片
  • 图片
  • 图片
  • 图片
  • 图片
  • 图片
  • 图片
  • 图片
  • 图片
  • 图片
  • 图片
  • 图片
  • 图片
  • 图片
  • 图片
  • 图片
  • 图片
  • 图片
  • 图片
  • 图片
  • 图片
  • 上一个 下一个
    2024第八届金腾奖 私宅(独居)丨私宅(多人居)丨餐饮丨酒店丨办公丨商业丨公共丨公益丨人物丨NEW100 jintengAWARD(小金_金腾奖组委会) 广州市海珠区琶洲大道68号华新中心21楼
    金腾奖视频号 金腾奖小红书号 监制:刘译遥
    统筹:张俊媚
    运营:赖钰炼 曹凯月 刘芳棋 小金
    新媒体:王贝贝 严洁 张文一
    技术:黄天佑 丁德昌
    最终解释权归金腾奖主办方所有