In a moment of thought
作品详情
  • Details of the work 标题横线
    头像或者logo
    图片 陶智
    城市:南昌
    公司: 古陶设计事务所-
    参赛作品: 一念之间
    空间类型:别墅
    个人/公司简介:
    高级室内设计师/风水三合派学者 江西省古陶装饰工程有限公司 创始人 江西省陈设艺术协会委员 中国建筑协会(高级)室内设计师 APED亚太设计(高级)设计师 中国照明学会(CLES)会员 中国建筑装饰协会会员 1、2013年毕业于南昌大学 室内设计本科 2、2012.9-2015.2就业与广州轩怡有限公司 3、2015年自主创业室内设计工作室 4、2019年注册江西省古陶装饰有限公司 荣获奖项: 2014年大自然家具优秀奖 2014年未来之星装修设计大赛(华南赛区)最佳设计奖 2019年金鹰奖年度精英设计师 2019年中国建筑装饰协会第十六届“华鼎奖”金奖 2020年冠珠杯亚太设计名师奖 2020江西省年度青年杰出设计师奖 2021亚太空间设计年度杰出设计师奖 2021-2022年度上海国际设计周匠心设计奖 2021-2022年度上海国际设计周新锐设计奖 2022年精英网优秀设计师 2022年喜盈门夏季豪宅家装设计展优秀奖 2022上海设计周别墅大宅设计精英设计师 2022上海设计周店装-展陈空间设计精英设计师 2022年度大南昌都市圈先锋设计人物TOP100 2021-2022喜盈门杯第14届年度十佳新锐设计师 2023年华立股份集团优秀合作设计师 2023年江西室内设计大赛智造杯 设计理念: 以合适的展现形式,诠释出您合适的生活方式
    设计说明 | Design Instruction
  • 项目定位: 「一直以来,我们都期待藉由精心安排的布局,恰如其分地突显空间本身的优势。」确实,当你推开这间屋子大门时,就在一眼瞬间,相信绝大多数人的目光,将深深钟情于眼前这番柔和动人的风光。轻浅的空间底调,恰如一片偌大的画布,特意留给窗外的四季天光与视野辽阔的景貌,按时序流转,涂抹上最合时宜的色彩。一念之间尽收美景。 空间意境: 我们主张「空间不要做太满,要留余地可以呼吸」消弭厚重感,充分展现「会呼吸的家」的轻盈感受。时光和流行转瞬即逝,而空间所营造的那个无形的瞬间,意味可以由一些东西来承载,这些“瞬间”显得自然而然,背后却是设计师的“刻意而为”。布局、选材和摆件,每个细节都被精心考虑,呈现的便是骨子里始终想保持的独树一帜,更重要的是整体“不刻意”的放松舒展。 空间布局: 本案项目经过品辰团队的细腻思量与缜密编排,表现了简致纯粹,毫无一丝过度装饰的样态。 温暖的基调继续延伸,通过大量使用棉麻、皮革、原木等天然材质,舒缓与安静的特质在家中彰显......来到这里,你或许可以感受到我们对氛围的理解与诠释。内心的安静与平和,正是我们在这个家中所想表现的。 设计选材: 温暖的基调继续延伸,通过大量使用棉麻、皮革、原木等天然材质,舒缓与安静的特质在家中彰显......来到这里,你或许可以感受到我们对氛围的理解与诠释。内心的安静与平和,正是我们在这个家中所想表现的。 用户体验: 空间和主人可以与之共生共长,相互融合成体现居住者多重面向的精神所在。那兴许就是他们内心最崇慕的自由乌托邦吧。而我们也更加期待这个家,持续生长成温润美好的幸福光景!
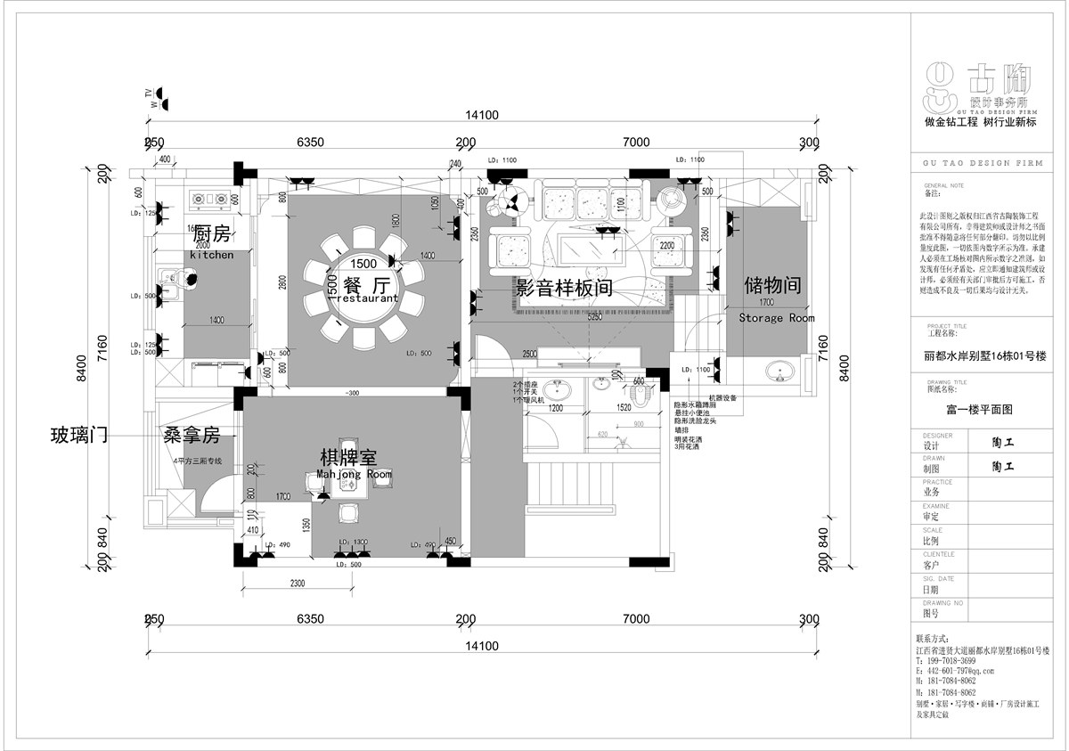
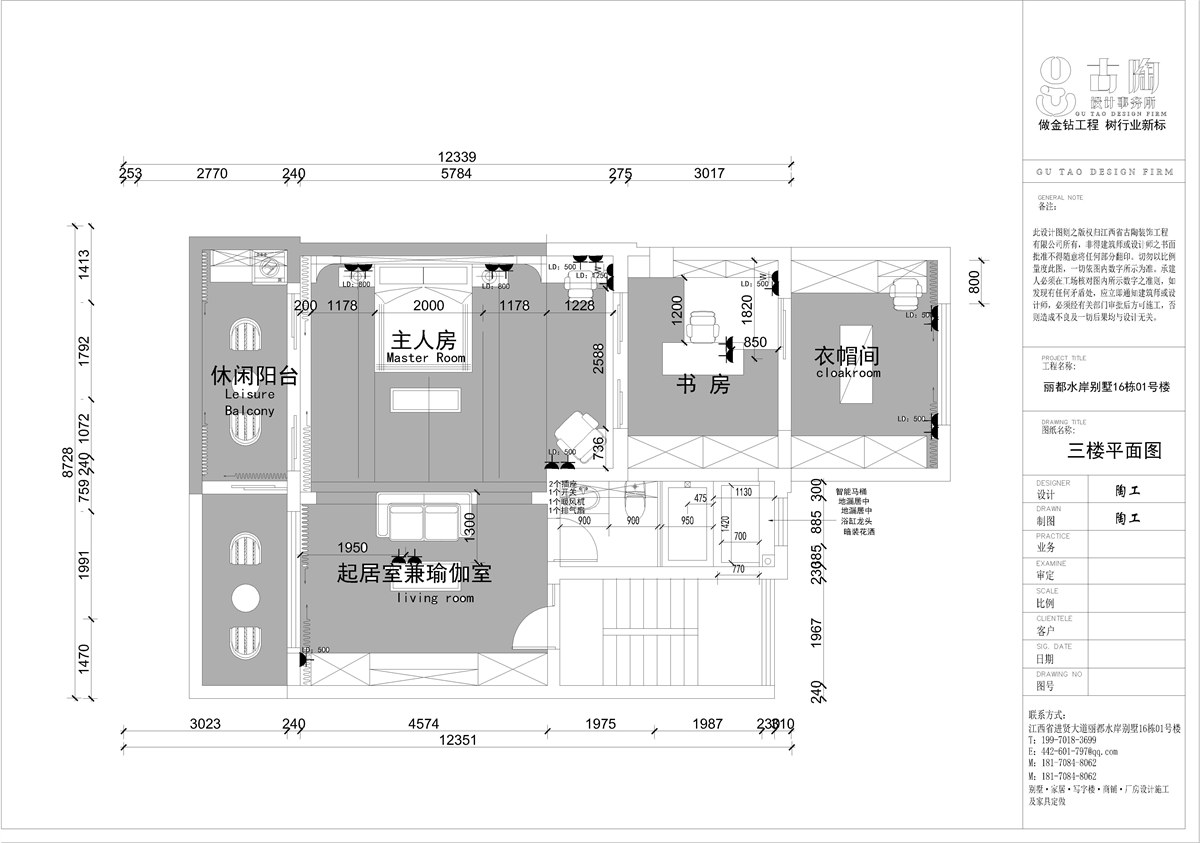
  • 图片
  • 图片
  • 图片
  • 图片
  • 图片
  • 图片
  • 图片
  • 图片
  • 图片
  • 图片
  • 图片
  • 图片
  • 图片
  • 图片
  • 图片
  • 图片
  • 图片
  • 上一个 下一个
    2024第八届金腾奖 私宅(独居)丨私宅(多人居)丨餐饮丨酒店丨办公丨商业丨公共丨公益丨人物丨NEW100 jintengAWARD(小金_金腾奖组委会) 广州市海珠区琶洲大道68号华新中心21楼
    金腾奖视频号 金腾奖小红书号 监制:刘译遥
    统筹:张俊媚
    运营:赖钰炼 曹凯月 刘芳棋 小金
    新媒体:王贝贝 严洁 张文一
    技术:黄天佑 丁德昌
    最终解释权归金腾奖主办方所有