LOCALS HOTELS
作品详情
  • Details of the work 标题横线
    头像或者logo
    图片 洪晓达 广州卡撒传媒特约推荐
    城市:广州
    公司: 广州市洪晓达室内设计顾问有限公司
    参赛作品: 路客HOTELS
    空间类型:商业
    个人/公司简介:
    洪晓达DANIEL HONG 广州市洪晓达室内设计顾问有限公司 设计总监兼创始人 13年高端项目设计经验 荣获2016-2017年度国际环艺创新设 计大赛华鼎奖办公空间“银奖” 荣获2018-2019年度国际环艺创新设计大赛华鼎奖办公空间“金奖” 荣获2019年度亚太空间设计“空间艺术大师”称号 荣获2019年“年度精英设计师”称号 第十一届创意中国设计大奖优秀奖 荣获2019年度老宅新生奖“最佳古建筑保护设计奖” 荣获2020中国(广东)住宅设计精英榜100强 入选1000 DESIGNERS PLAN设计千人计划设计师 荣获2021中国(广州)40 UNDER 40上榜设计师; 荣获2021金住奬-中国(广州)十大居住空间设计师。
    设计说明 | Design Instruction
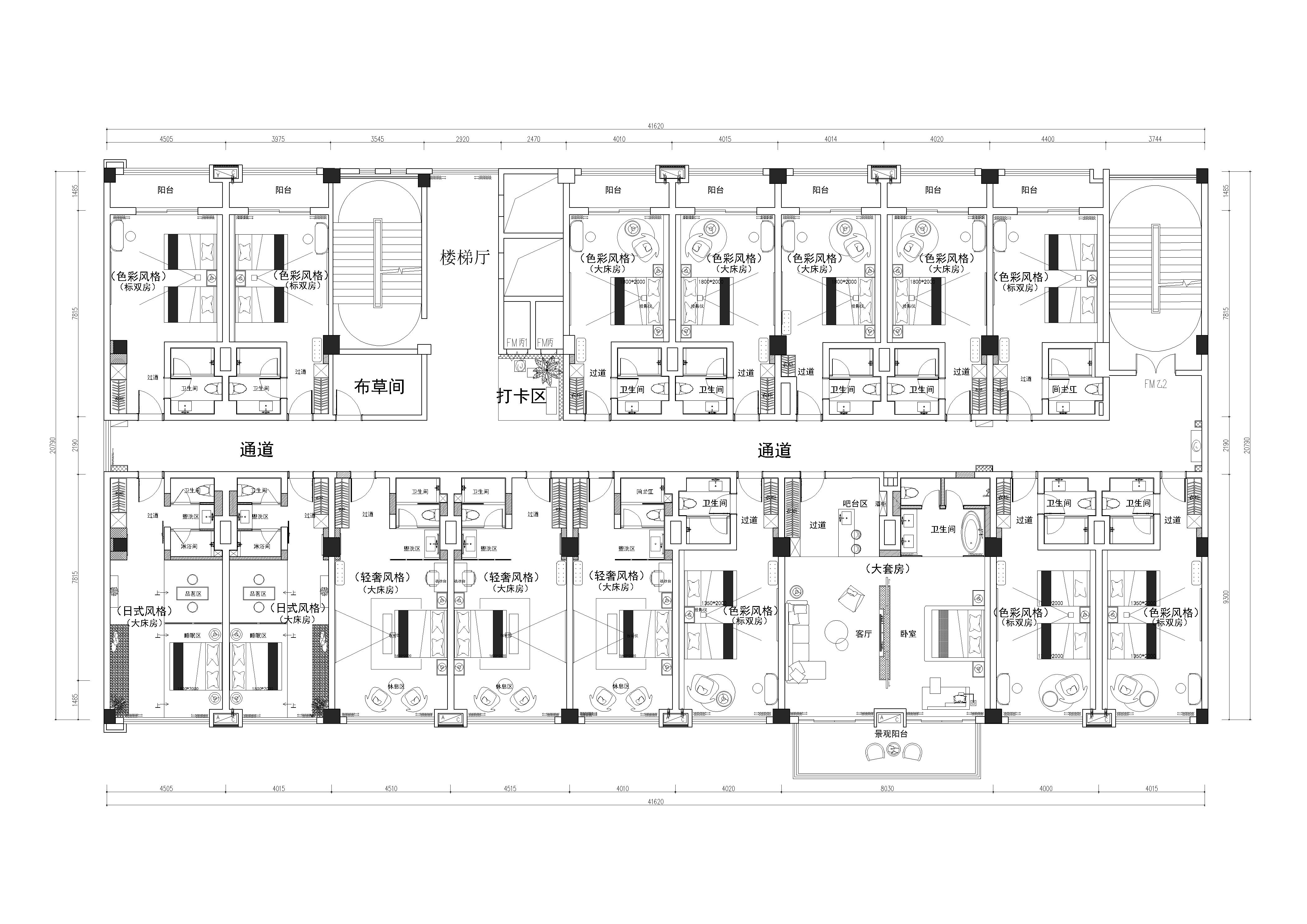
  • 本案位于广州花都创美金谷园区内,项目主要针对园区各类网络电商网红及机场出差者等人群为主,因此该酒店整体风格定位区别于常规的商务酒店,摒弃常规商务酒店中规中矩的设计手法。更多融入了更多适合年轻人及网红等个性化的设计,致力打造一间新颖独特且具备时尚艺术的精品网红酒店。 空间规划上,酒店大堂的设计区别于常规一般酒店大堂,在有限的空间中,通过互溶、互联、重组的设计手法,将酒店前台区和大堂吧等功能融为一体,前台与吧台合二为一,弱化酒店前台的商务标识性,提供一种不一样的服务体验。大堂与电梯厅之间增设了艺术网红通道,不仅加强了空间的层次感,同时营造一个时尚艺术的网红打卡空间,达到空间功能与艺术的完美结合。 客房空间为了满足不同类型的网红达人不同的需求,设计了不同风格的房间,并根据房间的不同风格,在空间格局上做了不同程度的改造以便满足不同空间入住者的各种不同需求。 材料运用上,由于项目预算并不充裕,再结合网红达人该群体的特殊性需求,整个空间摈弃过多的造型设计,更多采用了色彩和灯光相结合,营造一个具有现代时尚,艺术个性的精品酒店。因此在整个酒店选材尤为重要,所有材料都经过设计师非常精细化设计,确保空间用材的环保性,持久性,品质感。
  • 图片
  • 图片
  • 图片
  • 图片
  • 图片
  • 图片
  • 图片
  • 图片
  • 图片
  • 图片
  • 图片
  • 图片
  • 图片
  • 图片
  • 图片
  • 图片
  • 图片
  • 图片
  • 图片
  • 图片
  • 图片
  • 上一个 下一个
    2024第八届金腾奖 私宅(独居)丨私宅(多人居)丨餐饮丨酒店丨办公丨商业丨公共丨公益丨人物丨NEW100 jintengAWARD(小金_金腾奖组委会) 广州市海珠区琶洲大道68号华新中心21楼
    金腾奖视频号 金腾奖小红书号 监制:刘译遥
    统筹:张俊媚
    运营:赖钰炼 曹凯月 刘芳棋 小金
    新媒体:王贝贝 严洁 张文一
    技术:黄天佑 丁德昌
    最终解释权归金腾奖主办方所有