Turn your home into an art collection
作品详情
  • Details of the work 标题横线
    头像或者logo
    图片 广州301设计研究所 广州卡撒传媒特约推荐
    城市:广州
    公司:广州301设计研究所
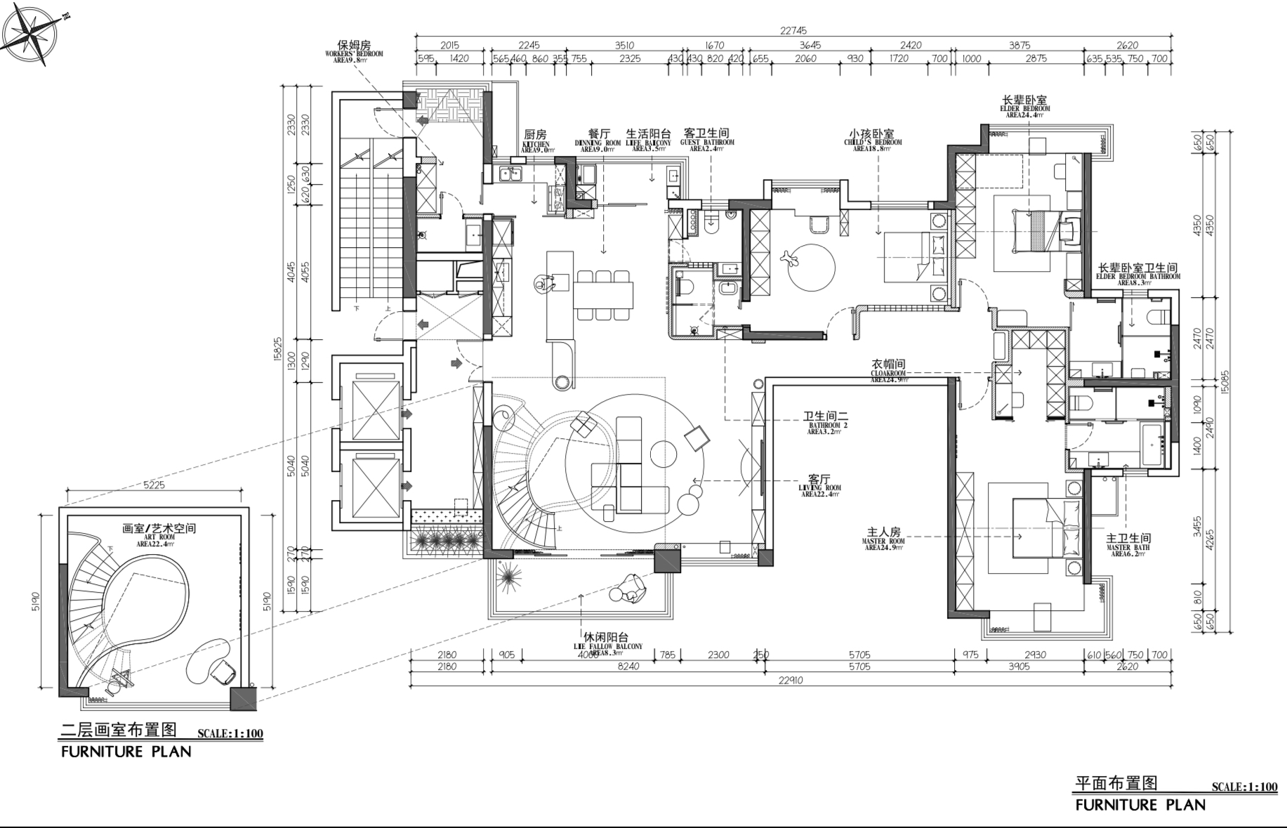
    参赛作品: 把家变成艺术收藏馆
    空间类型:别墅
    个人/公司简介:
    广州301设计研究所是一家专注人居领域十年以上的专业设计公司,运用全案设计思维统筹项目,拥有系统的项目落地经验和严格的管控体系。专注于人与环境关系的研究,统筹规划设计、施工、软装、灯光专业等全部流程,把控最终实景呈现。致力于打造高品质的私宅、楼盘、别墅、公寓、洋房、会所等全案项目。                                            301设计理念:“让有想法的人,住有想法的家”。推崇按照内心想法去生活的理念;追求实现创意与解决问题,并能实现有温度的场景,从新建立起人与人之间的链接;用家居空间的创意设计来激发居住者源源不断的生活灵感;认真去生活,找到自己的生活美学和独特风格。
    设计说明 | Design Instruction
  • 本案大平层的轻法式设计融合局部的新美式元素,通过对空间结构的梳理规划和多种材质的组合运用,打造出一个审美与功能相高度统一的艺术气质居所。本案的设计围绕“交流”、“品质“和“艺术“展开,设计师在对空间动线的规划、软装的布局、材质的搭配以及陈设的选择上下功夫,将三个关键词贯穿始终。
  • 图片
  • 图片
  • 图片
  • 图片
  • 图片
  • 图片
  • 图片
  • 图片
  • 图片
  • 图片
  • 图片
  • 图片
  • 图片
  • 图片
  • 图片
  • 图片
  • 图片
  • 图片
  • 图片
  • 图片
  • 图片
  • 图片
  • 图片
  • 图片
  • 图片
  • 图片
  • 图片
  • 图片
  • 图片
  • 图片
  • 图片
  • 图片
  • 图片
  • 图片
  • 图片
  • 图片
  • 图片
  • 图片
  • 图片
  • 图片
  • 图片
  • 图片
  • 图片
  • 图片
  • 图片
  • 图片
  • 图片
  • 图片
  • 图片
  • 图片
  • 图片
  • 上一个 下一个
    2024第八届金腾奖 私宅(独居)丨私宅(多人居)丨餐饮丨酒店丨办公丨商业丨公共丨公益丨人物丨NEW100 jintengAWARD(小金_金腾奖组委会) 广州市海珠区琶洲大道68号华新中心21楼
    金腾奖视频号 金腾奖小红书号 监制:刘译遥
    统筹:张俊媚
    运营:赖钰炼 曹凯月 刘芳棋 小金
    新媒体:王贝贝 严洁 张文一
    技术:黄天佑 丁德昌
    最终解释权归金腾奖主办方所有