Modern duplex apartment, the home of long-term
作品详情
  • Details of the work 标题横线
    头像或者logo
    图片 莫泽鹏 广州卡撒传媒特约推荐
    城市:广州
    公司: 奕米设计
    参赛作品: 现代复式公寓,长期主义的家
    空间类型:公寓(150㎡以下)
    个人/公司简介:
    设计师履历 奕米设计工作室:主案设计师 荣誉情况: 国际建筑装饰室内设计协会-高级室内设计师-莫泽鹏 2022【寻找设计力量】全屋门窗解决方案设计大赛-二等奖 2022 第十八届中国国际建筑装饰及设计艺术博览会-百强新锐设计师 2023 广州设计周-2023 家装设计百强人物 设计理念: 用心設計,間單生活
    设计说明 | Design Instruction
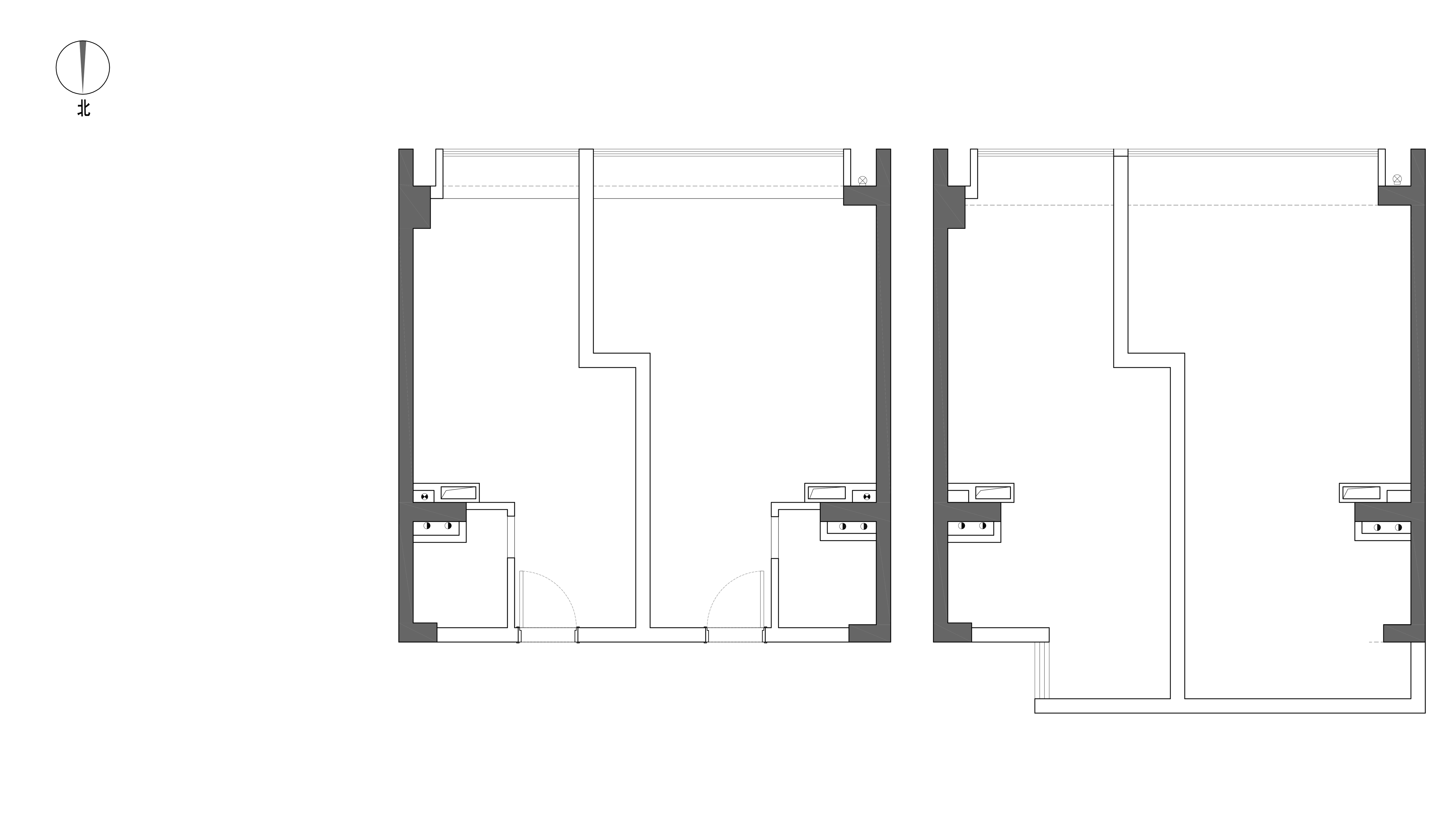
  • less is more是20世纪30年代著名的建筑师路德维希·密斯·凡德罗说过的一句话,意思是"少即多"这是一种提倡简单,反对过度装饰的设计理念。简单的东西往往带给人们的是更多的享受。 每个人对生活的理解都有些许不同,而站在设计师的角度来理解这个事情,我们只看居住者本身,真正的高频使用者,他们对于空间的切实需求到底是什么? 甲方是一位自由职业的小姐姐,设计需求以个人为主,大部分时间都是与朋友聚会活动为主。所以设计师做了一个大胆的改动——将两套Loft打通后只保留一居。 设计师在探索所谓使用率的问题。对于自由职业的人来说,除了日常的居家办公之外,就是约约朋友到家里做客,喝喝下午茶,聊聊各自遇到的奇闻趣事。 设计师将客厅放在房子的中空位置,取最宽敞、采光最好的位置,融合餐厅、厨房、飘窗等功能。 居住空间的本质还是以生活为主,生活除了油盐酱醋,还有情绪的安放。去除多余的、浮夸的装饰造型,用最简单的手法来营造生活场景。 业主喜欢干净的一切,喜欢隐藏一切能隐藏的冗杂的设备。她的精神世界是干净的、纯洁的。 生活,不只是为了活着,更是为自己构筑一个精神的归隐,用于安放纯净的心灵。 空间与空间之间应当是开放而非闭塞的,对于自己的居住空间来讲,除了卧室需要静闭,其余都应是随意穿梭,以满足内在精神的自由度。 极简生活的本质是收纳,而收纳背后,即是断舍离的生活态度。时刻保持与过去的自己告别,迎接新生活新状态,这其中需要比常人更多的勇气和透彻。 当我们学会给生活做减法,剩下的便是纯净的情感。一杯咖啡、一份杂志、一缕阳光,眼见即是过去。 改造思路: 首先,把两套loft之间的共墙(非承重墙体)拆除,将两套loft合并成一套,由于6米的层高优势,部分区域计划做成中空的设计,将客厅的空间放在采光最好的右边,餐厨空间放在采光最好的左右, 原有入户门将保留一个,将玄关和展示区放在入户的区域,私密空间(卧室,衣帽间,书房)规划在二楼的空间。 改造后的平面方案: 首先,大门进来后,正前方的位置放置了鞋柜,不到顶的鞋柜设计,弱化进门产生的压抑感,换鞋区与柜子相结合,穿插的设计手法,打破常规的玄关的设计,都同时兼顾到了收纳性和通透性, 右手边的空间是一楼的卫生间,纯白色的隐形门的设计,与墙体很好的融合成一体,保证了整体设计风格的美观性。 左边是进入客餐厅的必经之路,既是玄关的过道,也是乐高展示的区域,乐高模型柜具备收纳和美观性,悬空的设计与木饰面背景,全身镜相结合,整体立面上具备极强的美观展示作用,家政间的设计,解决电器设备的问题(扫地机器人,吸尘器,电热水器,及全屋的净水设备等) 开放式的厨房,纯白的橱柜设计,保证了极简空间的干净,纯粹,咖啡角落放置在飘窗上面,对着户外高空,生活的仪式感还是满满的,侧面的位置也设计了开放的立柱柜,做为日常杯子和咖啡豆的储放; 2.4米的大桌子即是用餐桌也是工作台,胡桃木色与黑色岩板的咬合设计,稳固而不失趣味,内嵌插座也便于日常的使用; 客厅的空间,慵懒的沙发位于客餐厅的中间,空间的自由度得以释放,楼梯设计与电视背景墙相结合,纯白的岩板与木地板搭配设计,增加空间的延展性; 原有飘窗位置,用木地板的材质设计成坐台的形式,兼顾休闲和展示的作用;木地板坐台、沙发、纯白色岩板地台,在客厅空间呈现出U型的围合设计,非常适合日常聚会人多的时候,可以随意就坐,不拘谨与成品家具的会客模式; 二楼的空间,开放式的衣帽间与书房相结合,暗拉把手的衣柜收纳,浅色系的衣柜仿佛隐形与空间中,完全不会有视觉拥堵感,2.8米长的书桌兼顾梳妆桌,挑空的桌面与收纳抽屉柜结合设计,面向中空的位置,是整个内部空间视野最佳的位置之一; 主卧保留了原始的功能,就是休息,保证业主的睡眠质量,落地玻璃正对楼下客厅,保证整个空间的通透性,天花顶部内置卷帘确保主卧的私密性; 主卫干湿分离处理,岩板台面的材质,与收纳柜一体设计,淋浴间做下沉设计,不需要额外增加挡水石,壁龛的设计,方便淋浴用品的摆放,生活阳台规划在主卫的旁边,内嵌的洗烘一体机,满足收纳的前提上也做了抬高处理,日常使用不需要弯腰拿衣服,动线上方便屋主的洗衣晾晒。
  • 图片
  • 图片
  • 图片
  • 图片
  • 图片
  • 图片
  • 图片
  • 图片
  • 图片
  • 图片
  • 图片
  • 图片
  • 图片
  • 图片
  • 图片
  • 图片
  • 图片
  • 图片
  • 图片
  • 图片
  • 图片
  • 图片
  • 图片
  • 图片
  • 图片
  • 图片
  • 图片
  • 图片
  • 图片
  • 图片
  • 图片
  • 图片
  • 图片
  • 图片
  • 图片
  • 图片
  • 上一个 下一个
    2024第八届金腾奖 私宅(独居)丨私宅(多人居)丨餐饮丨酒店丨办公丨商业丨公共丨公益丨人物丨NEW100 jintengAWARD(小金_金腾奖组委会) 广州市海珠区琶洲大道68号华新中心21楼
    金腾奖视频号 金腾奖小红书号 监制:刘译遥
    统筹:张俊媚
    运营:赖钰炼 曹凯月 刘芳棋 小金
    新媒体:王贝贝 严洁 张文一
    技术:黄天佑 丁德昌
    最终解释权归金腾奖主办方所有