Changgang East Road
作品详情
  • Details of the work 标题横线
    头像或者logo
    图片 广州胡狸胭脂设计 广州卡撒传媒特约推荐
    城市:广州
    公司:广州胡狸胭脂设计
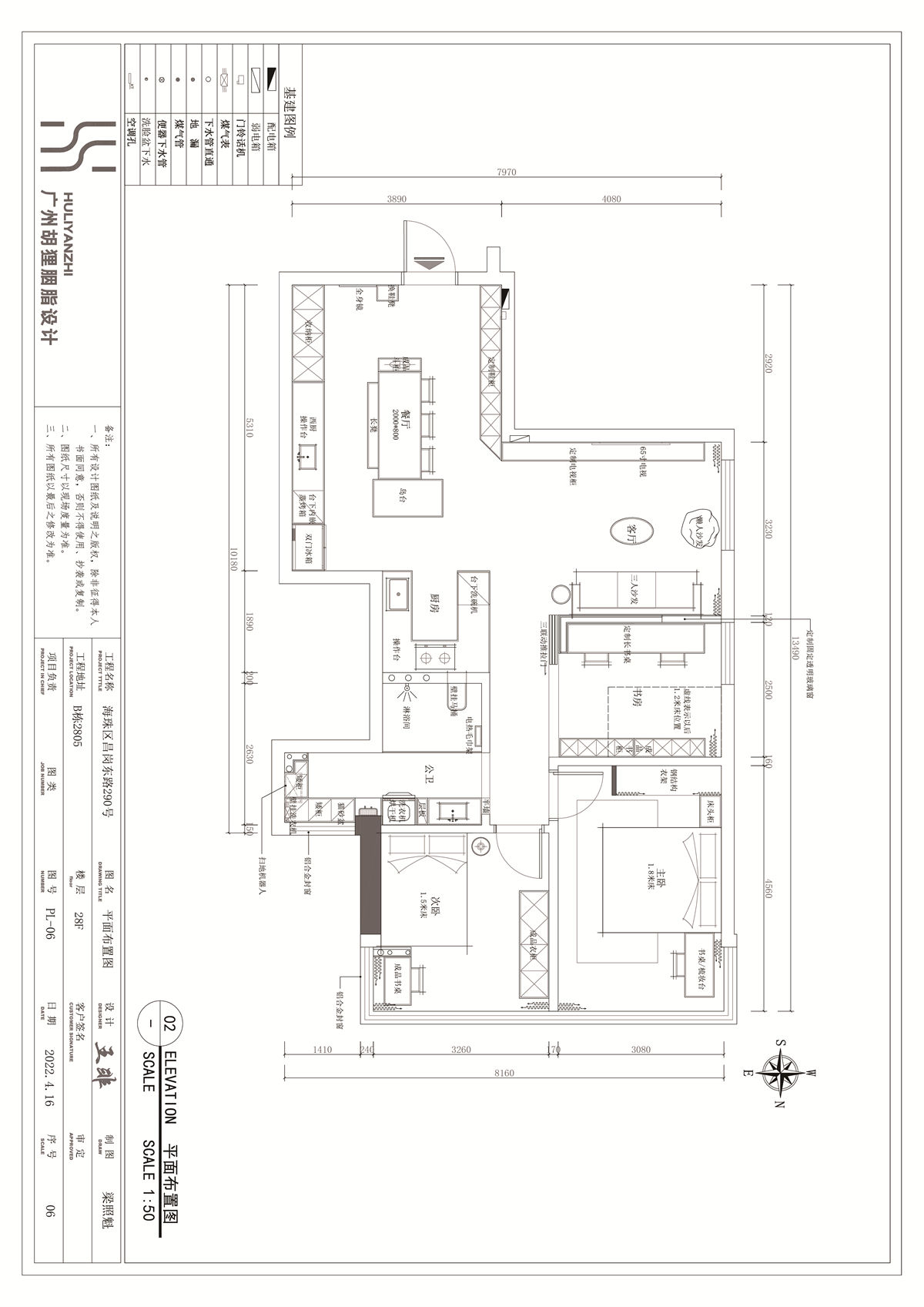
    参赛作品: 昌岗东路
    空间类型:公寓(150㎡以下)
    个人/公司简介:
    广州市胡狸胭脂室内设计有限公司是一家致力于【关于家】独立的·专业的设计公司。 广州市胡狸胭脂室内设计有限公司是由胡狸与胭脂二位女性设计师创办于2009年,为了坚持纯粹的设计理念,我们打造了独立的设计工作室,十年的纯家装设计,让我们对家的设计视为:对生活的热爱及价值的体现,让更多的人拥有梦想的居所及职业的骄傲与荣誉感。 我们的核心是:十年的家装设计服务,深深懂得家对人的重要性与独特性,正因为懂得所以珍惜。 我们的价值是:拥有一群志同道合的,专业的设计团队来为你们真诚的服务,成为你们家的引路者。 我们的态度是:让更多的人拥有梦想的家,更好的适合自己的生活方式。
    设计说明 | Design Instruction
  • 原始格局:97m²三房两厅格局,原户型缺陷较多。玄关及客厅采光严重不足,卫生间面积小且无采光,厨房离客餐厅太远,每个卧室面积都略小且阳台较为鸡肋,整体收纳都偏少; 好在室内空间承重墙较少,不影响重新调整格局。 改造后 :1、客餐厅位置调换,把客厅面积扩大,书房做半墙加固定玻璃增加空间采光 2、厨卫位置互换调整,开放式厨房衔接岛台餐桌一体,动线更为合理。卫生间洗衣房空间一体更方便使用; 3、主次卧封阳台纳入室内,使用面积扩大 玄关做了整面鞋柜至电视柜一体设计,充分满足了收纳需求,做了部分镂空造型及整体是白色与木色的拼色处理,和整个空间软装风格呼应~ 客厅视角 整体是北欧原木风的氛围搭配,客厅宽度扩大保证空间舒适度,沙发背靠书房做了半墙设计,增加视线红蓝轴尺寸,另外可以把书房采光也补充至公共空间,弥补了采光不足的缺点。原有梁位较低做了弧形处理及部分灯带修饰,开放式中西厨加回形动线,不到100平方也可以有大平层的感觉。
  • 图片
  • 图片
  • 图片
  • 图片
  • 图片
  • 图片
  • 图片
  • 图片
  • 图片
  • 图片
  • 图片
  • 图片
  • 图片
  • 图片
  • 图片
  • 图片
  • 图片
  • 图片
  • 上一个 下一个
    2024第八届金腾奖 私宅(独居)丨私宅(多人居)丨餐饮丨酒店丨办公丨商业丨公共丨公益丨人物丨NEW100 jintengAWARD(小金_金腾奖组委会) 广州市海珠区琶洲大道68号华新中心21楼
    金腾奖视频号 金腾奖小红书号 监制:刘译遥
    统筹:张俊媚
    运营:赖钰炼 曹凯月 刘芳棋 小金
    新媒体:王贝贝 严洁 张文一
    技术:黄天佑 丁德昌
    最终解释权归金腾奖主办方所有