Room 301, Building 27, Courtyard 24 Huanghua Road
作品详情
  • Details of the work 标题横线
    头像或者logo
    图片 广州胡狸胭脂设计 广州卡撒传媒特约推荐
    城市:广州
    公司:广州胡狸胭脂设计
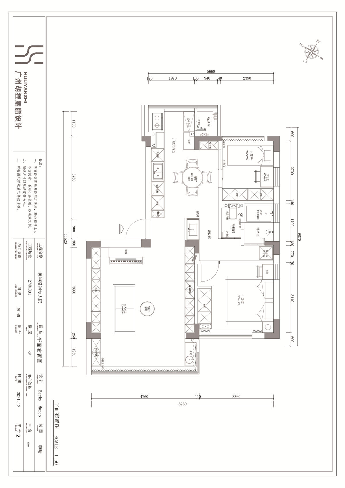
    参赛作品: 黄华路24号大院27栋301
    空间类型:公寓(150㎡以下)
    个人/公司简介:
    广州市胡狸胭脂室内设计有限公司是一家致力于【关于家】独立的·专业的设计公司。 广州市胡狸胭脂室内设计有限公司是由胡狸与胭脂二位女性设计师创办于2009年,为了坚持纯粹的设计理念,我们打造了独立的设计工作室,十年的纯家装设计,让我们对家的设计视为:对生活的热爱及价值的体现,让更多的人拥有梦想的居所及职业的骄傲与荣誉感。 我们的核心是:十年的家装设计服务,深深懂得家对人的重要性与独特性,正因为懂得所以珍惜。 我们的价值是:拥有一群志同道合的,专业的设计团队来为你们真诚的服务,成为你们家的引路者。 我们的态度是:让更多的人拥有梦想的家,更好的适合自己的生活方式。
    设计说明 | Design Instruction
  • 始于自然,归于宁静;日式风格给予人的感觉一直是温馨的亲近的,在原木的衬托下更是温暖恬静,日式风格虽然外表朴实自然,但往往原木跟白色的简约色调更能反映出居住者自然的居家氛围,让人满眼舒适。 家,是让归家人慢下来的避风港,是居一方天地,看世界变化的居心地,我们创造家,同时也被家所治愈,我们希望让家产生温度的不仅仅是收纳,功能,颜值还有对生活和对家的热爱。 客厅:摒弃传统客厅功能,把图书馆搬回家的去客厅化,电视墙变书墙,彻底实现了阅读自由,同时让孩子形成耳濡目染的阅读习惯,一边书墙一边收纳柜,极致利用空间收纳;窗外树影的斑斓与光线的变化,让整个空间充满自然,静谧的日系美感,无需电视背景墙的繁杂,一整面书墙带来日系文艺的慵懒氛围。 餐厨:还原日剧感的开放式厨房,改掉原本阴暗的封闭式厨房,餐厨结合一体,动线更完整流畅,也提升空间之间的互动性。厨房墙面做万物皆可吸的珐琅版,兼顾磁吸收纳及易清洁功能。 主卧:原木色的延续,清新自然,微黄的灯光氛围,打造满满的暖居疗愈感,衣柜采用了骊住的折叠门,推开门后是屋主断舍离后的轻装上阵。 小孩房:没有过多复杂的设计,回归简单温馨的本质,弧形线条的家具,避免小孩磕碰同时多了圆润可爱的感觉。 过道洗漱区:采用完整的三分离形式,最大化做到不同作息习惯的家人不影响对方休息,幸福感翻倍。 马桶间:马桶见侧面设置了增加采光的玻璃砖,地面木地板通铺进去,实测无需担心马桶溅水问题。 淋浴房洗衣房:淋浴间采用折叠门,轻便不占空间,好拆卸,洗衣房连接淋浴房,使用更加便利。
  • 图片
  • 图片
  • 图片
  • 图片
  • 图片
  • 图片
  • 图片
  • 图片
  • 图片
  • 图片
  • 图片
  • 图片
  • 图片
  • 图片
  • 图片
  • 图片
  • 图片
  • 图片
  • 图片
  • 图片
  • 图片
  • 图片
  • 图片
  • 上一个 下一个
    2024第八届金腾奖 私宅(独居)丨私宅(多人居)丨餐饮丨酒店丨办公丨商业丨公共丨公益丨人物丨NEW100 jintengAWARD(小金_金腾奖组委会) 广州市海珠区琶洲大道68号华新中心21楼
    金腾奖视频号 金腾奖小红书号 监制:刘译遥
    统筹:张俊媚
    运营:赖钰炼 曹凯月 刘芳棋 小金
    新媒体:王贝贝 严洁 张文一
    技术:黄天佑 丁德昌
    最终解释权归金腾奖主办方所有