栖居
作品详情
  • Details of the work 标题横线
    头像或者logo
    图片 秦方霞 芜青设特约推荐
    城市:芜湖
    公司: 麦子设计
    参赛作品: 栖居
    空间类型:公寓(150㎡以下)
    个人/公司简介:
    1.我们的理念:「家,不将就」-- 设计,改变生活 我们把设计当作造梦工具,从生活的角度和人的需求出发。是人与环境的整合,与环境紧密结合的有机体。 十多年的设计探索,始终保持着对设计的不将就的态度。我们所服务的每一个家,不仅仅满足功能和生活需求,或者外观上的好看,更需要有温度 有灵魂,能为业主带来良好的生活方式和力量空间。 2.专业领域 私宅设计/商业空间设计/民宿设计/别墅/洋房/全案落地
    设计说明 | Design Instruction
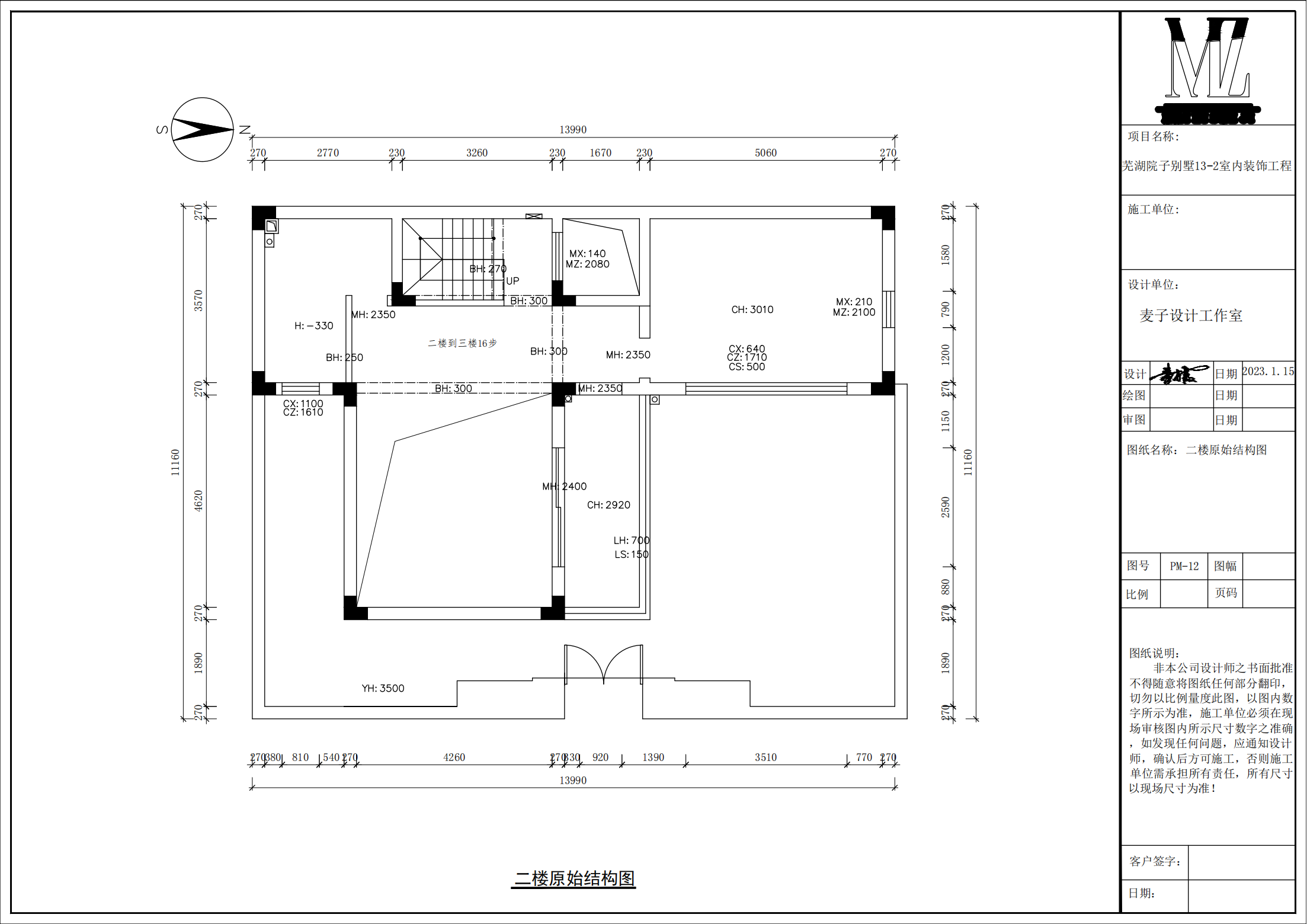
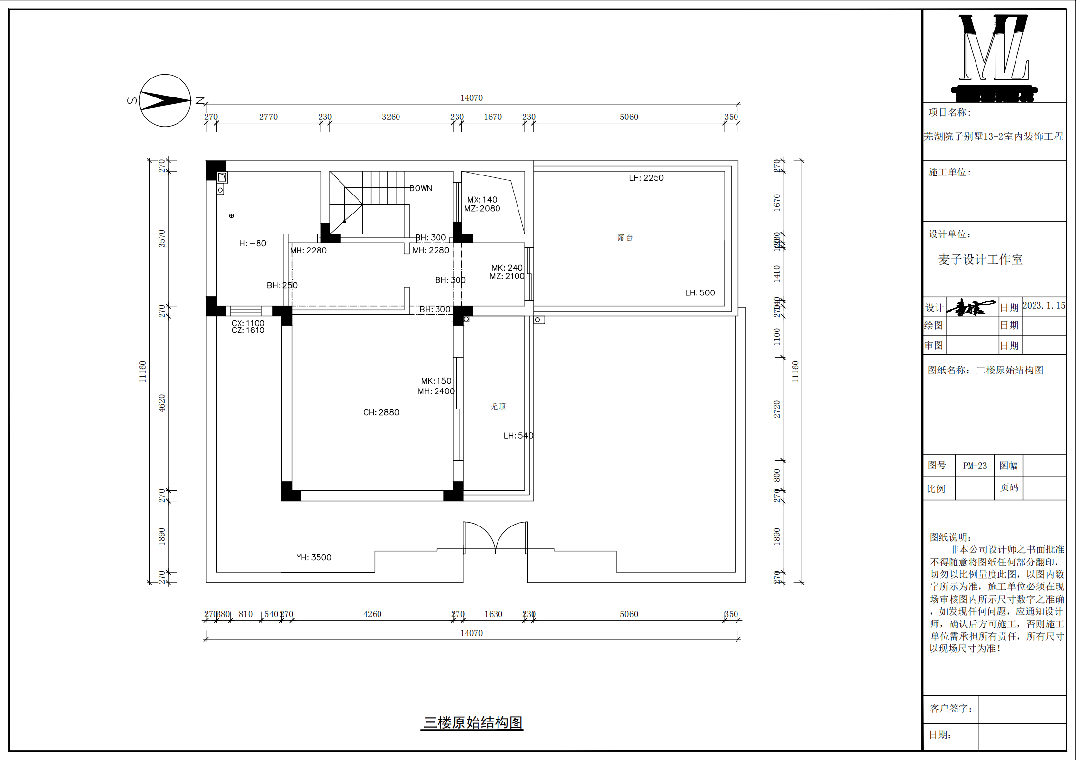
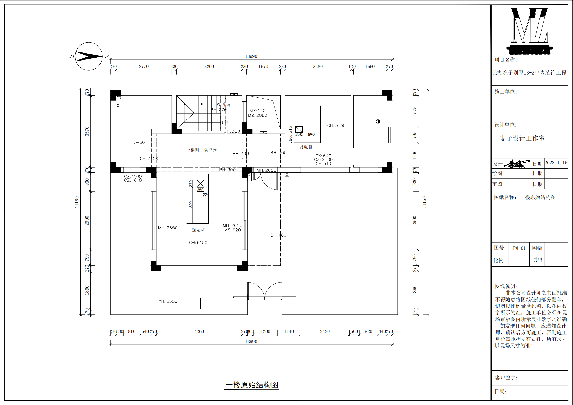
  • 1.项目信息: 项目位置:芜湖.芜湖院子 项目类型:联排别墅 项目面积:建筑面积200平 主案设计:秦方霞 软装设计:王亮 张梦瑶 2.设计理念: 业主很喜欢民宿风格的装修,希望回家的感受,像在外面旅游一样轻松舒适,同时也具有一定设计调性的空间。本案以现代极简风,采用了民宿的设计理念,同时也兼具了居住者的实用性。 自然融入:通过自然光 绿植和天然材质的运用,营造一个健康环保的居住环境,让你回家就享受一种松弛感,感受大自然的气息。 以人为本:我们注重细节,从每一个小细节入手,提升你的生活品质和幸福感。、 3.空间规划: 一楼客厅采用开放式设计,连接餐厅和厨房,打造宽敞明亮的活动空间,把原来的餐厅区改成老人房,方便老人活动。把餐厅 厨房和客厅融合在一起,动静分离。餐厅与厨房相连,方便家人间的交流互动。 客厅保留了原本的挑高空间,空间感更加的得到延伸。多层次的照明设计,包括主灯 射灯和落地灯,营造温暖的氛围。 二楼一整层作为女儿房的套房设计,原本卧室里面没有卫生间的,我们隔出一间半开放式的卫生间,方便使用。把原来的阳台,做成一间书房,即敞亮,又不会被打搅,学习累了也可以看看窗外的景色。 三楼为主卧空间:主卧把浴缸大胆的放在卧室的窗户边,做了地台的抬高设计。原来是个露天的露台,纳入到卧室的空间,增加空间的尺度,做了日夜帘,具备了私密性的同时也有氛围感,一整个就像住进了高档民宿里。
  • 图片
  • 图片
  • 图片
  • 图片
  • 图片
  • 图片
  • 图片
  • 图片
  • 图片
  • 图片
  • 图片
  • 图片
  • 图片
  • 图片
  • 图片
  • 图片
  • 图片
  • 图片
  • 图片
  • 图片
  • 图片
  • 图片
  • 图片
  • 图片
  • 图片
  • 图片
  • 图片
  • 图片
  • 图片
  • 图片
  • 图片
  • 图片
  • 图片
  • 图片
  • 图片
  • 图片
  • 图片
  • 图片
  • 图片
  • 图片
  • 图片
  • 图片
  • 图片
  • 图片
  • 图片
  • 图片
  • 图片
  • 图片
  • 图片
  • 图片
  • 图片
  • 图片
  • 图片
  • 图片
  • 图片
  • 图片
  • 图片
  • 图片
  • 图片
  • 图片
  • 图片
  • 图片
  • 图片
  • 图片
  • 上一个 下一个
    2024第八届金腾奖 私宅(独居)丨私宅(多人居)丨餐饮丨酒店丨办公丨商业丨公共丨公益丨人物丨NEW100 jintengAWARD(小金_金腾奖组委会) 广州市海珠区琶洲大道68号华新中心21楼
    金腾奖视频号 金腾奖小红书号 监制:刘译遥
    统筹:张俊媚
    运营:赖钰炼 曹凯月 刘芳棋 小金
    新媒体:王贝贝 严洁 张文一
    技术:黄天佑 丁德昌
    最终解释权归金腾奖主办方所有