Autumn
作品详情
  • Details of the work 标题横线
    头像或者logo
    图片 广州居研设计有限公司 设计引力特约推荐
    城市:广州
    公司:广州居研设计有限公司
    参赛作品: 秋影庭梧
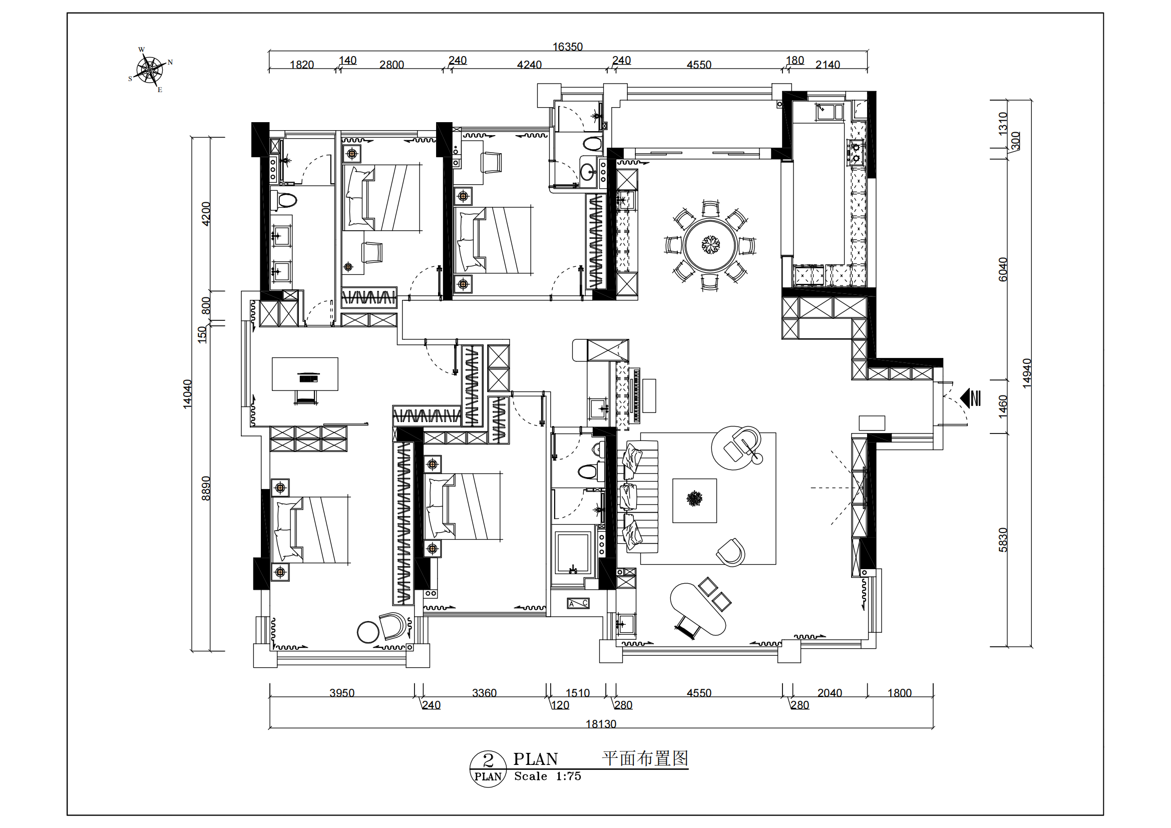
    空间类型:公寓(150㎡以下)
    个人/公司简介:
    广州居研设计有限公司,由热爱生活的优秀设计师林婷婷女士于2019年创立。公司自成立以来就坚持原创、不断创新,“居怡心之所、研生活之美”,我们专业做设计,更专注于生活,做有态度的设计。一直专注于现代化高端空间和环境设计,致力于将高端的设计理念、完美的后续服务带给每一个客户。 设计只是我们相识的媒介,用多年积累的设计经验,改善生活方式,提高生活品质和意识形态。为未来而设计搭建一套解决项目落地问题的管理系统。
    设计说明 | Design Instruction
  • 本案是屋主夫妻二人共同打拼攒下的第一桶金所购,原是毛坯房状态,结构方正。在空间布局上,屋主希望将餐厨的动线打开,也放大各空间的优势,更多互动性的居家生活。280平方的大平层全屋隐形收纳,客餐厅横厅设计,动线流程,留足空间做小朋友的娱乐区。大面积的整墙落地窗将室外山水景观尽收眼底。 住在城市水泥森林里,心灵渴望大自然的安抚。木色整屋有种对大自然的向往与热爱,简单纯净的木色便是那一抹清风,扫除一天的疲劳,让我们的心情放松,带来宁静的夜。 也像极了屋主给我们的印象:积极地学习方方面面的知识,脚踏实地的一步步走向理想的终点。 入户单侧做鞋柜收纳,根据屋主希望尽可能隐藏一切收纳的设计需求,延伸围合作储物室,尽量让空间完整简洁。另一侧保留玄关落地窗,给空间足够的呼吸。 木与白交织,给予空间理性简约的基调,温润的原木搭配同色系软装,开阔的LDK布局尽可能扩展家的尺度,为整个空间带来自由恬静的舒适感。 客厅宽敞透亮,自然流通,用木饰面护墙板做背景墙,格栅处是预留摆放钢琴的位置,屋主希望在这里,可以和孩子一起玩耍、阅读,度过温馨的亲子互动时间。 无主灯吊顶,让大面积的白色配合浅色家具和地毯延伸空间的视觉效果。电视柜上方护墙板与沙发背景相得益彰,互相呼应。 大面积黑框落地窗引光入室的同时,也像极了一幅巨大的山水画。通透而清晰的实时更新远处山景的细微变化之处。在日复一日的生活中寻找那些有着明显四季分明的自然之色。阳台封窗后则是一个可会客交谈,亦或是冥想的角落,在此静坐茗茶,沐浴阳光。将自然景色与生活空间完美的融为一体,充分收获更为宽阔的视野。
  • 图片
  • 图片
  • 图片
  • 图片
  • 图片
  • 图片
  • 图片
  • 图片
  • 图片
  • 图片
  • 图片
  • 图片
  • 图片
  • 图片
  • 图片
  • 图片
  • 图片
  • 图片
  • 图片
  • 图片
  • 图片
  • 图片
  • 图片
  • 图片
  • 图片
  • 图片
  • 图片
  • 图片
  • 图片
  • 图片
  • 上一个 下一个
    2024第八届金腾奖 私宅(独居)丨私宅(多人居)丨餐饮丨酒店丨办公丨商业丨公共丨公益丨人物丨NEW100 jintengAWARD(小金_金腾奖组委会) 广州市海珠区琶洲大道68号华新中心21楼
    金腾奖视频号 金腾奖小红书号 监制:刘译遥
    统筹:张俊媚
    运营:赖钰炼 曹凯月 刘芳棋 小金
    新媒体:王贝贝 严洁 张文一
    技术:黄天佑 丁德昌
    最终解释权归金腾奖主办方所有