Black
作品详情
  • Details of the work 标题横线
    头像或者logo
    图片 广州居研设计有限公司 设计引力特约推荐
    城市:广州
    公司:广州居研设计有限公司
    参赛作品: 邃
    空间类型:公寓(150㎡以下)
    个人/公司简介:
    广州居研设计有限公司,由热爱生活的优秀设计师林婷婷女士于2019年创立。公司自成立以来就坚持原创、不断创新,“居怡心之所、研生活之美”,我们专业做设计,更专注于生活,做有态度的设计。一直专注于现代化高端空间和环境设计,致力于将高端的设计理念、完美的后续服务带给每一个客户。 设计只是我们相识的媒介,用多年积累的设计经验,改善生活方式,提高生活品质和意识形态。为未来而设计搭建一套解决项目落地问题的管理系统。
    设计说明 | Design Instruction
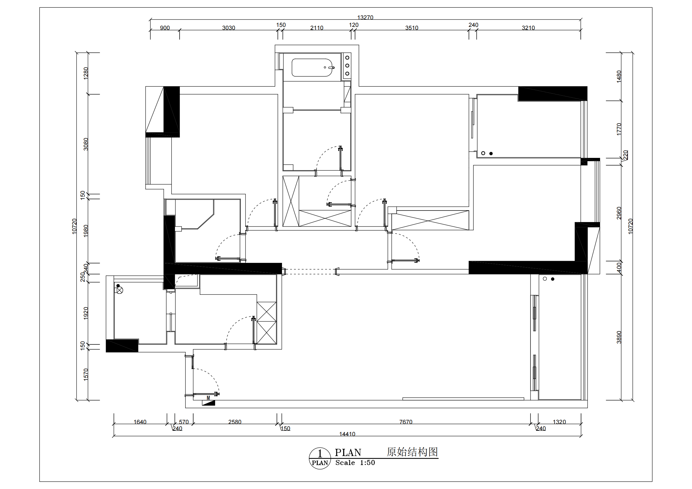
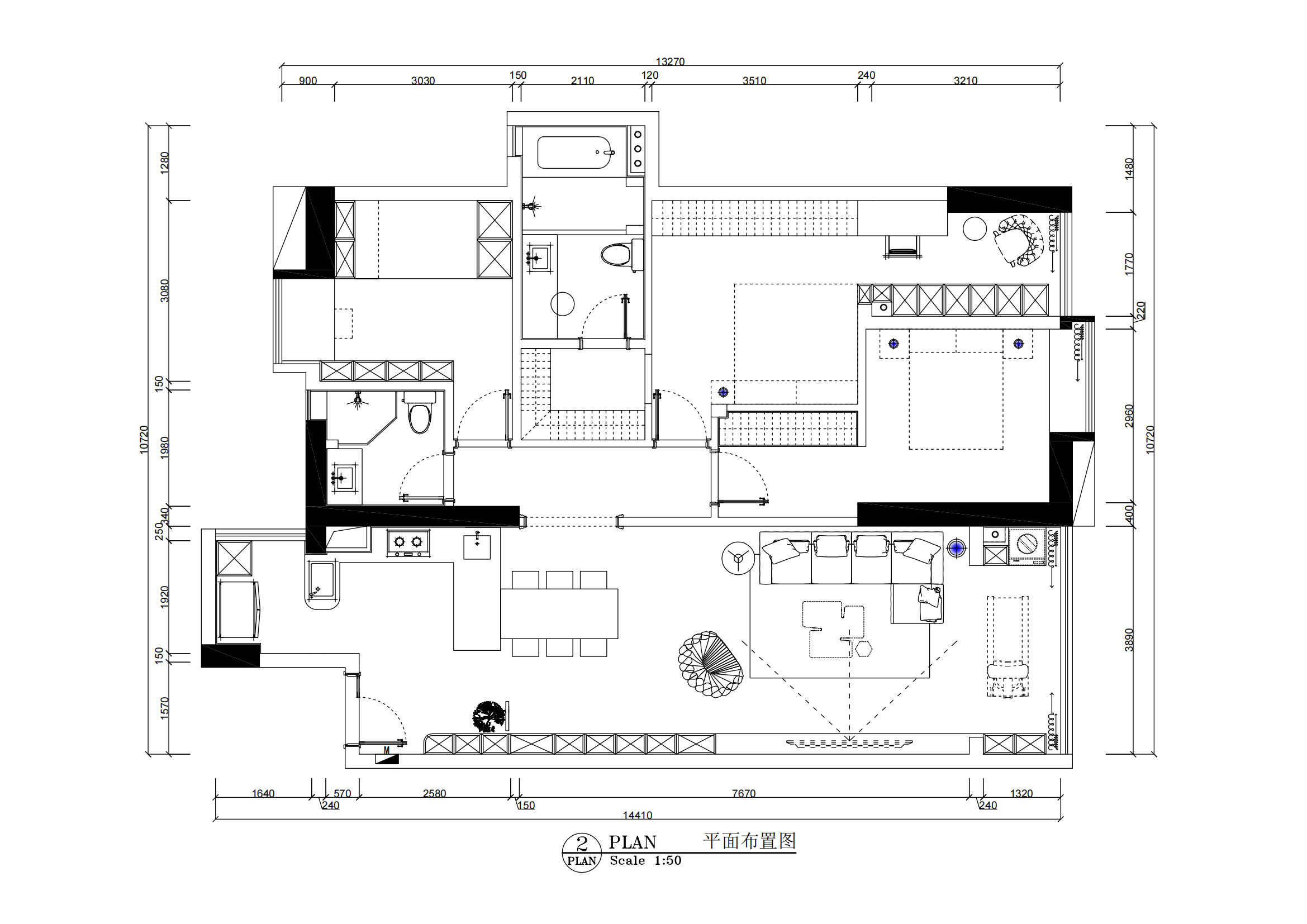
  • 广州中心区旧房局改项目,除两个分别为父母预留与接待客人的房间外,其余空间大变样,从开发商交楼时候的精装样板间到屋主理想的暗黑系一人常住居所。 整体偏向现代工业风格,采用了穿插,块体,暗藏细节灯的手法去呈现。同时用了不同的灯光灯具去支配整个场景,有暗有明,有冷有暖,沉稳不失温度。 开门进入,黑白配色的墙壁与鞋柜,代替原有的成品鞋柜与墙纸。鞋柜延展做“屏风”,虽都是木板打底,但面贴石膏板后做仿金属+微水泥面,形成不同饰面的交织相融。 年轻人莫名对开放式厨房情有独钟,黑色漆面餐桌倚靠大理石面岛台,干净利落的经典配色。无论是多人聚会还是独自烹饪时,该空间都可以很好的互动和便捷。 玄关柜延伸餐厅,做灰玻面酒柜,内置灯带让酒也参与在整屋的布景中。嵌入式冰箱与烤箱,利用原小储物间凹位摆放。马革皮长椅与靠椅响应空间的不对称感,在空间中融入视觉的艺术。 客厅将阳台封窗纳入室内,无论是天花与地面还是沙发背景墙与电视背景墙,均为黑白对立,构造空间色调的对称美学。 卷轴般的电视背景墙替代传统的投影幕布,就算是不使用投影的日常,也能作为空间中的装饰品。 '卷轴'下方落地窗旁设氛围感香薰机,开启时绚烂的灯光是整个空间的点缀色,阳光猛烈的时候也能起到加湿的功能。 阳台两侧靠墙定制高柜,一边是生活阳台的功能布局,高柜预留嵌入式洗烘机尺寸;另一边是镜面收纳柜,镜面能巧妙的为空间带来通透感与延展性。 主卧L型布局,睡眠区采用地台+无床头设计,用黑色块状的壁灯作为视觉的重点,让整个空间更干净纯粹。L延展出去的部分原是加推拉门的书房区,去掉门后,更多的是作为衣柜使用,缩小办公的功能。里特维尔德的“Z”型椅让本沉寂的空间瞬间有了艺术性。 卫生间干湿分离,功能明确,延续了整屋的暗黑色系搭配。不同的是天花选用木饰面的碳镁板去修饰,因为其防水防火属性,更适合卫浴空间。但是尺寸方面会有限制,所以需提前规划好分割比例及纹理走向。
  • 图片
  • 图片
  • 图片
  • 图片
  • 图片
  • 图片
  • 图片
  • 图片
  • 图片
  • 图片
  • 图片
  • 图片
  • 图片
  • 图片
  • 图片
  • 图片
  • 图片
  • 图片
  • 图片
  • 图片
  • 图片
  • 图片
  • 图片
  • 图片
  • 图片
  • 图片
  • 上一个 下一个
    2024第八届金腾奖 私宅(独居)丨私宅(多人居)丨餐饮丨酒店丨办公丨商业丨公共丨公益丨人物丨NEW100 jintengAWARD(小金_金腾奖组委会) 广州市海珠区琶洲大道68号华新中心21楼
    金腾奖视频号 金腾奖小红书号 监制:刘译遥
    统筹:张俊媚
    运营:赖钰炼 曹凯月 刘芳棋 小金
    新媒体:王贝贝 严洁 张文一
    技术:黄天佑 丁德昌
    最终解释权归金腾奖主办方所有