Regain the natural state
作品详情
  • Details of the work 标题横线
    头像或者logo
    图片 木芯设计 设计引力特约推荐
    城市:广州
    公司:木芯设计
    参赛作品: 返璞归真
    空间类型:公寓(150㎡以下)
    个人/公司简介:
    木芯设计是一家扎根于广州的私宅全案设计事务所,专注于平层、复式别墅、旧房改造、精装房改造的设计服务。 以客户需求为出发点,从设计层面结合人文关怀,贴心的设计思考以提升空间的质量,实现最优的空间使用功能。 从细节处入手,有着自己专属的产品库,收纳最新的工艺及材料,与时俱进地为客户提供创意创新的设计及施工服务。
    设计说明 | Design Instruction
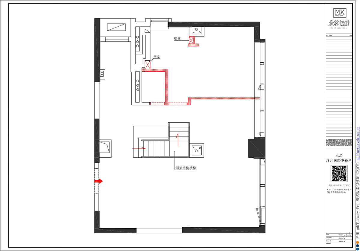
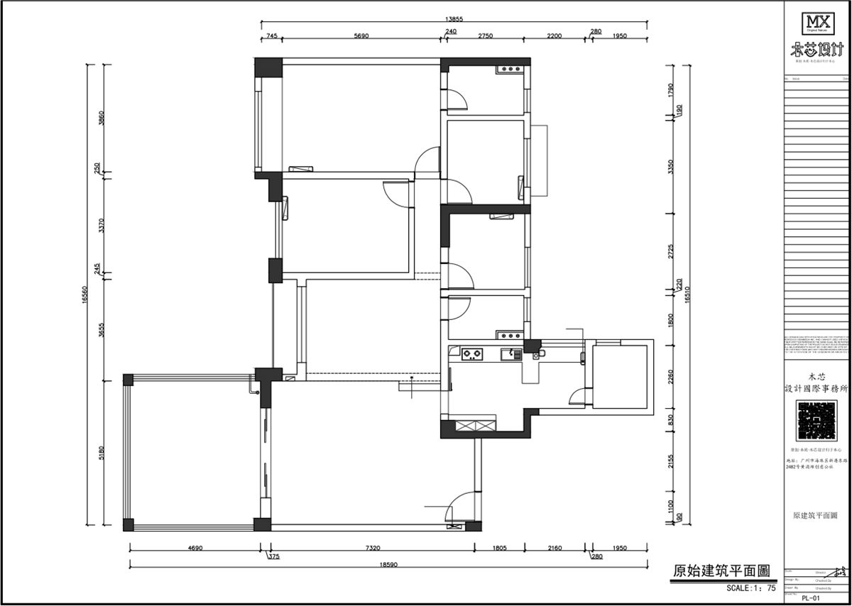
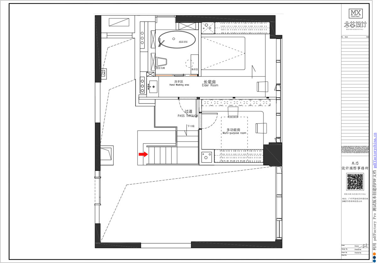
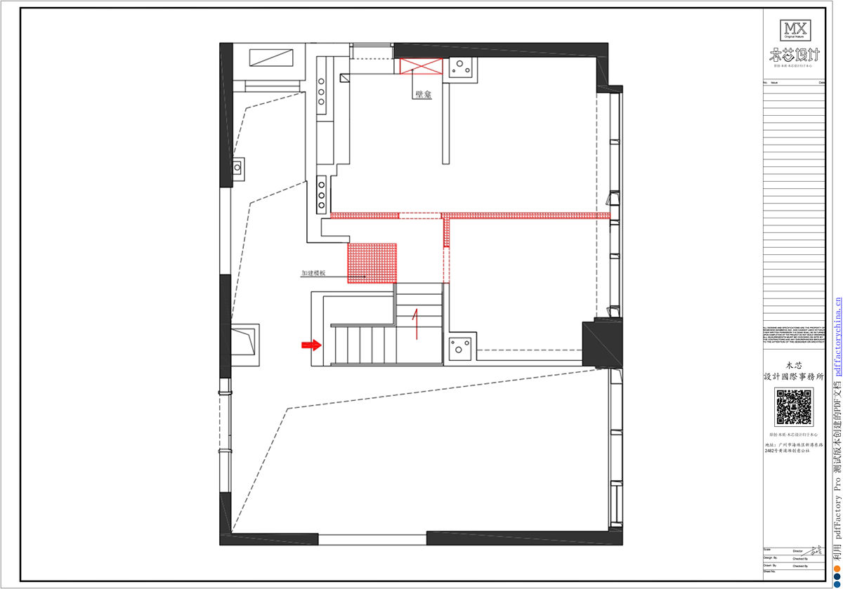
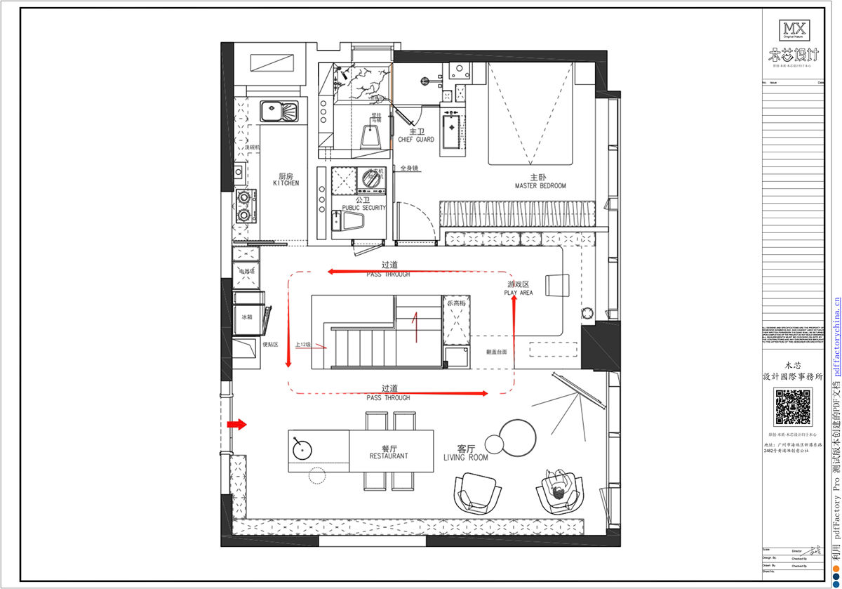
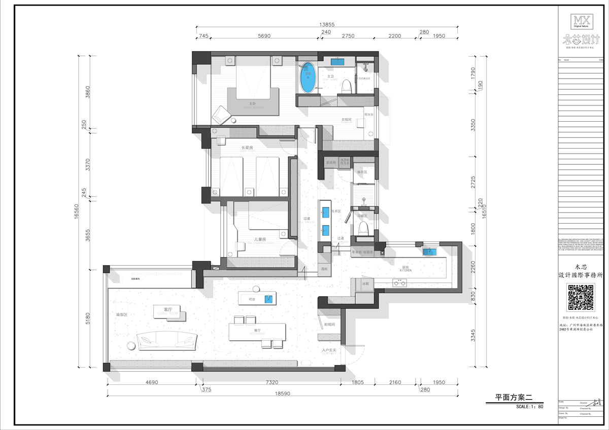
  • 设计理念:简约是这个空间的主旋律,为生活过滤掉繁杂,寻找空间的更多可塑之处,增加更多的功能性。 通过借景手法融汇景观与室内雅韵,思考空间对光的捕捉能力,打造联通的栖居氛围。摒弃庸常布局,穿插艺术格调,将现代极简的奥义镌刻进每个角落。 设计特色:本案项目位于广州南沙区的碧桂园小区,拥有山景视野的跃层旧房改造,房屋面积196平,居住着一对80后年轻夫妻、两位老人和一位小朋友。  根据业主一家的生活习惯和兴趣爱好,空间整体打造简约高级却不失平易近人的生活感。保证空间的统一整洁,阳台纳入客厅内增加室内用地面积,保留为多功能休闲区,联通了客餐厅的区域,整体以舒适实用的设计为准则,打造一个宜人的三代同堂居住空间。  设计师以东方美学邂逅西式手法,引山景自然入室内,又以开放式、多洄游动线简化室内的结构。简洁利落的造型配合跃层式结构,通过洄游、窥探、穿插、留白等手法使得每个空间相互独立又相互关联,在人与人、人与自然和人与空间的交互中,打造出交流、休憩、工作的理想居所。
  • 图片
  • 图片
  • 图片
  • 图片
  • 图片
  • 图片
  • 图片
  • 图片
  • 图片
  • 图片
  • 图片
  • 图片
  • 图片
  • 图片
  • 图片
  • 图片
  • 图片
  • 图片
  • 图片
  • 图片
  • 图片
  • 图片
  • 图片
  • 图片
  • 图片
  • 图片
  • 图片
  • 图片
  • 图片
  • 图片
  • 图片
  • 图片
  • 图片
  • 图片
  • 图片
  • 图片
  • 图片
  • 图片
  • 图片
  • 图片
  • 图片
  • 图片
  • 图片
  • 图片
  • 图片
  • 图片
  • 图片
  • 图片
  • 图片
  • 上一个 下一个
    2024第八届金腾奖 私宅(独居)丨私宅(多人居)丨餐饮丨酒店丨办公丨商业丨公共丨公益丨人物丨NEW100 jintengAWARD(小金_金腾奖组委会) 广州市海珠区琶洲大道68号华新中心21楼
    金腾奖视频号 金腾奖小红书号 监制:刘译遥
    统筹:张俊媚
    运营:赖钰炼 曹凯月 刘芳棋 小金
    新媒体:王贝贝 严洁 张文一
    技术:黄天佑 丁德昌
    最终解释权归金腾奖主办方所有