Searching for one's true heart
作品详情
  • Details of the work 标题横线
    头像或者logo
    图片 朱玉祥 庐州家居特约推荐
    城市:合肥
    公司: 合肥壹研设计
    参赛作品: 溯本
    空间类型:公寓(150㎡以下)
    个人/公司简介:
    我是朱玉祥,90后,2014年毕业至今,一直坚持做设计的初心,并且从事室内设计行业10年有余,2020年创立了属于自己的设计工作室-合肥壹研设计。 一直坚持做有爱有温度的住宅设计,同时我认为设计是去解决业主生活中一些实际问题,每位业主,都对房子有不同的需求与问题,作为设计师应是帮助业主解决空间上的问题与生活中对居住空间的不同需求,并营造一个舒适的、惬意的生活空间、一个属于业主自己的空间。
    设计说明 | Design Instruction
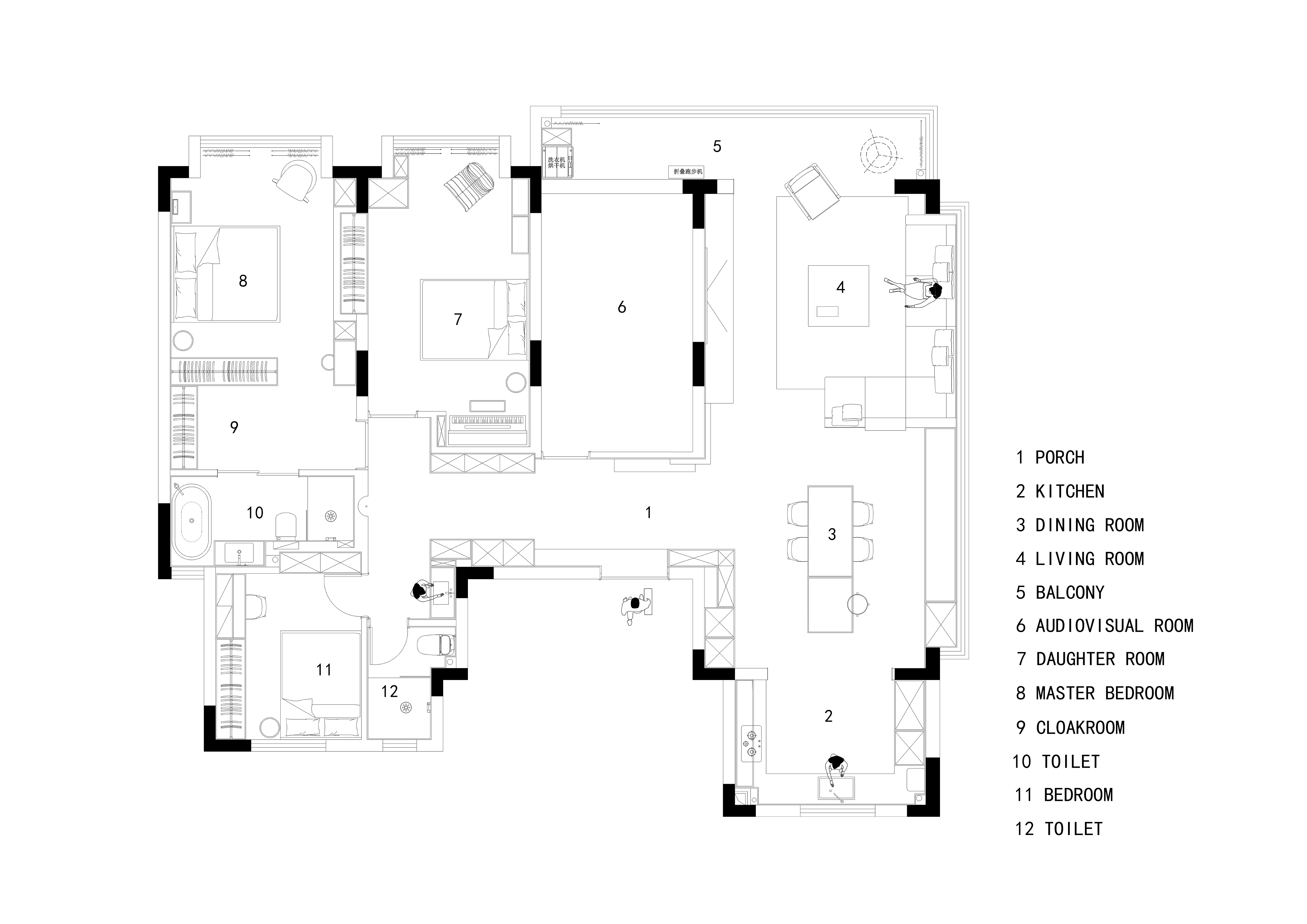
  • 胡桃色木纹与黑色木纹交叠,灰色调的石材悬挑在其间,散发着清冷高级之感,奠定了此间住宅的家居格调。 在灯光的点缀下,玄关区域呈现明暗交叠的立体感,家庭音影室就藏在黑色木纹里的隐形门之后。 单调狭长的过道经拓宽后在两侧设置了充足的储物,过道尽头的墙面巧妙留白,半圆形的墙体间矗立着的天际线灯发光时,打造一种引人探索的神秘感,给予空间独特的艺术氛围。 客厅的软装采用的是康纳利的真皮沙发组合,搭配天然大理石材质的茶几,沉稳中透着慵懒感。BIG SHADOW的落地灯半隐在金属门框后,不经意间创造出更多的层次之美。 8.5m长的朝西飘窗是户型的难点也是特点,室外没有高耸的建筑物,而常有的是蓝天白云和冬雪夏雨,设计师采用胡桃木色的木饰面将飘窗包裹,形成一幅内外之间的画框,可观日落时分的晚霞满天和四季的自然之景。 餐厨区沿用整体的色调和材质,胡桃木色的餐桌面和黑色木纹的桌腿碰撞,与灰色调的石材岛台以穿插的形式结合。黑色木纹的转角餐边柜和玄关相连,达到视觉延伸的效果,难得的是转角的灰色玻璃柜内没有竖侧板,结合上下相连的黑白石材,无一不彰显着通透高级的品质感。 布局上保留了原有的动静分区,按照需求设计了主卧套房+女儿房+多功能房。 主卧整体选用了客厅的材质和基调,黑木纹和浅灰色护墙形成明暗交错的背景,打造一种宁静之感,在黑色轨道内嵌入一个床头的阅读射灯,温和的灯光在夜间洒下,给予居者沉浸式的体验感。 女儿房整体采用暖灰色基调,床尾的墙内嵌入了一组相同色系的衣柜,窗前温暖阳光下,成品书柜和毛毛虫休闲椅组建了惬意的阅读区,和过道墙体的交汇处设计了一个围合空间, 中间摆放钢琴以便练习,侧面是一组手办展示柜,整个空间都是孩子喜爱的物品,温柔的色系,为孩子打造了一片独属于她的私人场域。
  • 图片
  • 图片
  • 图片
  • 图片
  • 图片
  • 图片
  • 图片
  • 图片
  • 图片
  • 图片
  • 图片
  • 图片
  • 图片
  • 图片
  • 图片
  • 图片
  • 图片
  • 图片
  • 图片
  • 图片
  • 图片
  • 图片
  • 上一个 下一个
    2024第八届金腾奖 私宅(独居)丨私宅(多人居)丨餐饮丨酒店丨办公丨商业丨公共丨公益丨人物丨NEW100 jintengAWARD(小金_金腾奖组委会) 广州市海珠区琶洲大道68号华新中心21楼
    金腾奖视频号 金腾奖小红书号 监制:刘译遥
    统筹:张俊媚
    运营:赖钰炼 曹凯月 刘芳棋 小金
    新媒体:王贝贝 严洁 张文一
    技术:黄天佑 丁德昌
    最终解释权归金腾奖主办方所有