Meilin Lake Sui
作品详情
  • Details of the work 标题横线
    头像或者logo
    图片 易永春 广州卡撒传媒特约推荐
    城市:广州
    公司: 广州市灏思设计工程有限公司
    参赛作品: 美林湖眫
    空间类型:公寓(150㎡以下)
    个人/公司简介:
    获得荣誉: 2022 40 UNDER 40中国(广州)设计杰出青年 2022 设计千人计划-入选设计师 2021 广州赛区祝融奖 2021 G+AWARDS 全球设计精英大赛-中国(广州)TOP10 2020 红棉中国设计奖-室内设计奖 设计理念: 用无限的思维创造有限的空间
    设计说明 | Design Instruction
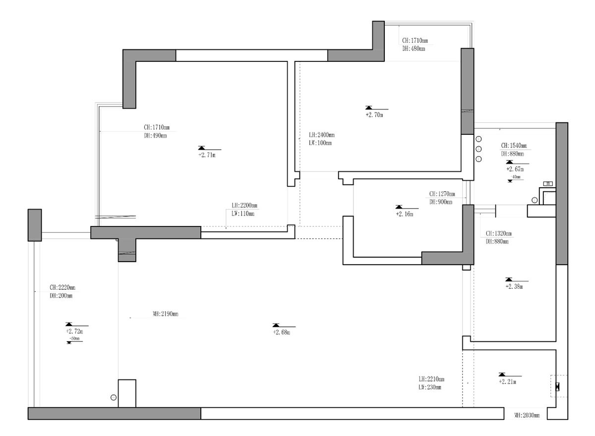
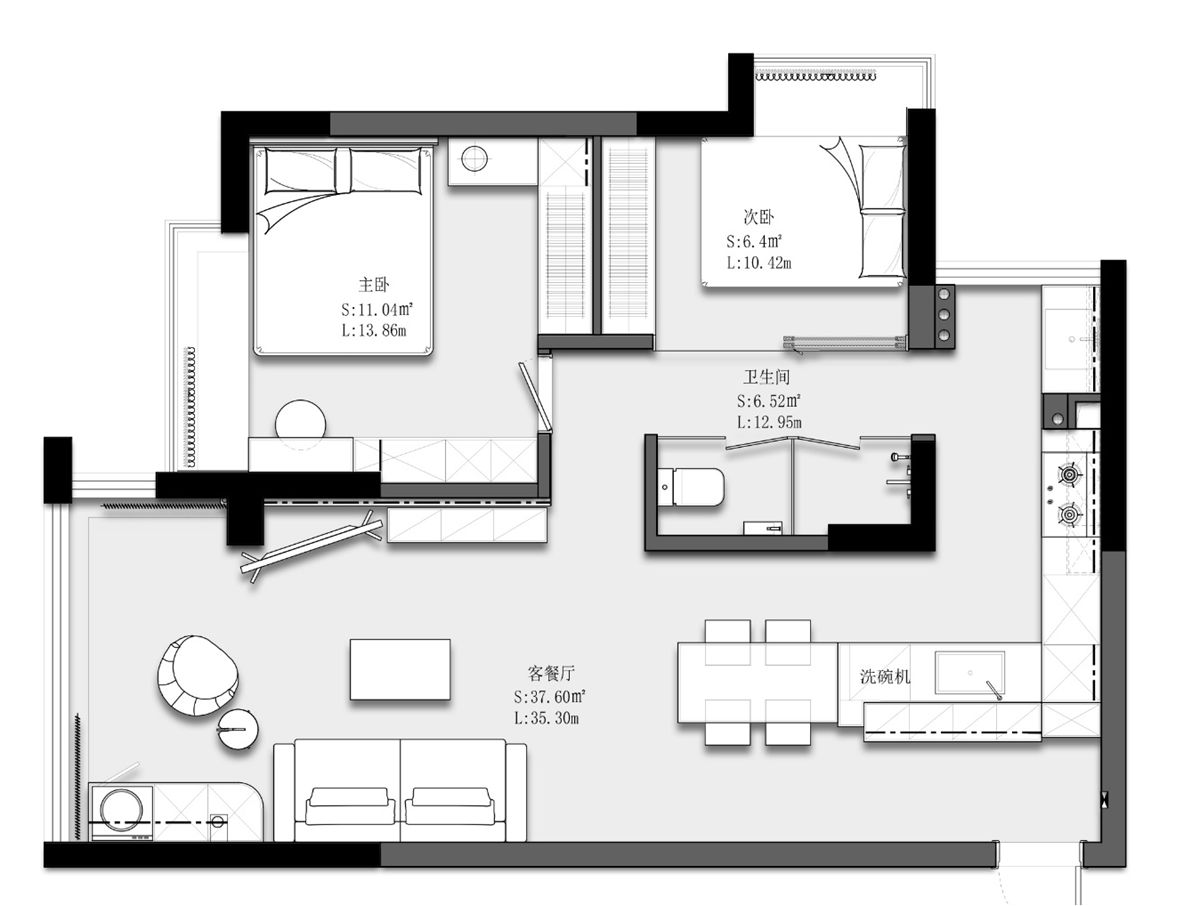
  • 本项目位于广州市天河区美林湖畔花园。业主是一对年轻夫妻,还有两只可爱的小猫咪。 他们对生活品质有着极高的追求,希望打造一个精致舒适是的精致居住环境。 设计师仔细和业主沟通了想法和需求,塑造这套设计理念围绕着温暖自然元素展开,浅米色是主要色调,搭配温暖木质原素,使整个室内充满了自然细致的内饰。让业主能够在空间中摆脱平日工作疲惫回归到生活本真。 客厅是这套住宅核心。米白色南瓜造型沙发搭配潘多拉岩板茶几,创造了一个自然舒适放松空间。 大面积落地窗充分利用了自然光线,让整个空间更加通透明亮。 原木色的护墙板设计,木色的天然质感增添了家的温暖和舒适感。让我们在温煦包容的家中涤荡白日的疲惫和烦恼。 对小户型而言封阳台是个很好的选择,增加了实用率和空间感。右侧顶梁是个承重梁,无法砸掉,便做了一门到顶的储物柜,可以放扫地机器人和一些杂物。同时也做了嵌入式洗烘套装。 餐厨采用了开放式设计,嵌入式的电器让空间更加宽敞明亮,潘多拉岩板台面,让空间效果直线 拉升。在餐边柜设计了轨道插座,颜值高级有质感。解决了外插电线杂乱问题。 次卧地面做了抬高处理,随处席地而坐,当阳光透过窗户洒进室内,整个空间仿佛被点亮,充满了生机与活力。这样的设计不仅彰显了设计师对光影的敏锐的捕捉,更体现了对居住者内心需求的深刻洞察。拉上趟门,自有一方小天地。 卫生间设计了分离干湿区,设色的玻璃门既能兼具美观及私密性。
  • 图片
  • 图片
  • 图片
  • 图片
  • 图片
  • 图片
  • 图片
  • 图片
  • 图片
  • 图片
  • 图片
  • 图片
  • 图片
  • 图片
  • 图片
  • 图片
  • 图片
  • 图片
  • 上一个 下一个
    2024第八届金腾奖 私宅(独居)丨私宅(多人居)丨餐饮丨酒店丨办公丨商业丨公共丨公益丨人物丨NEW100 jintengAWARD(小金_金腾奖组委会) 广州市海珠区琶洲大道68号华新中心21楼
    金腾奖视频号 金腾奖小红书号 监制:刘译遥
    统筹:张俊媚
    运营:赖钰炼 曹凯月 刘芳棋 小金
    新媒体:王贝贝 严洁 张文一
    技术:黄天佑 丁德昌
    最终解释权归金腾奖主办方所有