joyous
作品详情
  • Details of the work 标题横线
    头像或者logo
    图片 贺丽丽 AF设计聚焦特约推荐
    城市:宁波
    公司: 宁波寓尚设计工作室
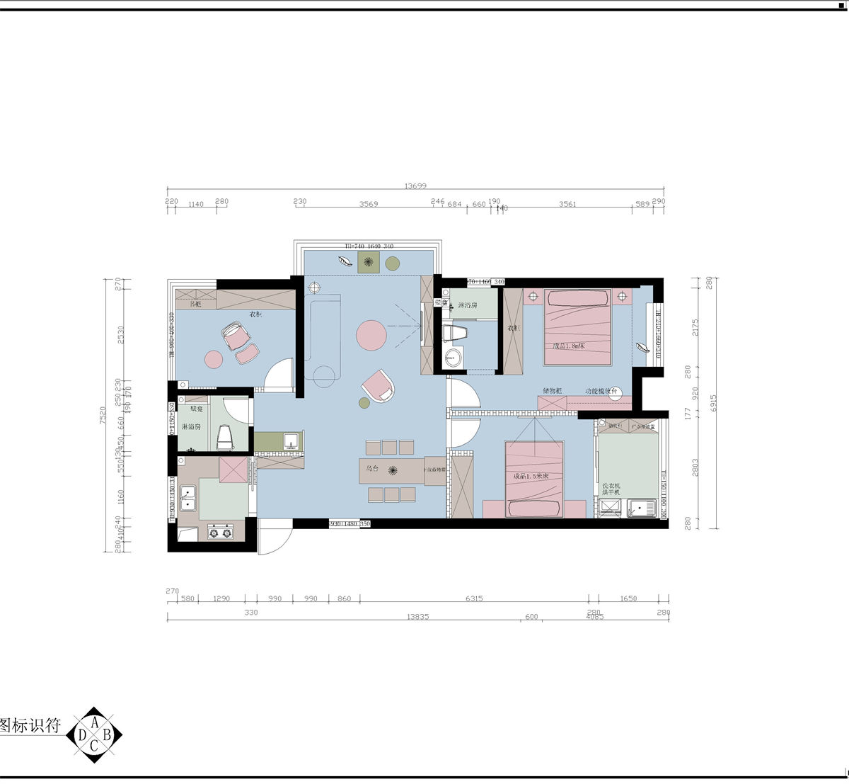
    参赛作品: 清欢
    空间类型:公寓(150㎡以下)
    个人/公司简介:
    寓尚设计(U-SUNdesign)设计总监 注册高级室内设计师--ICDA国际装饰设计协会认证 ICDA国际建筑装饰室内设计协会会员 从事室内设计工作10多年,一直从事并专注于室内设计的创新与研究。 荣获最新奖项: 2018年十三届装饰博览会华鼎奖别墅空间类金奖(北京参展) 2018年中国浙江青年室内设计大赛优秀奖 2019年Hers Design Award“她”设计奖年度优秀作品奖(广州设计周参展) 2019年M+中国高端室内设计师大赛pt100年度影响力设计师提名奖 2019年-2020年40UND40中国(宁波)杰出设计师 2019年金住奖中国(宁波)十佳居住空间类设计师 2019年IDEA50年度设计人物 2019第七届Hi-Design室内设计大赛全国杰出奖赴无锡参加昱见设计总监沙龙评审设计嘉宾 2019年获得宁波十大优秀设计师并赴青岛游学 2019年上海设计周城际榜金梁中国设计奖(省榜) 2019年金堂奖年度杰出作品奖(别墅空间类) 2020年Hi-Design宁波精英设计师俱乐部荣誉会员 2021年G+AWARDS全球设计精英大赛—中国城市TOP10 2021-2022年DESIGN FOCUS国际空间设计年度别墅豪宅空间方案类设计优秀奖
    设计说明 | Design Instruction
  • 晨有清逸,幕有余闲。 心有清欢,岁月安暖。 春风化雨育桃李,润物无声洒春晖。本案的业主是一位年轻的教师通过沟通表达意向和心仪元素后那就让我们为她筑梦! 客餐厅空间并不大,客厅运用了电视背景和储物柜相结合的设计,让家里尽可能的多释放出储物空间,在色彩的运用上更加柔和克制,以原木色为基底加入白色的柜门、黑色的柜体、同时加入米色、浅灰色等中性色彩。在软装配饰上加入米白色的沙发,配上淡雅的绿色、黄色等元素的油画点缀,餐厅区选择了烟熏黑的木质餐桌配上木质藤编靠背的餐椅,给人朴质简约清雅质感。客卫干湿分区用原木色格栅为隔断与卫生的门呼应一体,从餐厅的视线延续过去成为一个小景,当清晨的第一缕眼光洒入客厅,随手采摘一支鲜花插入瓶,择雅静之处泡茶一壶细酌慢饮,神思遐想,妙也! 主卧室则打造安静柔和的舒适睡眠空间,温柔的色调,原木色的大衣柜加侧面的黑框金属柜玻璃门相结合设计,不失时尚,配上深咖色的真皮床背的床,并加入柔和的灯光又使整个空间富有层次感,布局的简洁、功能的完善、色彩的协调是给于整个卧室空间的气质。 客房业主给于了设计师一个没有限定的环境要求,设计师用了黑檀木纹饰面和辛巴皮纹红饰面两色结合,配上浅咖色的布艺床和深色的的窗帘,形成较为强烈的色彩对比,希望是另一处不同风格的独立的的空间,略为夸张的配色释放出另一种张力。 书房则运用了木纹色和浅色结合的色调为主,赋予空间安静惬意的工作学习空间,柔和简洁的色调,喜欢假期里这样的闲暇时光做个瑜伽,或在临窗下微风拂面,不骄不躁翻阅书籍,斜阳夕照,不紧不慢,如此恬静,不慌不忙的正好!感谢业主对我们的足够信任打造这个惬意的优雅的世界!
  • 图片
  • 图片
  • 图片
  • 图片
  • 图片
  • 图片
  • 图片
  • 图片
  • 图片
  • 图片
  • 图片
  • 图片
  • 图片
  • 图片
  • 图片
  • 图片
  • 图片
  • 上一个 下一个
    2024第八届金腾奖 私宅(独居)丨私宅(多人居)丨餐饮丨酒店丨办公丨商业丨公共丨公益丨人物丨NEW100 jintengAWARD(小金_金腾奖组委会) 广州市海珠区琶洲大道68号华新中心21楼
    金腾奖视频号 金腾奖小红书号 监制:刘译遥
    统筹:张俊媚
    运营:赖钰炼 曹凯月 刘芳棋 小金
    新媒体:王贝贝 严洁 张文一
    技术:黄天佑 丁德昌
    最终解释权归金腾奖主办方所有