xiezhai
作品详情
  • Details of the work 标题横线
    头像或者logo
    图片 李翔 EDG贰道杠传媒特约推荐
    城市:苏州
    公司: 春羽设计事务所
    参赛作品: 谢宅
    空间类型:别墅
    个人/公司简介:
    李翔 David Lee——春羽设计事务所创始人、总监 中国优秀青年设计师,拥有近20年的专业室内设计经验 ,其中有6年任职于上海设计院设计师 。曾前往英国、新加坡等多国进修学习,以创新大胆的国际前沿设计视野,带来了大量的获奖作品。善于大尺度规划设计,同时熟谙如何打造原创、新颖且符合不同业主的梦想空间。其代表作品作品“铜雀台别墅” 获得环球设计大奖,并被发布在极具影响力的环球设计公众号上。在不断地设计和作品的打磨中,形成了自己的设计风格——“现代与禅意”,坚持每一立方英寸的空间皆是奇迹的设计理念。善于倾听和观察,挖掘客户深层次的需求,对细节严谨把控,确保设计效果高效还原。 近年部分奖项 Awards 法国双面神国际设计大奖 TOP100最具影响力创新设计师 【环球设计3025期】最美雅奢空间设计奖红棉设计奖 2022年度优秀雅奢空间设计奖 《苏州府别墅豪宅空间》获2020-2021国际环艺创新设计作品大赛金奖 2020-2021年度金梁中国设计奖 CBDA2019年度精英设计师 2018年第六届Hi-Design室内设计大赛优秀奖 2018全国优秀青年设计师 2017红棉中国设计奖 苏州首届室内设计大赛最具创意设计奖
    设计说明 | Design Instruction
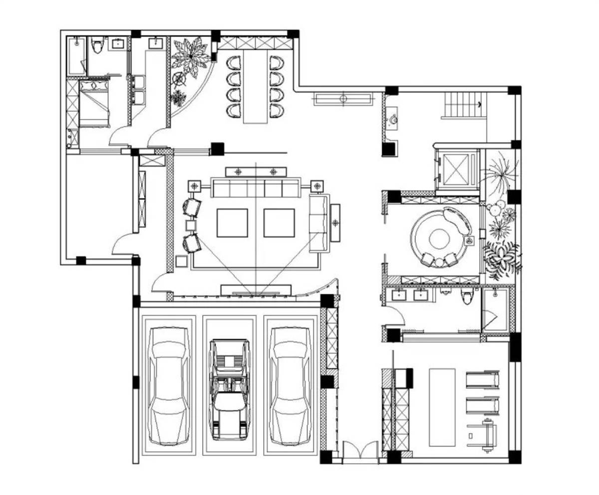
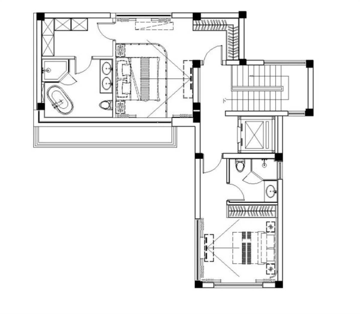
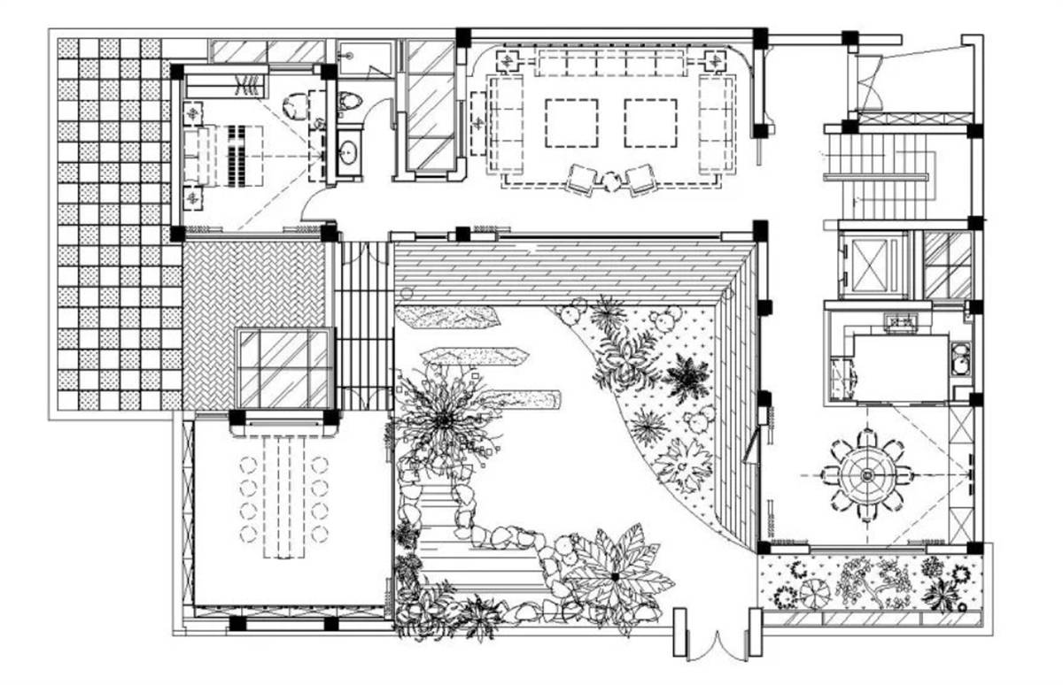
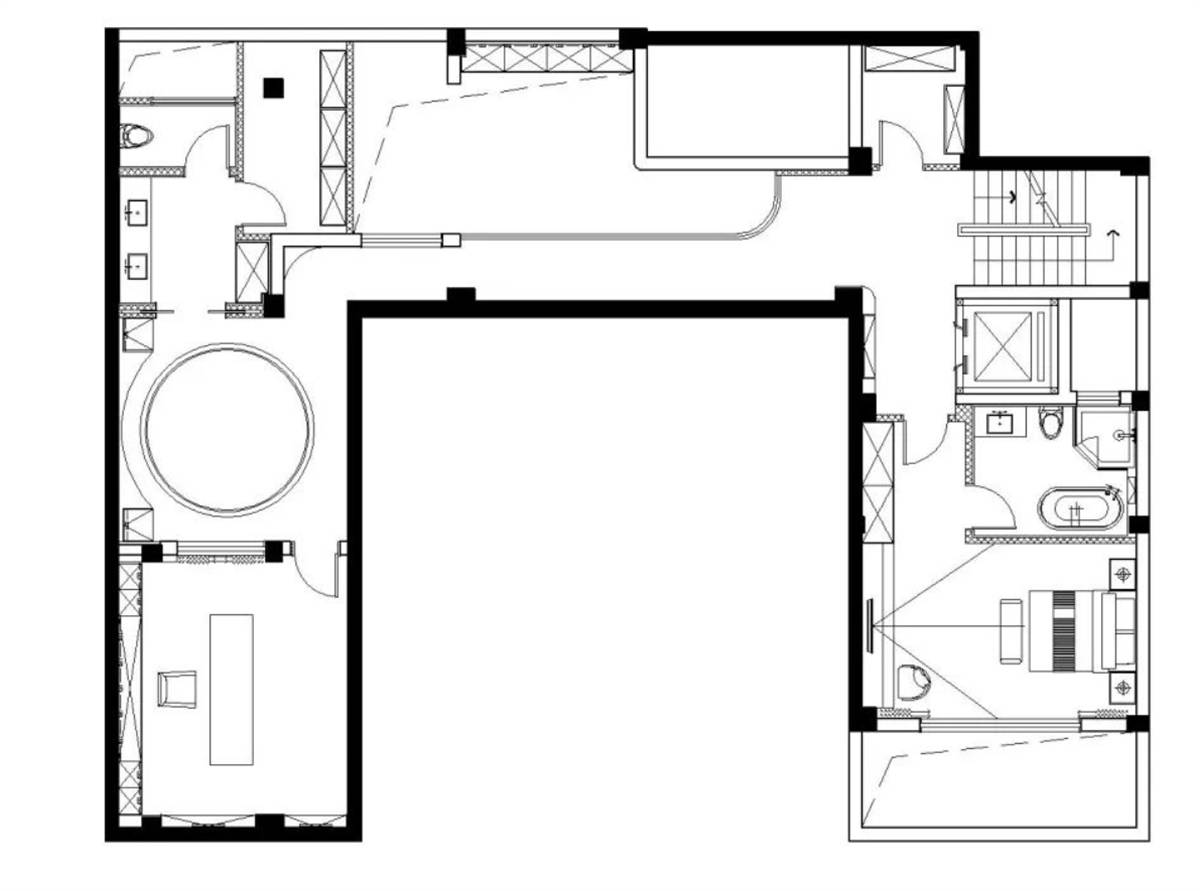
  • 苏州耦园之畔,相门城墙之下,耦前就坐落在这里。大隐于市,正是耦前的真实写照,传统与当代的交融是这片区域的底色,也是这座宅邸的设计出发点。 外立面及庭院:建筑从外立面到庭院都经过改造设计,将崇尚自然与风雅的东方美学,和追求简约与舒适的当代生活完美融合,建立了一个实用与诗意共存的栖居空间,自然、建筑与人在这里和谐共生。 简洁的线条将建筑的外形塑造得更加利落,彰显秩序带来的平静;落地窗将建筑打开,空间变得更通透舒适。庭院方正开阔,石板路蜿蜒其中,连通空间的同时分割出不同区域。假山嶙峋,植物经过精心搭配,高度参差有序,丰富着庭院的层次。 -2楼玄关:青石板路曲径通幽,半月门位于小径尽头,东方独有的文化语境含蓄而充满诗意,预示着人们即将步入一方幽静清雅之地。走廊两侧被充分利用,收纳柜与挖孔设计形成对比,实用与装饰并存,虚实结合,达成微妙的和谐。 -2楼公区:从天井引来自然光,与绿植一起造一方自然之境,为空间带来生机和禅意;弧线与灯光吸引着人的目光,在视觉上延伸空间,光线仿佛从外界而来,引发对空间的无限遐想。整个空间都以细腻而富有留白的设计语言,建立起室内外的联系,让空间与环境和谐共生。 1楼客厅:超大的落地窗让客厅面向外界打开,室内外之间的边界被消融,庭院的自然画卷直观地呈现在面前,诗意天成。木质、石材、灯光的交叠形成丰富的层次,同时不失简约自然的韵味;暖调的光线晕染出空间的温度,塑造舒适的感受。 1楼茶室:竹帘低垂,为空间创造灵动通透之感,木质和藤编交融出舒适自然的松弛感。边柜设计以封闭收纳的形式呈现,梳理出空间统一的视觉感受。
  • 图片
  • 图片
  • 图片
  • 图片
  • 图片
  • 图片
  • 图片
  • 图片
  • 图片
  • 图片
  • 图片
  • 图片
  • 图片
  • 图片
  • 图片
  • 图片
  • 图片
  • 图片
  • 图片
  • 图片
  • 图片
  • 图片
  • 图片
  • 图片
  • 图片
  • 图片
  • 图片
  • 图片
  • 图片
  • 图片
  • 图片
  • 图片
  • 图片
  • 图片
  • 图片
  • 图片
  • 图片
  • 图片
  • 图片
  • 上一个 下一个
    2024第八届金腾奖 私宅(独居)丨私宅(多人居)丨餐饮丨酒店丨办公丨商业丨公共丨公益丨人物丨NEW100 jintengAWARD(小金_金腾奖组委会) 广州市海珠区琶洲大道68号华新中心21楼
    金腾奖视频号 金腾奖小红书号 监制:刘译遥
    统筹:张俊媚
    运营:赖钰炼 曹凯月 刘芳棋 小金
    新媒体:王贝贝 严洁 张文一
    技术:黄天佑 丁德昌
    最终解释权归金腾奖主办方所有