Nesting in the Realm of Stacked Villas
作品详情
  • Details of the work 标题横线
    头像或者logo
    图片 俞晓 DF设计聚焦特约推荐
    城市:长沙
    公司: 几何构建装设设计工程有限公司
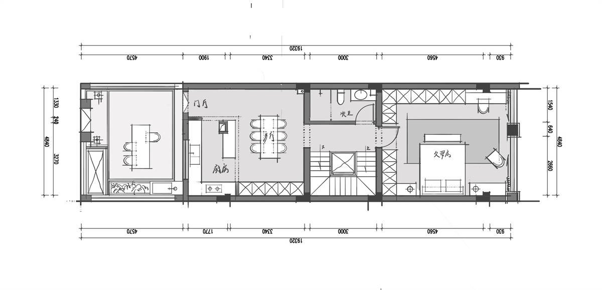
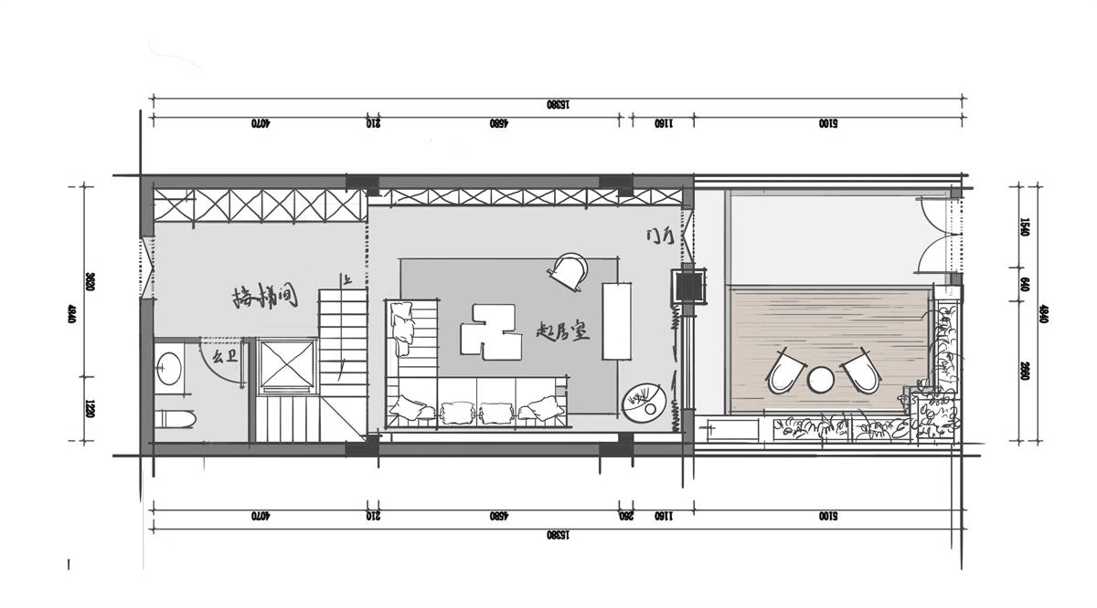
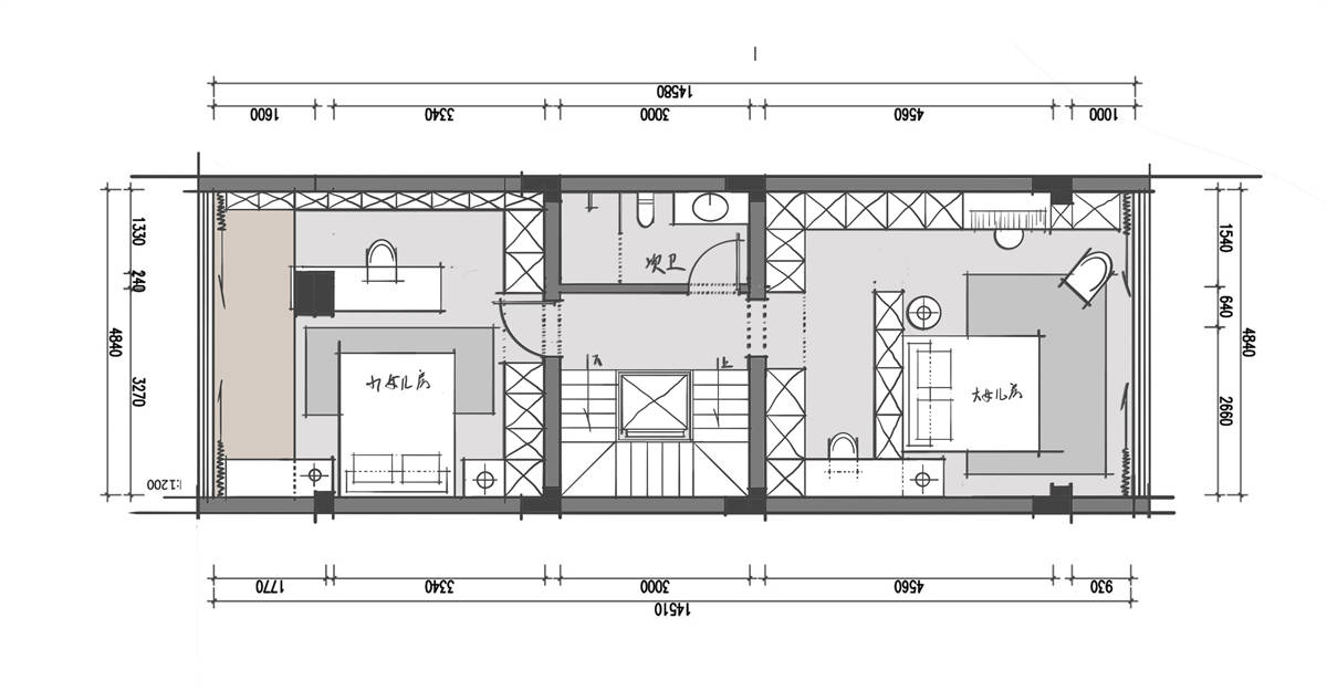
    参赛作品: 栖心之境叠墅
    空间类型:别墅
    个人/公司简介:
    几何构建是一家独立设计工作室,由国内室内设计师丁时勇、俞晓于2015年创办并立足中国湖南长沙市,从事室内装饰设计,在室内空间设计,软装陈设艺术设计等领域,均有成熟的项目经验和案例作品。根据设计的风格及要求收费,对于不同的客户与业主的具体情况,第一时间做出最好的调试和安排,为每一位客户提供最专业的设计服务及投资回报。 我们工作室由90后、95后专业又年轻的主案设计师、软装设计师、等等组成。承接的每一个项目都精心对待,为客户提供完整的设计服务,力求尽善尽美。同时多方面的考虑客户经济成本、视觉功能,全力创造生动的、人性化的、具有独特效果的室内环境空间,坚持高品质的室内装饰设计,致力于以研究室内设计的原创和独立为发展方向,来实现更人性化的利用空间。
    设计说明 | Design Instruction
  • 本案业主是幸福的一家,从别墅换到别墅,对于生活品质自然是有着高要求高标准,因此也非常注重装修细节的体验,并希望整体空间能够呈现通透大气质感,简于形,奢于心。 设计师在设计风格上选择了现代极简,以木色与暖灰色为主基调,简约大气且高级耐看,格局分化层次分明,富有艺术气息的工艺品、天然肌理的家具,在每一个细节中,见证细致的点缀所赋予空间的品质。
  • 图片
  • 图片
  • 图片
  • 图片
  • 图片
  • 图片
  • 图片
  • 图片
  • 图片
  • 图片
  • 图片
  • 图片
  • 图片
  • 图片
  • 上一个 下一个
    2024第八届金腾奖 私宅(独居)丨私宅(多人居)丨餐饮丨酒店丨办公丨商业丨公共丨公益丨人物丨NEW100 jintengAWARD(小金_金腾奖组委会) 广州市海珠区琶洲大道68号华新中心21楼
    金腾奖视频号 金腾奖小红书号 监制:刘译遥
    统筹:张俊媚
    运营:赖钰炼 曹凯月 刘芳棋 小金
    新媒体:王贝贝 严洁 张文一
    技术:黄天佑 丁德昌
    最终解释权归金腾奖主办方所有