The Rhythm of Piano
作品详情
  • Details of the work 标题横线
    头像或者logo
    图片 阮洋 设计引力特约推荐
    城市:深圳
    公司: 山与空间设计事务所
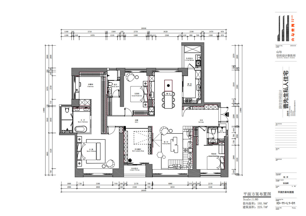
    参赛作品: 钢琴的韵律
    空间类型:公寓(150㎡以下)
    个人/公司简介:
    中共党员 上海国际设计周艺术指导 上海国际设计周品牌推荐官 上海国际设计周摩登家族注册设计师 山与空间设计事务所创始人、设计总监 中国室内装饰协会(CIDA)会员、注册中级室内设计师 中国建筑装饰协会(CBDA)会员、注册高级室内建筑师 设计理念:与其让家改变你,不如让它更懂你 2015年 荣获“(CIDA)中国室内行业2015年度最具潜力设计师”荣誉称号 2016年 荣获“(CIDA)中国室内设计师协会优秀设计机构负责人”荣誉称号 2018年 荣获“(CBDA&CIDF)2017-2018年度中国室内设计百强新锐设计师”荣誉称号 2020年 荣获“40 UNDER 40 2020-2021中国(深圳)设计杰出青年”荣誉称号 2021年 荣获“中国设计星全国500强”荣誉称号 荣获“30 UNDER 30 中国设计年度新秀(全国榜)30强”荣誉称号 荣获“30 UNDER 30 中国设计年度新秀(华南榜)50强”荣誉称号 荣获“40 UNDER 40 2021-2022中国(深圳)设计杰出青年”荣誉称号 2022年 荣获“2022家装中国设计百强人物”荣誉称号 荣获“中国新地产设计大会·2022年度优秀别墅设计师”提名奖 2023年 荣获CIFF设交圈「设计千人计划」入选设计师 荣获2023金堂奖“中国大宅设计城市影响力人物”荣誉称号 荣获筑巢·中国美好人居70年展“美好人居创造者”荣誉称号 荣获2023科勒精选·住宅设计风格榜“年度敢创设计人物提名奖” 荣获2023中国潮流设计排行榜“年度家居生活创新设计师”荣誉称号 2024年 荣获“中国十大当红豪宅设计师”荣誉称号 荣获上海国际设计周“新锐设计奖”2023-2024城际榜
    设计说明 | Design Instruction
  • 岁月缱绻,时光温润,有爱的家, 总是能在碌碌红尘中给人带来精神的滋养。 本期案例是一户的年轻小家庭,夫妻两人与一双可爱的儿女。 对于家, 业主希望可以拥有一个多元化的包容空间,和舒适有温度的家居氛围感;同时希望儿童房要有童趣,同时为孩子的安全考虑,要求卧室以木质软一些木地板。 鉴于此我们的设计师以『温馨流年·浪漫之家』为设计主题,为业主营造一个高级又不失实用,柔和且富有质感的艺术空间,能够让一家四口拥有更多形式的生活互动。 项目位于深圳市,面积230㎡,由于是超高层建筑,面对承重柱结构较多较大,空间可变性较低,在需要满足三房两厅三卫的要求的情况下,我在空间的设计上做了大胆地推敲,利用入户玄关的隔断,营造空间的深邃感,联通客餐厅区域,扩展公区视觉上的延伸感,呈现出空间开阔通透的效果,又保持私密区域的独立属性。 正如林语堂先生所言:“生活的理想,就是为了理想的生活。” 业主夫妻十分追求生活的品质,为此,我们的设计师以流动的开合空间为主线,利用墙面木饰面与岩板的碰撞,材料之间的独特肌理,同时采用线性灯的指向性营造浪漫的灯光氛围,强化视觉层次,希望在喧嚣浮躁的都市生活中,能够为业主构筑一处诗意雅致的居所。 有人说:“在繁杂喧嚣的城市中,家的存在犹如乐谱中的休止符,以精神的留白积淀着匆匆时光”。 世事纷繁,唯有家是灵魂的港湾。我在家的丰富感与生活的尺度感之间考量,让客厅与餐厅、厨房三合一,打造一个轻奢互动的居住场景,把对幸福的憧憬转化成真实的愉悦感,呈现于日常生活之中。 餐厅空间的细节构筑,反映了业主夫妻对于生活品质的追求,一家四口围绕餐桌,吃饭、闲聊,闲谈生活工作琐事,分享校园的趣事,让家人之间的关系更为亲密,而厨房升腾起的袅袅炊烟,更藏着俗世间的欢喜。 主卧的空间是宁静淡雅的,浅灰色磨砂皮床在浅灰色皮纹硬包和灰色镜子的映衬下,色调深浅错落有序,不同材质的运用与生活方式的结合,通过视觉和触觉的舒适来提升空间高品质的“暖”意,使得疲惫的身心得到沉浸式地放松。 主卫以黑灰为主色调,台盆、浴缸、干湿分离的淋浴区,设计感满满的空间也极具功能性,让业主能够获得很棒的舒适体验。 家对每一个人都有特殊的含义, 每一个吉羽片光的瞬间,都藏于寂静无声的空间之中,随光流转,溯影婆娑。四口之家的欢乐,一种高品质的现代生活方式,正在这个包容力极强的居所中徐徐上演。 对于设计师而言,能够为业主量身定制属于他们独特的港湾,便是设计的意义所在。
  • 图片
  • 图片
  • 图片
  • 图片
  • 图片
  • 图片
  • 图片
  • 图片
  • 图片
  • 图片
  • 图片
  • 图片
  • 图片
  • 图片
  • 图片
  • 图片
  • 图片
  • 图片
  • 图片
  • 图片
  • 图片
  • 图片
  • 上一个 下一个
    2024第八届金腾奖 私宅(独居)丨私宅(多人居)丨餐饮丨酒店丨办公丨商业丨公共丨公益丨人物丨NEW100 jintengAWARD(小金_金腾奖组委会) 广州市海珠区琶洲大道68号华新中心21楼
    金腾奖视频号 金腾奖小红书号 监制:刘译遥
    统筹:张俊媚
    运营:赖钰炼 曹凯月 刘芳棋 小金
    新媒体:王贝贝 严洁 张文一
    技术:黄天佑 丁德昌
    最终解释权归金腾奖主办方所有