South
作品详情
  • Details of the work 标题横线
    头像或者logo
    图片 木桃盒子设计 设计引力特约推荐
    城市:南京
    公司:木桃盒子设计
    参赛作品: 南國
    空间类型:公寓(150㎡以下)
    个人/公司简介:
    「木桃盒子设计」成立于2012年,是一家以精品家装为主、工装为辅的设计公司,设计团队拥有丰富的设计经验及设计知识,用专业和真诚去对待每一位客户,力争每一个案例都成为实景落地的作品。曾有多套成功案例,并在国内获得各类奖项殊荣。
    设计说明 | Design Instruction
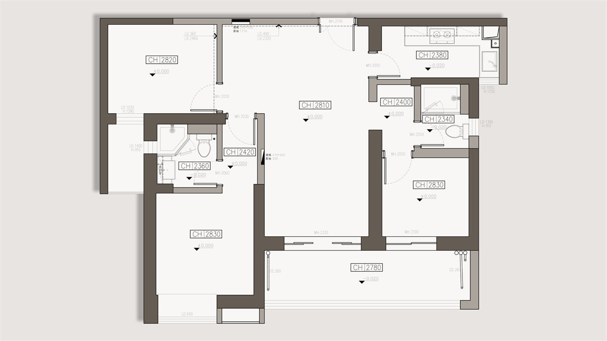
  • 这是一套面积108m²的住宅,整个设计在色彩、材质、纹理和空间布局上都体现了设计师对艺术感的追求。南洋绿、红丝绒、木质藤编、拼花马赛克等元素的叠加,不仅营造出一种复古而又不失现代感的氛围,还让人感受到时光雕琢的艺术魅力。 踏入门槛,深色木质家具与黑色拱门交织成一幅低调奢华的画卷,复古风情扑面而来。拱形与弧形元素的巧妙运用,如同流动的音符,打破了空间的常规界限,赋予其灵动的生命力。南洋风情的端景,更是让人恍若穿越时空,每一次归家都是一场美妙的旅行。 南洋绿墙面如同自然界的清新呼吸,与红丝绒沙发的经典碰撞,复古与现代在客厅空间完美交融。沉稳的黑色家具点缀其间,平衡了色彩的跳跃,营造出和谐而富有层次的视觉享受。红丝绒沙发的质感与色彩都提升了空间的奢华感,与南洋绿的清新相得益彰。阳台地面拼花马赛克作为点睛之笔,以其独特的图案为客厅增添一抹精致与复古风情。 餐厨区域的设计巧妙而实用,流畅动线连接起烹饪与用餐的愉悦时光。吧台区域不仅是功能的延伸,更是情感交流的温馨角落。 玄关端景背后的洗手台,美观与实用并存。顶部设计留白,让空间更显通透与轻盈。洗漱区墙面延续拼花马赛克元素,保持整体风格的统一与协调。金色边框的镜子以其优雅的曲线为洗漱区添上一抹奢华光彩,每一次驻足都是一次美的享受。 主卧室深色木制床头板以其自然的质感和沉稳的色调,营造出宁静舒适的睡眠环境。几何图案壁纸的点缀,为卧室带来一丝艺术气息,打破单调,增添趣味。
  • 图片
  • 图片
  • 图片
  • 图片
  • 图片
  • 图片
  • 图片
  • 图片
  • 图片
  • 图片
  • 图片
  • 图片
  • 图片
  • 图片
  • 图片
  • 图片
  • 图片
  • 图片
  • 图片
  • 图片
  • 图片
  • 图片
  • 图片
  • 图片
  • 图片
  • 图片
  • 图片
  • 图片
  • 图片
  • 图片
  • 图片
  • 图片
  • 图片
  • 图片
  • 图片
  • 图片
  • 上一个 下一个
    2024第八届金腾奖 私宅(独居)丨私宅(多人居)丨餐饮丨酒店丨办公丨商业丨公共丨公益丨人物丨NEW100 jintengAWARD(小金_金腾奖组委会) 广州市海珠区琶洲大道68号华新中心21楼
    金腾奖视频号 金腾奖小红书号 监制:刘译遥
    统筹:张俊媚
    运营:赖钰炼 曹凯月 刘芳棋 小金
    新媒体:王贝贝 严洁 张文一
    技术:黄天佑 丁德昌
    最终解释权归金腾奖主办方所有