Spring
作品详情
  • Details of the work 标题横线
    头像或者logo
    图片 木桃盒子设计 设计引力特约推荐
    城市:南京
    公司:木桃盒子设计
    参赛作品: 春芜
    空间类型:公寓(150㎡以下)
    个人/公司简介:
    「木桃盒子设计」成立于2012年,是一家以精品家装为主、工装为辅的设计公司,设计团队拥有丰富的设计经验及设计知识,用专业和真诚去对待每一位客户,力争每一个案例都成为实景落地的作品。曾有多套成功案例,并在国内获得各类奖项殊荣。
    设计说明 | Design Instruction
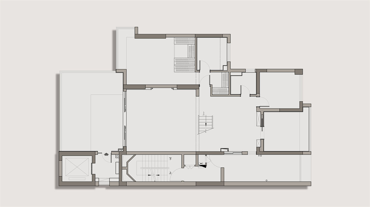
  • 本次案例根据屋主投⼊和喜好,我们考虑只调整公共区域,房间部分尽量维持不动。由于屋主待客⽐较频繁,以及常住⼈⼝较多,我们会在⼀楼、⼆楼公共部位着重突出本案的设计⻛格。将储物功能分散隐藏到空间⾥,尽量让公共空间体现得整洁美观。 步⼊客厅,正式进⼊我们设计的主题中⼼。客厅挑空空间采⽤到顶书架,满⾜客户的功能要求外,⽆限延伸了客厅的空间感。采⽤异形造型,墙⾯艺术涂料,结合原⽊质书架,尽量保留原始材质的质感,营造复古氛围。 将原有楼梯位置,调整⾄客厅位置。使得现有的客餐厅空间和⼆楼空间更加规整,空间的利⽤率也⼤⼤的提升了。客厅楼梯位置采⽤屋主⽐较喜爱的圆拱形式,将楼梯以连廊的形式体现出来。阵列式的拱⻔形式,在挑空的客厅中,既有⽆限的延伸感,也将楼梯和客厅的区分开。也很好的体现了复古⻛格的特点,成为整个空间的视觉中⼼点。 餐厅采⽤了岛台和餐桌结合的形式,设置了⽔池和直饮⽔⻰头,丰富了餐厅的功能。餐厅整⾯的电器柜,将烤箱、蒸箱、咖啡机、红酒柜和储物间的⻔融为⼀体,并顺延⾄楼梯底部,将楼梯底部的空间打开、释放出来,也很巧妙地增加了储物空间,使得空间灵动不⽣硬,与此同时和餐桌岛台,形成了⻄餐功能空间。偶尔客⼈朋友过来,也是⽐较好的互动区域。 厨房⻔采⽤折叠⻔形式,折叠⻔共有四扇,三扇为玻璃⻔材质整体透光,第四扇为⽊质折叠⻔,还是遵循将空间释放,融合的理念,当把折叠⻔折好,将与⽊质护墙板贴合⼀起形成⼀个整体,解决了厨房瓷砖,玻璃折叠⻔,折叠碰撞后的收⼝问题,视觉更美观,功能上也避免了很多的卫⽣死⻆。 整个客餐厅公共区域⻔的形式,改成隐形⻔的形式。配合统⼀设计⻛格,使得公共区域更加的整体。 ⼆楼部分,原有楼梯洞填平。将屋主需要的书房,安排在这个位置。也位于⼆楼的正中,⽅便每个空间的⼈使⽤。 将原来的书房位置,改成⼉童娱乐区,随着时间慢慢推移,孩⼦们⼀天天⻓⼤,这个⼉童娱乐区也将是成为第⼆个⼉童房。书房和⼉童娱乐区中间采⽤夹墙移⻔的形式,打开移⻔将是⼀个通畅的公共区域,关上移⻔,将是⼀个独⽴的⼉童房。 由于房间及卫⽣间部分保持原样,为了使后期落地效果更好⼀些,房⻔更换成和设计⻛格统⼀的房⻔形式,房间卧室建议改⾊或墙⾯材质,换上贴合咱们整体⻛格的墙⾯材质。
  • 图片
  • 图片
  • 图片
  • 图片
  • 图片
  • 图片
  • 图片
  • 图片
  • 图片
  • 图片
  • 图片
  • 图片
  • 图片
  • 图片
  • 图片
  • 图片
  • 图片
  • 图片
  • 图片
  • 图片
  • 图片
  • 图片
  • 图片
  • 图片
  • 图片
  • 图片
  • 图片
  • 图片
  • 图片
  • 图片
  • 图片
  • 图片
  • 图片
  • 图片
  • 图片
  • 上一个 下一个
    2024第八届金腾奖 私宅(独居)丨私宅(多人居)丨餐饮丨酒店丨办公丨商业丨公共丨公益丨人物丨NEW100 jintengAWARD(小金_金腾奖组委会) 广州市海珠区琶洲大道68号华新中心21楼
    金腾奖视频号 金腾奖小红书号 监制:刘译遥
    统筹:张俊媚
    运营:赖钰炼 曹凯月 刘芳棋 小金
    新媒体:王贝贝 严洁 张文一
    技术:黄天佑 丁德昌
    最终解释权归金腾奖主办方所有