闲时
作品详情
  • Details of the work 标题横线
    头像或者logo
    图片 张丽丽
    城市:成都
    公司: 成都美美全案设计
    参赛作品: 闲时
    空间类型:公寓(150㎡以下)
    个人/公司简介:
    职称:中国室内高级设计师;中国陈设室内设计师; 荣誉:成都建筑装饰行业协“巾帼标兵”;四川省土木建筑学会陈设艺术分会 理事; 2022."中国.金鲲鹏设计奖"第四届鲲鹏室内设计大赛 2022. 中国室内金堂奖装饰设计奖 2022. 第十四届CBDA照明应用设计大赛优胜奖 2023. 中国室内金堂奖装饰设计奖 2023. 成都装饰协会颁发祝融奖 2023. 成渝双城设计大展.第二十三届银杏金鸟奖 铜奖 2023. 中国潮流设计排行获得榜新锐设计师称号 2023.第十四届CBDA照明应用设计大赛优胜奖 2024.中国室内金堂奖装饰设计奖 2024. 中国潮流设计排行获得榜新锐设计师称号 设计理念:实现设计价值与生活价值的共融
    设计说明 | Design Instruction
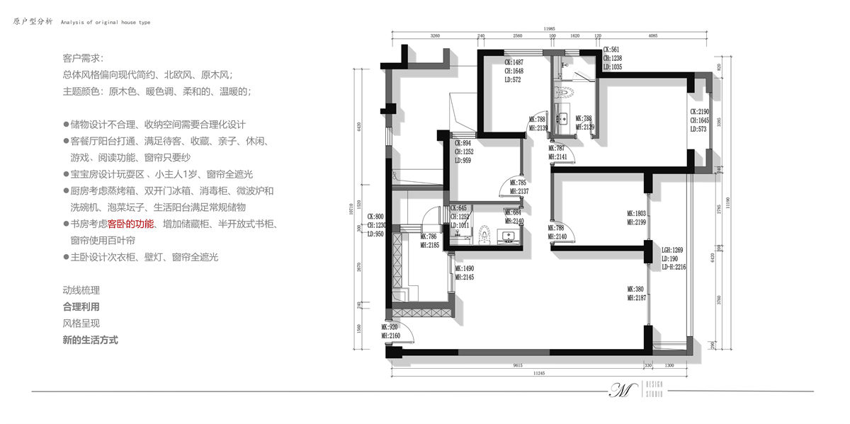
  • “一切设计源于业主的生活方式,每一个家都是独有的电影”带着空杯心,聆听! 拿这套案子的原因,是因为房子面积不大,设计要求不追求个性的奢华,没有超高的预算,但确实是市场的主流需求。面对这样的业主,考验的不仅是我们的专业能力! 业主找到我们是希望通过设计提升自己的生活方式,也期待全案委托节约他们的时间精力。所以我们从开始见面到签订设计合同一共见了2次进行沟通,增加彼此的了解也更放心后期的全权委托。业主房子本身是一个精装房,但原有风格和结构有很多不满意,需要通过设计手段以最小的预算来达到效果。 所以私宅设计师除了具备设计专业外,还要能共情业主的生活需求,具备优质的产品支撑,以及控制预算落地的能力。这个案子总造价19.8万落地,从确定合同到完成中间一共见了3次。因为前面的信任和网络的周汇报,业主非常放心过程也很透明,从而也带来好的落地效果!我认为私宅设计不是我们要定一个多么高深的设计名称,而是运用专业真正的为大众业主提升更好的生活方式,让设计本身也回归回馈生活!
  • 图片
  • 图片
  • 图片
  • 图片
  • 图片
  • 图片
  • 图片
  • 图片
  • 图片
  • 图片
  • 图片
  • 图片
  • 图片
  • 图片
  • 上一个 下一个
    2024第八届金腾奖 私宅(独居)丨私宅(多人居)丨餐饮丨酒店丨办公丨商业丨公共丨公益丨人物丨NEW100 jintengAWARD(小金_金腾奖组委会) 广州市海珠区琶洲大道68号华新中心21楼
    金腾奖视频号 金腾奖小红书号 监制:刘译遥
    统筹:张俊媚
    运营:赖钰炼 曹凯月 刘芳棋 小金
    新媒体:王贝贝 严洁 张文一
    技术:黄天佑 丁德昌
    最终解释权归金腾奖主办方所有