北麓官邸
作品详情
  • Details of the work 标题横线
    头像或者logo
    图片 重庆微观室内设计有限公司 贰拾柒设计经纪特约推荐
    城市:重庆
    公司:重庆微观室内设计有限公司
    参赛作品: 北麓官邸
    空间类型:别墅
    个人/公司简介:
    重庆微观室内设计公司是由几位业内知名设计师于2014年共同成立的独立设计公司。是重庆市建筑室内设计企业联合会副会长单位。 凭着丰富的设计经验、澎湃的创作灵感、良好的职业道德,得到市场认可的同时也得到了学术界的认可。 我们每个设计方案都是根据客户的自身情况来量身定制,而不是批量化生产,每一套设计都有自身独有的魅力。我们会站在客户的立场上思考问题,为了确保每一个作品都能做到极致,我们非常重视施工过程中各个环节的把控! 我们希望每个项目最后完工效果都是精品,而不是虚拟的效果图!
    设计说明 | Design Instruction
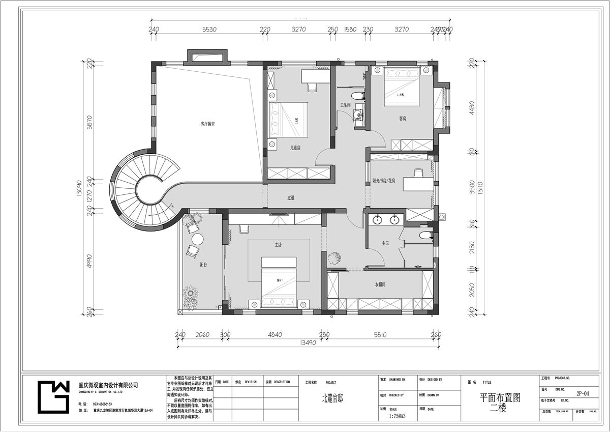
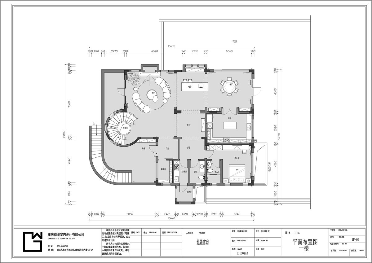
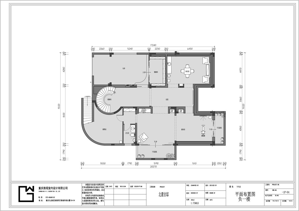
  • 这是一幢引人注目的独栋别墅,其建筑设计和面积都让人印象深刻。这幢别墅的外观设计精巧雅致,尺度合理,尤其是拾级而上的入口和室内的圆形楼梯间,让人过目难忘。作为室内设计师,我们以此为出发点,力求打造一个充满魅力和舒适度的室内空间。 平面布置方案是整个设计的核心之一。我们保留了已有的旋转楼梯,并将其作为空间视觉焦点,沿着优雅的弧线延伸到负一楼。这样的设计不仅美观,而且让整个空间具有更好的层次感和流动性。在满足业主的功能要求方面,我们为别墅设计了三个卧室、一个餐厅厨房以及一个娱乐室健身房。这些功能空间对于这么大的别墅来说并不困难,但如何让整个空间规整、有组织、有联系且不会显得大而散乱,却是我们需要在设计中着重考虑的问题。 为了解决这个问题,我们在设计开始之初就确定了这样的设计思路:让空间的主角是梁柱、楼梯、门窗等结构元素,而不是生硬的装饰造型。通过暴露结构梁柱和稍加修饰的手法,我们让空间更加自然流畅,同时也体现了结构之美和建筑之美。这样的设计思路不仅让整个空间更加舒适宜人,也充分展示了别墅的先天特质和优势。 总之,这幢独栋别墅的设计亮点在于保留了原有的建筑美感,并通过重组空间和修饰结构元素等手法,打造了一个舒适、有组织、有联系的室内空间。这样的设计思路不仅体现了我们对空间的深度理解和独特见解,也让整个设计方案更加可行和具有可操作性。
  • 图片
  • 图片
  • 图片
  • 图片
  • 图片
  • 图片
  • 图片
  • 图片
  • 图片
  • 图片
  • 图片
  • 图片
  • 图片
  • 图片
  • 图片
  • 图片
  • 图片
  • 图片
  • 上一个 下一个
    2024第八届金腾奖 私宅(独居)丨私宅(多人居)丨餐饮丨酒店丨办公丨商业丨公共丨公益丨人物丨NEW100 jintengAWARD(小金_金腾奖组委会) 广州市海珠区琶洲大道68号华新中心21楼
    金腾奖视频号 金腾奖小红书号 监制:刘译遥
    统筹:张俊媚
    运营:赖钰炼 曹凯月 刘芳棋 小金
    新媒体:王贝贝 严洁 张文一
    技术:黄天佑 丁德昌
    最终解释权归金腾奖主办方所有