尘林间
作品详情
  • Details of the work 标题横线
    头像或者logo
    图片 重庆微观室内设计公司 贰拾柒设计经纪特约推荐
    城市:重庆
    公司:重庆微观室内设计公司
    参赛作品: 尘林间
    空间类型:公寓(150㎡以下)
    个人/公司简介:
    重庆微观室内设计公司是由几位业内知名设计师于2014年共同成立的独立设计公司。是重庆市建筑室内设计企业联合会副会长单位。 凭着丰富的设计经验、澎湃的创作灵感、良好的职业道德,得到市场认可的同时也得到了学术界的认可。 我们每个设计方案都是根据客户的自身情况来量身定制,而不是批量化生产,每一套设计都有自身独有的魅力。我们会站在客户的立场上思考问题,为了确保每一个作品都能做到极致,我们非常重视施工过程中各个环节的把控! 我们希望每个项目最后完工效果都是精品,而不是虚拟的效果图!
    设计说明 | Design Instruction
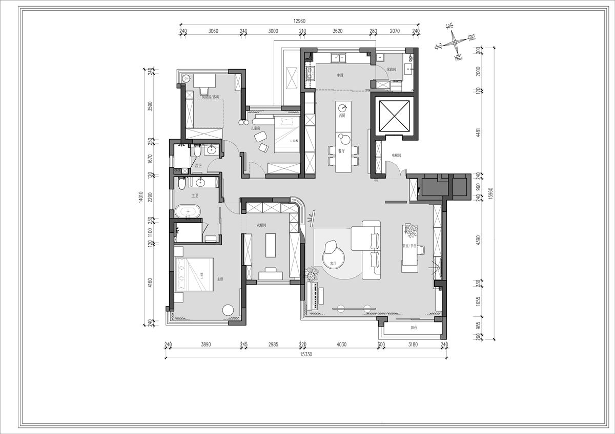
  • 业主是一位有成就的景观设计师,他希望打造出一个去风格化、返璞归真的家居环境,以表达他对自然和真实的追求。 在空间规划上,我们将居住空间分为公共区、休息区、厨房餐厅区和工作区。公共区和休息区相互交错,形成开放式空间,增强了空间的流动感和互动性。厨房餐厅区采用了全透明和开敞的设计,使得它成为一个宽敞而明亮的空间,同时也增加了家人之间的互动。工作区设置在独立的空间,保证了安静的工作环境。此外,我们还通过合理的储物设计和空间利用,满足了业主对收纳功能的需求。 在材料选择上,我们主要使用了质朴、自然的材料,如木材、石材、棉麻布等,以强调回归自然、返璞归真的设计理念。同时,我们也结合了一些简约的现代工艺材料,如金属和玻璃等,以增强空间的现代感。在色彩方面,我们以自然色为主,如木色、米色、灰色等,营造出舒适、和谐的氛围。同时,在局部区域运用自然元素的色彩,如石头色和植物色等,以增加空间的自然感和生命力。 在家具选择上,我们采用了简约、实用的现代家具,以符合去风格化的设计理念。同时,我们也搭配了一些质朴的手工艺品和装饰元素,以增强空间的自然感和艺术感。我们在客厅还专门设计了一张由木材和石材组成非常有设计感的书桌,在有设计感的同时还具有多种功能,满足业主工作、学习、品茶、聚会等不同需求。 为了实现空间通透、无拘无束的效果,我们进行了以下设计:首先,厨房餐厅的布局改造为完全通透和开敞的空间,增加了空间的互动性和开放性。为了应对厨房偶尔出现的食物爆炒时间,我们还设置了三联动的暗藏滑门,在需要爆炒的时候,把滑门关上,保证了油烟味不会窜到其他空间。其次,客厅设置了开敞式书房,以及女儿的舞蹈练习区和钢琴练习区,满足了业主工作和家庭生活的多种需求,也让空间更加丰富和生动。 整个设计充分考虑了业主的品位和生活需求,以去风格化、返璞归真的设计理念为主导,通过质朴的材料、实用的功能布局和简约的现代家具,打造出一个舒适、自由、自然的家居环境。特别是客厅的开敞式书房、女儿的舞蹈练习区和钢琴练习区的设计,体现了业主工作和家庭生活的多样性及艺术性。整个设计尊重自然、强调人与环境的和谐共处,满足了业主对空间通透、无拘无束的生活追求。
  • 图片
  • 图片
  • 图片
  • 图片
  • 图片
  • 图片
  • 图片
  • 图片
  • 图片
  • 图片
  • 图片
  • 图片
  • 图片
  • 图片
  • 图片
  • 上一个 下一个
    2024第八届金腾奖 私宅(独居)丨私宅(多人居)丨餐饮丨酒店丨办公丨商业丨公共丨公益丨人物丨NEW100 jintengAWARD(小金_金腾奖组委会) 广州市海珠区琶洲大道68号华新中心21楼
    金腾奖视频号 金腾奖小红书号 监制:刘译遥
    统筹:张俊媚
    运营:赖钰炼 曹凯月 刘芳棋 小金
    新媒体:王贝贝 严洁 张文一
    技术:黄天佑 丁德昌
    最终解释权归金腾奖主办方所有