春森彼岸
作品详情
  • Details of the work 标题横线
    头像或者logo
    图片 近晴设计|shine studio 贰拾柒设计经纪特约推荐
    城市:重庆
    公司:近晴设计|shine studio
    参赛作品: 春森彼岸
    空间类型:公寓(150㎡以下)
    个人/公司简介:
    近晴设计|shine studio成立于2015年,一支新锐的极具创意的设计团队,有着脑洞大开的设计思路。以重庆知名设计师莫喻晴女士领航,团队凝聚了一批经验丰富、充满激情与合作精神的设计精英。秉承创新的设计概念,确保最精致的设计得到最完整的呈现,在追求品质的同时,更关注每个甲方精神层面的追求,回归到设计的本质。近晴一直在创新突破的路上坚持做好“精心设计,精致生活”。
    设计说明 | Design Instruction
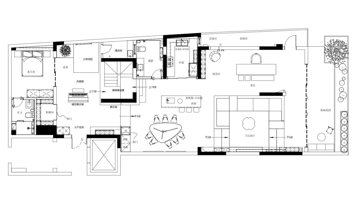
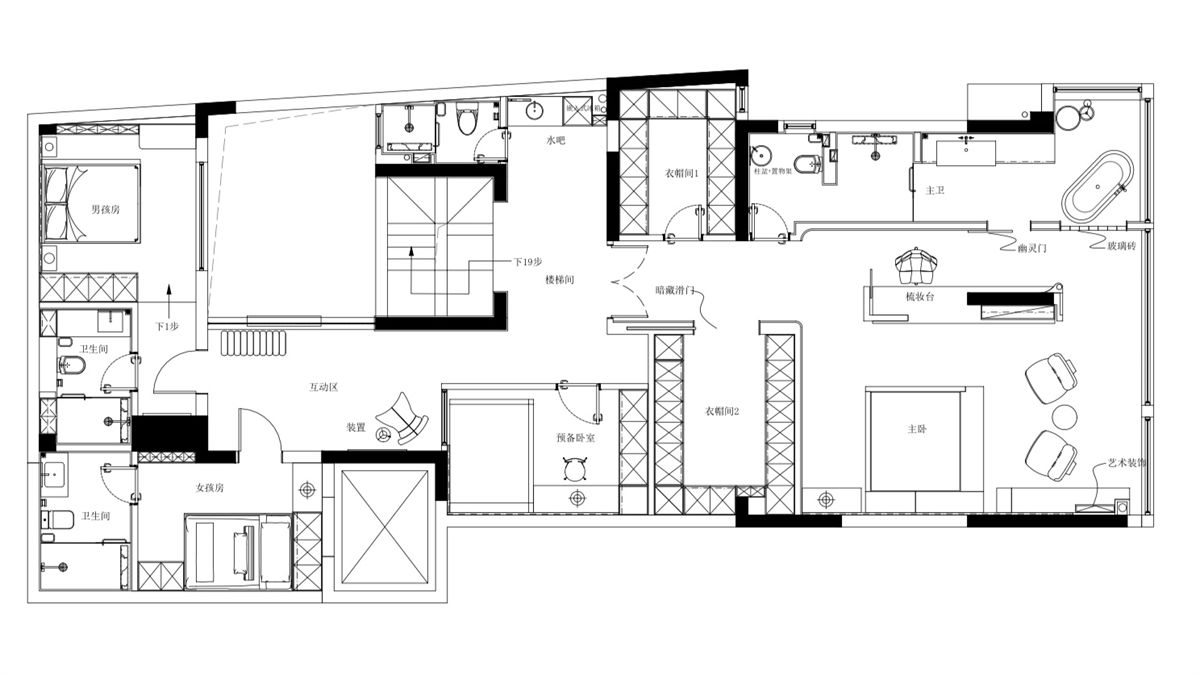
  • 开放简约,打破局限性,将自然与和谐贯穿其中,给予空间最大限度的生命力,让生活流动于此,创造别具一格的豪宅。 打开门的剎那,采光井处带来的宁静闲寂感便扑面而来,材质与光线共同铸造一道无与伦比的自然景观。对于房屋而言,不仅要满足视觉审美,契合生活功能需求,更是凸显业主对于居家生活的追求以及对美的感知。闲雅宁和的木色调与白色调在石材和木材中不断碰撞,饱满的侘寂极简美学一览无余。用餐区的手作吊灯又增添几分氛围感,简洁的色彩搭配和线条承转,平静质朴的空间感蔓延开来。半开放的布局让卧室更显灵动,朴拙的肌理,极致的色彩和线条,营造一个舒适/自由/随性的私密空间。
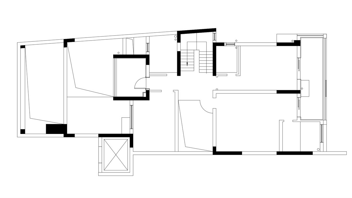
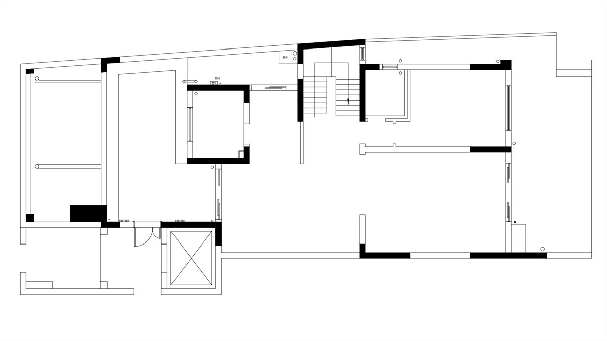
  • 图片
  • 图片
  • 图片
  • 图片
  • 图片
  • 图片
  • 图片
  • 图片
  • 图片
  • 图片
  • 图片
  • 图片
  • 图片
  • 图片
  • 图片
  • 图片
  • 图片
  • 图片
  • 图片
  • 图片
  • 图片
  • 图片
  • 图片
  • 图片
  • 图片
  • 图片
  • 图片
  • 图片
  • 图片
  • 图片
  • 图片
  • 图片
  • 图片
  • 上一个 下一个
    2024第八届金腾奖 私宅(独居)丨私宅(多人居)丨餐饮丨酒店丨办公丨商业丨公共丨公益丨人物丨NEW100 jintengAWARD(小金_金腾奖组委会) 广州市海珠区琶洲大道68号华新中心21楼
    金腾奖视频号 金腾奖小红书号 监制:刘译遥
    统筹:张俊媚
    运营:赖钰炼 曹凯月 刘芳棋 小金
    新媒体:王贝贝 严洁 张文一
    技术:黄天佑 丁德昌
    最终解释权归金腾奖主办方所有