城市居所 书写浪漫
作品详情
  • Details of the work 标题横线
    头像或者logo
    图片 言可琴 贰拾柒设计经纪特约推荐
    城市:重庆
    公司: Jiangxi Senchuan design Co., LTD
    参赛作品: 城市居所 书写浪漫
    空间类型:公寓(150㎡以下)
    个人/公司简介:
    中国室内设计装饰协会(CIDA) 高级室内设计师 国际建筑装饰室内设计协会(icdo) 室内设计师 国际建筑装饰室内设计协会(icdo) 高级陈设艺术设计师
    设计说明 | Design Instruction
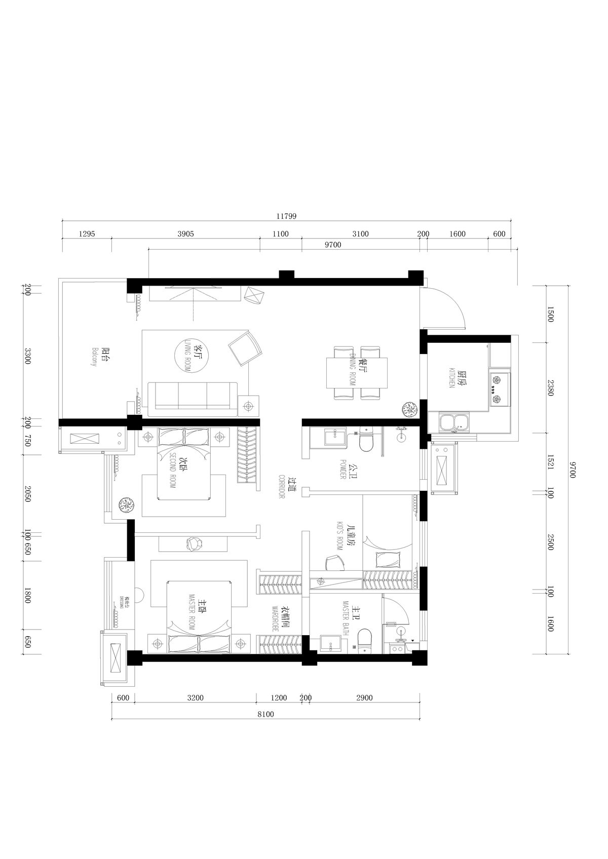
  • 城市居所,书写浪漫 引言 /Preface/ 从自然山水提炼出灵感元素,转译至项目设计中,在打破、重组中,与艺术、自然相融,重新构建可持续性的住宅空间。 01 客厅 Living Room 运用简约利落的设计语言,构建温暖舒适的生活场景。自然光均匀洒入室内,柔软、明媚的气质流转于居所中。以开放式布局连接客厅与餐厅,功能空间在舒展、自由的氛围中延展和开合。 02 餐厅 Dining Room 移步至餐厅,从提供休闲、社交的生活区域切换至欢聚、品尝的美好画面。餐厨之间自然连接,从生活细节上优化用户体验感。 03 卧室 Bedroom 居所中每一间卧室,通过简洁有序的设计语言勾勒出空间轮廓,同时结合木质、金属、竖纹、弧形,以及艺术装饰,诠释不同家庭成员的生活态度及对精神领域的追求。 主卧在舒缓的空间基调下,深浅色阶巧妙过渡中,以横向线条结合竖向分割,潜移默化地形成细腻的情绪感知,身处其中能够快速放松下来,享受内心深处的安宁。 次卧延续相同的设计手法,柔软感从床品蔓延至床头,在变化与衔接中形成碰撞,呈现出多维的层次感。 从儿童视角展开空间设计,兼顾睡眠区及学习区。明亮的色彩搭配装饰,赋予这一方小天地别样的趣味与活力,同时也能对小主人进行心智启蒙。 设计师积极践行可持续的设计思维,关注居住者的生活方式及个性偏好,与空间中功能及美感实现平衡,使居住者在和谐的空间关系中,感受平静幸福的生活氛围。
  • 图片
  • 图片
  • 图片
  • 图片
  • 图片
  • 图片
  • 图片
  • 图片
  • 图片
  • 图片
  • 图片
  • 图片
  • 图片
  • 图片
  • 图片
  • 图片
  • 图片
  • 图片
  • 图片
  • 图片
  • 图片
  • 图片
  • 图片
  • 图片
  • 图片
  • 上一个 下一个
    2024第八届金腾奖 私宅(独居)丨私宅(多人居)丨餐饮丨酒店丨办公丨商业丨公共丨公益丨人物丨NEW100 jintengAWARD(小金_金腾奖组委会) 广州市海珠区琶洲大道68号华新中心21楼
    金腾奖视频号 金腾奖小红书号 监制:刘译遥
    统筹:张俊媚
    运营:赖钰炼 曹凯月 刘芳棋 小金
    新媒体:王贝贝 严洁 张文一
    技术:黄天佑 丁德昌
    最终解释权归金腾奖主办方所有