Lakeside one
作品详情
  • Details of the work 标题横线
    头像或者logo
    图片 杨佼佼 重庆走鹊传媒特约推荐
    城市:重庆
    公司: 重庆羊角角设计工作室
    参赛作品: 壹号湖畔
    空间类型:公寓(150㎡以下)
    个人/公司简介:
    言佼佼者,凡佣之人稍为胜也。” 杨佼佼 国内资深室内设计师 从业时间20年 拥有丰富的设计经验,作为一名设计师她兼具过硬的专业实力和细腻的审美触觉。擅长创意结构开发,并葆有项目的设计独特性,将自我设计美学与业主的独特需求融入每一个项目中。 2019年,重庆羊角角设计工作室成立,杨佼佼为创始人兼设计总监,其专业的设计与丰富经验赢得了广大业主的信赖与喜爱,她亦将自己的设计理念贯彻始终,用尊重与倾听去设计,用设计为每个人圆梦。
    设计说明 | Design Instruction
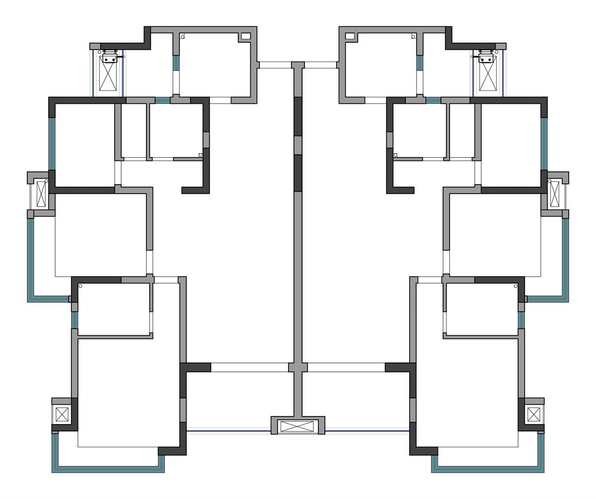
  • 每一个家都有着其独特的性格,因着每个人相异的生活态度与不同的生活美学追求,产生了各式各样的生活空间,但这些空间相同的地方在于,他们都被称之为家。 本案从传统意义上来说它不能算是一套房子,而是两套,因着屋主有着海外生活的经验,对居住所的空间有着广、大的需求,但是之前的居所随着生活的迁移开始变得越来越不能满足这些需求,于是他们在商量下在同小区购入了相邻的两套房屋,并将其打通,形成了一个一共240平方米,真正意义上品质的大平层。 在选择我们之前,已有工作室完善了平面设计,但业主并不满意其布局。于是根据原始结构图,我们最终为他们改造出了一个最心仪的版本。 本案为简美风格加入了一些复古的元素,形成了一个大气的居所;他们常住人口为3人,但是家中亲人偶尔会前来拜会暂住,于是摒弃了前版4个房间的方案,在居住房间上仅留下3间卧室,以公共区域为动线中轴,形成环形动线,两边分别排布功能性房间。
  • 图片
  • 图片
  • 图片
  • 图片
  • 图片
  • 图片
  • 图片
  • 图片
  • 图片
  • 图片
  • 图片
  • 图片
  • 图片
  • 图片
  • 图片
  • 图片
  • 图片
  • 图片
  • 图片
  • 图片
  • 图片
  • 图片
  • 图片
  • 图片
  • 图片
  • 图片
  • 图片
  • 图片
  • 图片
  • 图片
  • 图片
  • 图片
  • 图片
  • 图片
  • 图片
  • 图片
  • 图片
  • 图片
  • 图片
  • 图片
  • 图片
  • 图片
  • 图片
  • 图片
  • 图片
  • 图片
  • 图片
  • 图片
  • 图片
  • 图片
  • 图片
  • 图片
  • 图片
  • 图片
  • 图片
  • 图片
  • 图片
  • 图片
  • 图片
  • 图片
  • 图片
  • 图片
  • 图片
  • 图片
  • 图片
  • 图片
  • 图片
  • 上一个 下一个
    2024第八届金腾奖 私宅(独居)丨私宅(多人居)丨餐饮丨酒店丨办公丨商业丨公共丨公益丨人物丨NEW100 jintengAWARD(小金_金腾奖组委会) 广州市海珠区琶洲大道68号华新中心21楼
    金腾奖视频号 金腾奖小红书号 监制:刘译遥
    统筹:张俊媚
    运营:赖钰炼 曹凯月 刘芳棋 小金
    新媒体:王贝贝 严洁 张文一
    技术:黄天佑 丁德昌
    最终解释权归金腾奖主办方所有