I would be delighted to spend some time with you
作品详情
  • Details of the work 标题横线
    头像或者logo
    图片 邹立立 重庆走鹊传媒特约推荐
    城市:重庆
    公司: 重庆不晚室内设计
    参赛作品: 我想和你虚度时光
    空间类型:公寓(150㎡以下)
    个人/公司简介:
    重庆不晚设计有限公司合伙人 荣誉:2023:芒果奖 全国中国别墅奖TOP100 2022:芒果奖 全国中国别墅奖TOP100 2023:第2届京东设计家大赛住宅空间设计TOP100 设计理念:对于设计我是以融.合.共.生来形容,对于我来说空间不是最后的结果,幸福才是。 简单点说就是房子是死物,但是一旦赋予它生命和屋主建立了共存关系,以不同的的情感给予空间其独特的语言诉说着生活的故事,我们穿梭在各式各样的空间中,也许结构,位置并没有变化,但是在本身气质却对标着不同的独立个体,所以说对于我来说空间不是最后的结果,幸福才是!
    设计说明 | Design Instruction
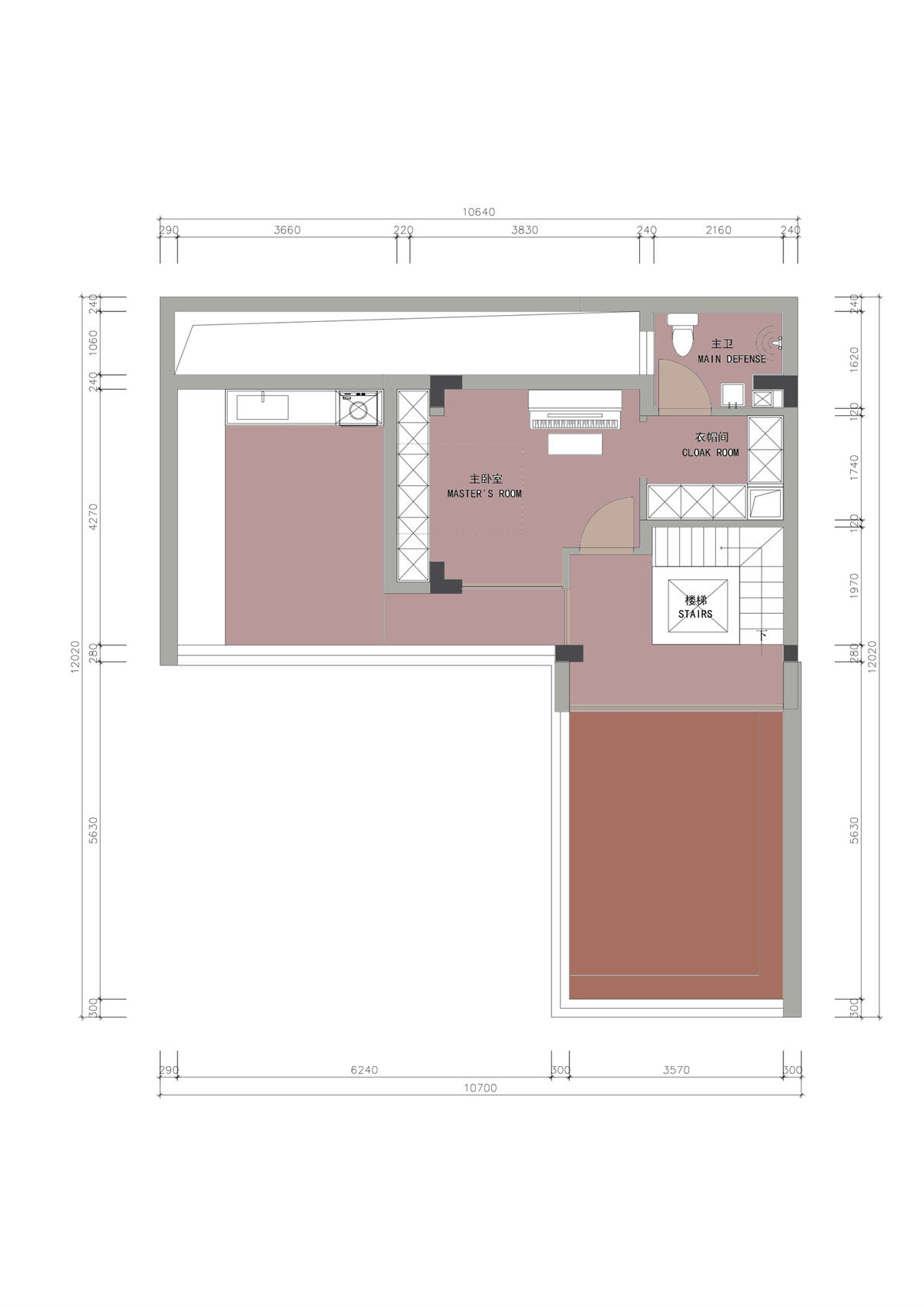
  • 生活在都市的年轻人,愈来愈注重生活的仪式感,它们在潜移默化中达到了共生的形态。 于是,一种新生的家居生活模式悄然兴起,那便是自带慵懒气质的原木混搭风。 本案中业主对居所设计有着极高要求,在功能背后,对美学与精神层面的追求更为细致、严谨。 设计师秉持着艺术性和舒适性的前提,为本案营造了一种适应当下都市生活方式和审美趋势的空间产品。 设计师通过大刀阔斧的硬装改动,舒适朴质的选材,东南亚异域风格在这个家里得以融入,整体呈现出和谐且静谧的艺术氛围,纯粹中带着几分拙朴,却仿佛藏着无数的禅机。 业主设计诉求: 1 、常住人口为夫妻两人,女方母亲及4岁的女儿,保留两室的情况可预留一间多功能空间方便男方父母临时居住,平时可当休闲室使用。 2、 朋友拜访较多,会客区域要大,需要一个饮茶空间,不需要封闭,能互动最好。 3、女主对衣橱功能要求不大,够用就好,卧房空间一定要大,男主希望拥有一间属于自己私密的书房/游戏室 4、女主喜欢收藏一些工艺制品(水晶、木雕等摆件),公区一定有展示区,不接受刻意摆放(例如一笔柜子成列)。 5、厨房可接受开敞式,但是一定要有西厨及岛台功能,原阳台的气表及落水管如何遮丑。 6、不喜欢按部就班的设计,鼓励空间功能重组。 改动亮点: 1、拆就一个字,进门空间太堵,太死板,拆;客厅开间进深太小气,拆;衣帽间连转身都困难,拆;笔直的过道又窄又长,缺乏变化,拆拆拆。 2、 利用入户鞋柜区做成了双面使用的玄关柜,增加储物功能;进户鸡肋衣帽间位置改造成干景区,升级了玄关效果,取消进户卧室卫生间功能,统一成休闲兼卧房功能。 3、 改造增加了回廊厅的功能,让狭长的过道瞬间消失,同时增加了博古架功能,解决了女主陈列的烦恼。 4、 四分离的主卫空间,独立的游戏套房,宽大的主卧,是对男女主人卧房要求的完美解答。 5 、利用弧形倒角藤编柜处理排水管及气表,呼应餐边柜藤编柜门效果,有实实在在的遮丑及增纳储物空间。
  • 图片
  • 图片
  • 图片
  • 图片
  • 图片
  • 图片
  • 图片
  • 图片
  • 图片
  • 图片
  • 图片
  • 图片
  • 图片
  • 图片
  • 图片
  • 图片
  • 图片
  • 图片
  • 图片
  • 图片
  • 图片
  • 图片
  • 图片
  • 图片
  • 图片
  • 图片
  • 图片
  • 图片
  • 图片
  • 图片
  • 图片
  • 图片
  • 图片
  • 图片
  • 图片
  • 图片
  • 图片
  • 上一个 下一个
    2024第八届金腾奖 私宅(独居)丨私宅(多人居)丨餐饮丨酒店丨办公丨商业丨公共丨公益丨人物丨NEW100 jintengAWARD(小金_金腾奖组委会) 广州市海珠区琶洲大道68号华新中心21楼
    金腾奖视频号 金腾奖小红书号 监制:刘译遥
    统筹:张俊媚
    运营:赖钰炼 曹凯月 刘芳棋 小金
    新媒体:王贝贝 严洁 张文一
    技术:黄天佑 丁德昌
    最终解释权归金腾奖主办方所有