Hide
作品详情
  • Details of the work 标题横线
    头像或者logo
    图片 黄寅 ARENA场所特约推荐
    城市:上海
    公司: HO STUDIO
    参赛作品: 隐
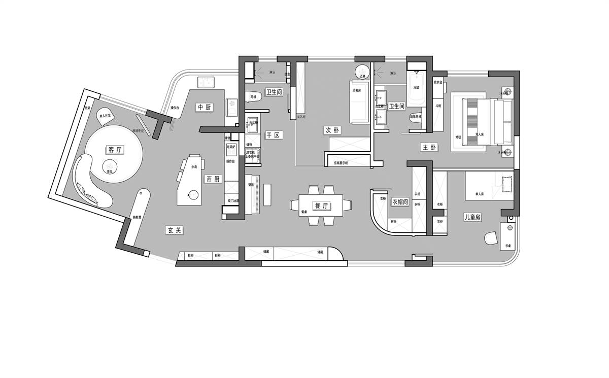
    空间类型:公寓(150㎡以下)
    个人/公司简介:
    HO STUDIO创立于上海,专注于高端私宅、小型单体建筑及小型商业空间设计。 “HO”是“Hope On”的缩写,同时也是两位主理人的姓氏首字母,译为“寄希望于”。我们希望不被经验和风格所束缚,回归本质,不断思考,寄希望于用执着纯粹的感知力和行动力全新定义设计的边界。
    设计说明 | Design Instruction
  • 大隐主朝市,小隐入丘樊,中国古代的隐逸文化可谓源远流长。一直践行着生活美学的屋主夫妇,希望新居能够成为他们修身养志的精神场所,同时通过耳濡目染,培养下一代对美感的认知、有序的自主意识、良好的生活习惯和沟通能力,以建立既相对独立又亲密无间的亲子关系。
  • 图片
  • 图片
  • 图片
  • 图片
  • 图片
  • 图片
  • 图片
  • 图片
  • 图片
  • 图片
  • 图片
  • 图片
  • 图片
  • 图片
  • 图片
  • 图片
  • 图片
  • 图片
  • 图片
  • 图片
  • 图片
  • 图片
  • 图片
  • 图片
  • 图片
  • 图片
  • 图片
  • 上一个 下一个
    2024第八届金腾奖 私宅(独居)丨私宅(多人居)丨餐饮丨酒店丨办公丨商业丨公共丨公益丨人物丨NEW100 jintengAWARD(小金_金腾奖组委会) 广州市海珠区琶洲大道68号华新中心21楼
    金腾奖视频号 金腾奖小红书号 监制:刘译遥
    统筹:张俊媚
    运营:赖钰炼 曹凯月 刘芳棋 小金
    新媒体:王贝贝 严洁 张文一
    技术:黄天佑 丁德昌
    最终解释权归金腾奖主办方所有