华宇御澜湾时尚融合现代潮流
作品详情
  • Details of the work 标题横线
    头像或者logo
    图片 王希 贰拾柒设计经纪特约推荐
    城市:重庆
    公司: 一间喜物软装设计(重庆)有限公司
    参赛作品: 华宇御澜湾时尚融合现代潮流
    空间类型:公寓(150㎡以下)
    个人/公司简介:
    作为一名设计师,我秉持着对色彩敏锐的洞察力与调配能力,热衷于时尚潮流的探索与前卫艺术的实践,同时深深植根于对中国传统文化和自然之美的敬畏与热爱。我的设计理念,是将这些多元化的个人标签融合成独特的设计语言,创造既具有时代风尚又富含文化底蕴,且与自然生态和谐共生的室内空间。 色彩驾驭与情感表达: 我相信色彩是空间的灵魂,能够直接影响人们的情绪感知与心理体验。我擅长运用色彩心理学原理,精准把握色彩的冷暖、明暗、饱和度之间的微妙关系,构建富有层次感与情感共鸣的色彩搭配方案。无论是大胆的撞色以引发视觉冲击,还是细腻的同色系渐变以营造和谐宁静,我都致力于通过色彩的力量唤醒空间的生命力,使之与居住者的个性与情绪需求紧密契合。 时尚触觉与艺术前沿: 紧贴国际设计趋势,关注时尚界动态,善于捕捉并融入当下的流行元素与前沿设计理念,使设计作品始终保持鲜明的时代气息。同时,我深受前卫艺术的启发,敢于打破常规,尝试新颖的材质组合、形态构造与视觉表现手法,力求在每一个项目中注入创新思维与艺术张力,为室内空间赋予超乎寻常的艺术魅力与个性标识。 中国文化底蕴的传承与创新: 对中国文化的深入理解和尊重是我设计哲学的重要基石。我善于提炼中国传统元素的精髓,如水墨意境、古典纹饰、木质纹理、园林构景等,并以现代手法重新诠释,使之在新的语境下焕发新生。我力求在设计中营造出既蕴含深厚文化底蕴又不失现代感的东方美学氛围,让居住者在日常生活中感受到历史与现代、本土与全球的交融之美。 自然元素的融合与生态意识: 深植于内心的自然偏好驱使我将绿色理念融入设计实践中。我倡导“室内微自然”的概念,巧妙引入阳光、植物、水景、天然材质等元素,力求营造亲近自然、和谐共生的生活环境。我不仅追求形式上的生态美学,更注重实际的环保性能,选择可持续材料,优化能源利用,确保设计在美观与功能之外,亦是对地球资源负责任的体现。 综上所述,我的个人设计理念是以色彩为情感纽带,以时尚与前卫艺术为创新引擎,以中国文化为精神底蕴,以自然生态为和谐导向,致力于打造既引领潮流又富含人文关怀,既独特个性又绿色环保的室内空间,为居住者提供丰富多元、身心愉悦的生活体验。 2020年荣获艾鼎国际设计大奖年度最佳新人奖 2020年荣获艾鼎国际设计大奖软装设计类优秀奖 2022年网易城市设计精英榜重庆榜---TOP50 2022年中国装饰艺术设计大赛-饰界杯色彩搭配一等奖 2022年ICS国际色彩设计奖优秀私宅作品奖 2023年金堂奖私宅软装杰出奖
    设计说明 | Design Instruction
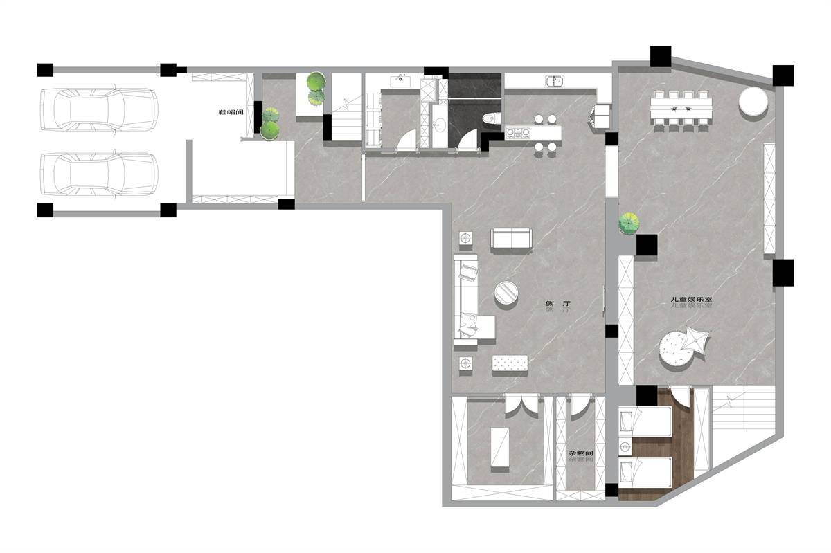
  • 项目定位: 业主是两位美国留学回国生活的90后,他们的眼界和时尚敏感度都很高,设计之处交流中,女业主提出想在有限的空间里打造一个具有时尚感、艺术感和相对精致大气的居住空间,我们前期了解他们的喜好、生活方式、生活习惯、性格爱好、预算和色彩喜好的测试,依据测试结果结合室内空间项目在设计上充分体现时尚、独特和艺术性。最终确定将现代风格与潮流艺术相结合,采用简洁、几何的线条和形状,搭配独特的艺术元素,如抽象画、雕塑、带有机理质感的布艺和艺术品对整个空间进行全案的软装设计。在色彩搭配中我们将项目分为两个区域进行打造,负一楼、负二楼我们选择年轻人喜欢的超酷灰黑色,一楼、二楼选择包容度较高的明亮而富有层次感的颜色,运用流行的潮流色彩橙色系,在整个空间中统一协调,以创造出独特而引人注目的氛围。 在材料选择选择上使用现代材料,如玻璃、金属、石材和高级塑料,以突显现代感和未来感。在家具和装饰品的选择上,考虑了一些独特设计的艺术品和潮流手办。 在光照设计中, 充分利用自然光,采用大采光井和具有通透光源的艺术砖,同时设计照明系统,通过不同的灯光效果营造出艺术氛围。 在空间布局中,我们采用开放式布局,强调流畅的线条和通透感。灵活运用家具和装饰品,打破传统布局,展现独特的潮流感。将负一楼和负二楼设计为年轻人聚会休闲和儿童玩耍的区域,将一楼和二楼设计为业主家相对私密的起居活动空间。 在业主体验感相对较强的区域设计时,充分考虑业主的生活习惯和访客的到达层,考虑将整个负一楼的室内空间的体验,通过艺术品、音乐和氛围照明等元素,创造出一个引人入胜的空间体验。 通过以上精心的设计和考虑因素,为业主打造出一个独特而现代的、充满潮流艺术氛围的室内空间。 空间意境: 本案有3个重点设计和考虑的区域。第1:具有未来感的车库区域,设计之初,我们就一直在和业主方探讨当下人们的生活方式和亲朋来访的主要通道,因为将车库作为了入户仪式感的重点设计区域,我们使用智能车库门和入口系统,使用自动化、感应器和智能控制系统来实现智能车库门。使用无钥匙进入系统、指纹识别或面部识别技术,增加安全性和科技感。在车库区域智能照明系统上,选择了可调节的LED照明系统,可以根据需要改变颜色和亮度,营造出不同的氛围。智能照明系统还与智能家居系统连接,通过声控或手机应用进行控制。进入车库时,犹如进入一个时光隧道。车库墙面材料我们使用了未来感十足的金属拉丝饰面材料,配合线性嵌入灯带使车库墙面呈现出科幻般的效果。水波纹纹理的不锈钢镜面穿衣镜搭配红色换鞋凳使空间的时尚感与科技感交相辉映。第2:具有观影、唱K、打碟、酒吧和儿童游乐的综合休闲厅,我们在设计时,将负一楼的休闲厅设计为业主接待好友和陪伴孩子玩耍的主要活动空间,此空间的整体配色以潮流酷炫的深色调,但为了打破深色带来的沉闷感,在硬装施工中,建议保留了大面积的采光井区域,为儿童玩耍区增加更多的室外光照,同时在这个空间运用了几处点缀色,来提升整个区域的时尚感和可玩性。第3:考虑业主家为叠拼别墅项目,一楼二楼的单层面积并不大,为实现空间整体软装氛围更具氛围感,我们在二楼主卧室面向一楼客厅的挑高层区域,设计了大L型的落地玻璃,采用电雾玻璃使整个空间氛围感、隐私性和通透性都更强。 空间布局: 1、开放式多功能空间: 在负一楼的综合休闲厅和一楼的客厅、餐厅区域都采用开放式布局,将不同功能区域融为一体。将原本分块的小区域整合成一个流畅的空间,提高了社交性和视觉流畅感。2、多功能家具: 选择可以变形或转换的家具,以适应不同的需求。例如,负一楼综合休闲厅我们选择了可折叠的躺椅、可移动的沙发,提高空间的灵活性。 3、主题式空间: 在不同的区域创造出独特的主题,例如负一楼车库的科技感、未来感、综合休闲厅的艺术感、文艺氛围,儿童玩耍区和每层楼玄关的时尚潮流感等,通过不同的设计元素和色彩搭配体现主题。 设计选材: 在大型雕塑的选择用材上,我们与厂家沟通最终选用了可再生材料,这种可降解的材料,减少了对环境的影响。尤其是几处墙面装饰性的3d打印砖和饰面板,我们都满足了业主既要好看环保又要经济实惠的述求。 用户体验: 由于一些不可抗力的因素影响,业主方在此案装修中耗费了3年时间,最终选择软装设计时有一些疲于应付了事的想法,但在软装设计时前后也考察了3家公司,最终选择我们,通过我们双方的努力在规定的时间内顺利交付入住,引用业主的原话:谢谢,希哥!终于搬进来了。还好有你,也很庆幸认识你。我也很高兴和业主从工作关系变成了朋友关系,目前正在服务她在香港的私宅软装项目。
  • 图片
  • 图片
  • 图片
  • 图片
  • 图片
  • 图片
  • 图片
  • 图片
  • 图片
  • 图片
  • 图片
  • 图片
  • 图片
  • 图片
  • 图片
  • 图片
  • 图片
  • 图片
  • 图片
  • 图片
  • 图片
  • 图片
  • 图片
  • 图片
  • 图片
  • 图片
  • 图片
  • 图片
  • 图片
  • 图片
  • 图片
  • 图片
  • 图片
  • 图片
  • 图片
  • 图片
  • 图片
  • 图片
  • 图片
  • 图片
  • 图片
  • 图片
  • 图片
  • 图片
  • 图片
  • 图片
  • 图片
  • 图片
  • 图片
  • 图片
  • 图片
  • 上一个 下一个
    2024第八届金腾奖 私宅(独居)丨私宅(多人居)丨餐饮丨酒店丨办公丨商业丨公共丨公益丨人物丨NEW100 jintengAWARD(小金_金腾奖组委会) 广州市海珠区琶洲大道68号华新中心21楼
    金腾奖视频号 金腾奖小红书号 监制:刘译遥
    统筹:张俊媚
    运营:赖钰炼 曹凯月 刘芳棋 小金
    新媒体:王贝贝 严洁 张文一
    技术:黄天佑 丁德昌
    最终解释权归金腾奖主办方所有