温暖入室,记录生活瞬间
作品详情
  • Details of the work 标题横线
    头像或者logo
    图片 唐康宁 贰拾柒设计经纪特约推荐
    城市:南昌
    公司: Jiangxi Senchuan design Co., LTD
    参赛作品: 温暖入室,记录生活瞬间
    空间类型:别墅
    个人/公司简介:
    中国室内设计装饰协会(CIDA) 高级室内设计师 国际建筑装饰室内设计协会(icdo) 室内设计师 国际建筑装饰室内设计协会(icdo) 高级陈设艺术设计师 设计理念:将设计融于人性,将家居带入悠闲自在的情境。
    设计说明 | Design Instruction
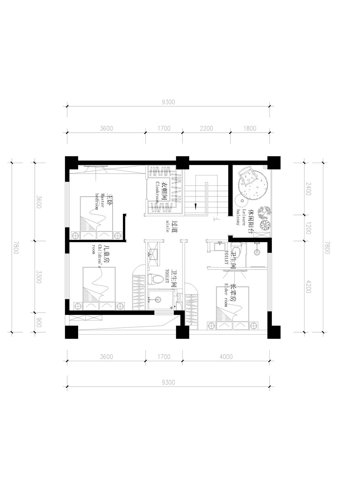
  • 温暖入室,记录生活瞬间 引言 /Preface/ 繁重的城市生活压力,让人们更加渴望拥有属于自己的“家”,把对生活的期许洒进居所的每个角落。本案采用天然、质朴的色彩与材质,打造自然舒适的生活氛围,让结束工作回归家庭的屋主,得到足够的放松。 01 客厅 Living Room 整个居室采光性优越,阳光透过纱帘洒入室内,暖意弥漫于一室。客餐厅摒弃了传统主灯设计,从视觉上拉伸了层高。柔和的色彩和温润的材质发生碰撞,再结合盎然绿植,让居于其中的人们顿感放松。 02 餐厅 Dining Room 四季更迭,一日三餐,在这开放式厨房素手煮羹汤。一家人齐坐于餐桌前,在熟悉的味蕾记忆中,感受过繁华后人间烟火气。 03 书房 Study 忙碌的现代生活里,需要留出一方空间给自己独处。设计师选用原木及低饱和度色,降低了装饰性的干扰。三两意境小物,与空间融为一体,静谧气息扑面而来,将人包裹住,心灵放飞于书海中。 04 卧室 Bedroom 基于卧室空间的私密性,将主卧、长辈房及儿童房都安排在二楼。主卧的墙面与整体居室保持统一,用沉稳的灰色调营造出宁静的氛围。考虑到女主人的收纳、储物需求,在有限的空间尺度中设计了衣帽间,提高空间利用率,也增强了居住舒适度。 长辈房及儿童房延续居室的舒适性,长辈房中小巧别致的艺术品与柔和的调性恰到好处地融为一体 ,还原长辈一个温馨且富含韵味的空间。 粉色主题的女儿房,将孩子的喜好释放得淋漓尽致。装饰画及床头摆放的小物件,为空间增添更多童趣。 紧邻卧室的休闲阳台,将空间还给自己。一杯咖啡、一本书,在惬意自在中呈现出丰富的生活模样。
  • 图片
  • 图片
  • 图片
  • 图片
  • 图片
  • 图片
  • 图片
  • 图片
  • 图片
  • 图片
  • 图片
  • 图片
  • 图片
  • 图片
  • 图片
  • 图片
  • 图片
  • 图片
  • 图片
  • 图片
  • 图片
  • 图片
  • 图片
  • 图片
  • 图片
  • 图片
  • 图片
  • 上一个 下一个
    2024第八届金腾奖 私宅(独居)丨私宅(多人居)丨餐饮丨酒店丨办公丨商业丨公共丨公益丨人物丨NEW100 jintengAWARD(小金_金腾奖组委会) 广州市海珠区琶洲大道68号华新中心21楼
    金腾奖视频号 金腾奖小红书号 监制:刘译遥
    统筹:张俊媚
    运营:赖钰炼 曹凯月 刘芳棋 小金
    新媒体:王贝贝 严洁 张文一
    技术:黄天佑 丁德昌
    最终解释权归金腾奖主办方所有