阅嘉陵
作品详情
  • Details of the work 标题横线
    头像或者logo
    图片 瑞思空间设计 贰拾柒设计经纪特约推荐
    城市:重庆
    公司:瑞思空间设计
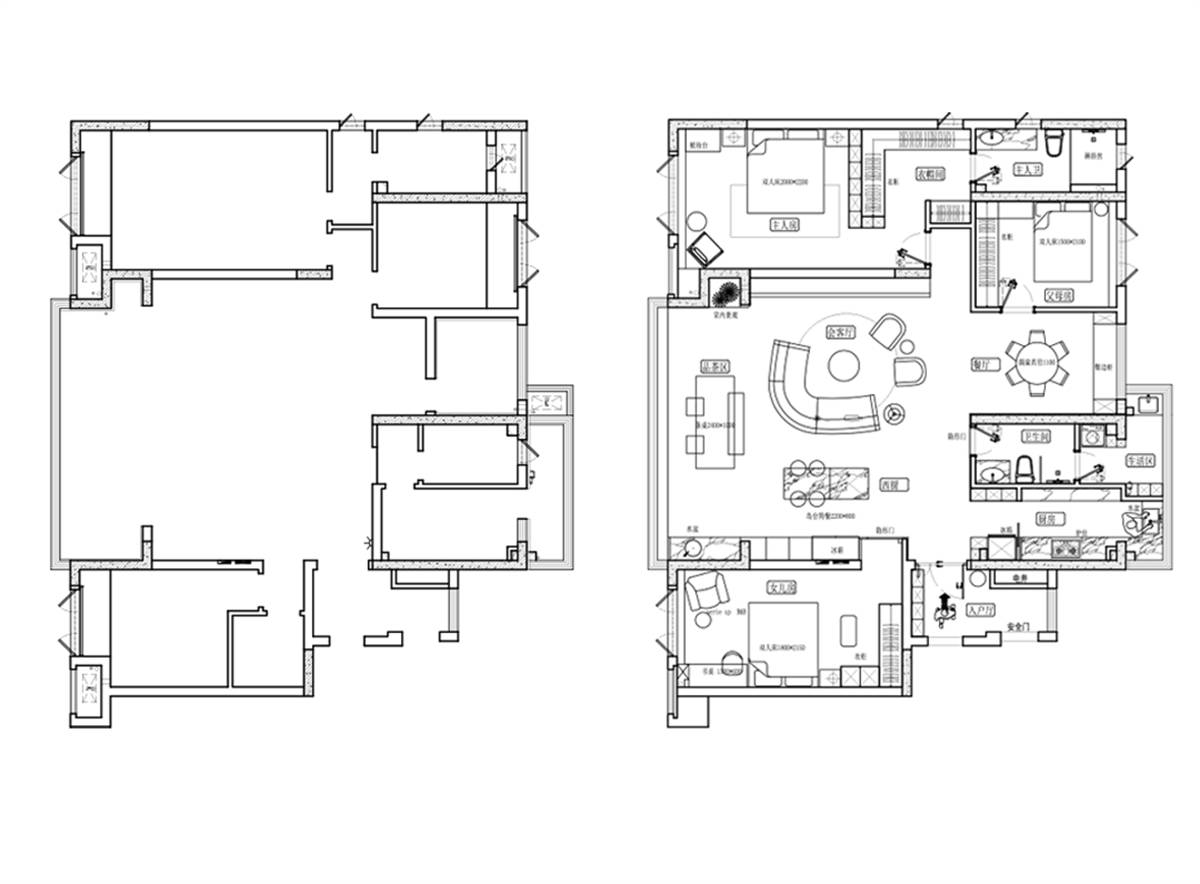
    参赛作品: 阅嘉陵
    空间类型:别墅
    个人/公司简介:
    设计师的角色正如导演或音乐家,所写所现即为阐述自己对生活、艺术的理解。 瑞思空间设计的思维与实践皆遵循于交互的视角,以更加多面的思维、严谨的态度和专业的方法调配设计所及之元素,旨在打造每一个项目其专属的流动时光与生命。
    设计说明 | Design Instruction
  • 家宅一定是基于对居住者的充分了解之上进行设计构建,因为空间会随着岁月的流逝、见证、记录、留下美好的记忆。 本案在充分了解业主需求及户型特点之后,通过现代元素的运用与融入,以设计之言构建空间之美,让光 、材质及空间以其本真的形象呈现,并结合原始户型的采光优势,让业主可以住进日光里,沐浴阳光下,与自然共处。 空间的格局及动线被重新布局,打破传统的布局方式,我们让人在空间里的焦点,随着光的变化而流动,生活场景随着光影的流动进行切换。 作为链接一家人的情感之所,客厅承载了家庭生活、社交空间、视听娱乐等多个功能,所以在软装的选择上,摒弃了三点一线的布置方式,采用更有围合感的家具布置,让空间丰满富有调性。 空间以开放状态打破孤立感,让整个公区突破原本户型割裂的分布,彼此延伸、交错。在有限的面积中设置2米的大岛台,实现餐厨多元的使用场景和功能。 定制的多功能茶桌以简洁的弧形线条彰显出属于现代的艺术感,安置于此,供主人会客品茗,一壶一茶一友,搭配窗外的绿意令人内心更觉安宁。 光的点缀让这个餐区空间因此得到延伸、扩展,圆形餐桌为家人团聚提供更多可能,承载更多的欢声笑语。fols的灯在空间中玩味肌理,创造出丰富的视觉感,慢酌生活本味,于细节处雕刻优雅的用餐时光。 餐边柜与窗户结合,半墙的矮柜设计,更加的符合人体工程学,方便碗筷等餐具的拿取。 空间的自由与舒适娓娓道来,卧室就应该是充满松弛感的。木色与绿色的搭配,是自然与柔和的代名词,色彩的穿插打破了单调感,柔软舒适的床品,让屋主在疲惫一天后得到充分的放松。 区别于全封闭式的柜门设计,我们希望衣帽间区域是更为意式的存在,开放式的挂衣区,颜值与功能性并存,空间仿佛变身成为了一个舞台,穿搭也成为了一件有趣的事情。 次卧我们想要保持调性上的连贯感,空间不做过多装饰,以现代作为空间的风骨,舒适的空间尺度,更适合休憩,再贴合其个性需求进行布设安排。 配色上依旧是选择了与全屋呼应的绿色作为点缀,朴拙而亲切,不喧嚣也没有扰人心的物件,给房间留有充足的余白空间。
  • 图片
  • 图片
  • 图片
  • 图片
  • 图片
  • 图片
  • 图片
  • 图片
  • 图片
  • 图片
  • 图片
  • 图片
  • 图片
  • 图片
  • 图片
  • 图片
  • 图片
  • 图片
  • 图片
  • 图片
  • 图片
  • 图片
  • 图片
  • 图片
  • 图片
  • 图片
  • 图片
  • 图片
  • 图片
  • 图片
  • 图片
  • 图片
  • 上一个 下一个
    2024第八届金腾奖 私宅(独居)丨私宅(多人居)丨餐饮丨酒店丨办公丨商业丨公共丨公益丨人物丨NEW100 jintengAWARD(小金_金腾奖组委会) 广州市海珠区琶洲大道68号华新中心21楼
    金腾奖视频号 金腾奖小红书号 监制:刘译遥
    统筹:张俊媚
    运营:赖钰炼 曹凯月 刘芳棋 小金
    新媒体:王贝贝 严洁 张文一
    技术:黄天佑 丁德昌
    最终解释权归金腾奖主办方所有