Curved Bright
作品详情
  • Details of the work 标题横线
    头像或者logo
    图片 仧适设计
    城市:厦门
    公司:仧适设计
    参赛作品: 弧光
    空间类型:公寓(150㎡以下)
    个人/公司简介:
    仧[cháng],取义:(1)指时间相隔距离大;(2)长久,永久。 适[shì],取义:(1)符合,适合。(2)舒适,满足;(3)正好,恰好。 仧适,谐音“尝试”,意指设计思路不断尝试、创新,但始终以长久的“适用、合适、舒适”为设计准则。 仧适设计,专注住宅,相信空间氛围可以熏陶人的品性体现居住者的气质,空间功能会影响人的生活习惯甚至作息。 我们在每个作品中畅想生活画面,像拍一场电影,有家人的和乐相依、独处的自由安逸,甚至特写一隅烛光的呼吸、沏茶饮酒的虚影。那是他们自洽的生活,不盲从大流,以自身舒适为尺度,拥有长期主义的「家」。
    设计说明 | Design Instruction
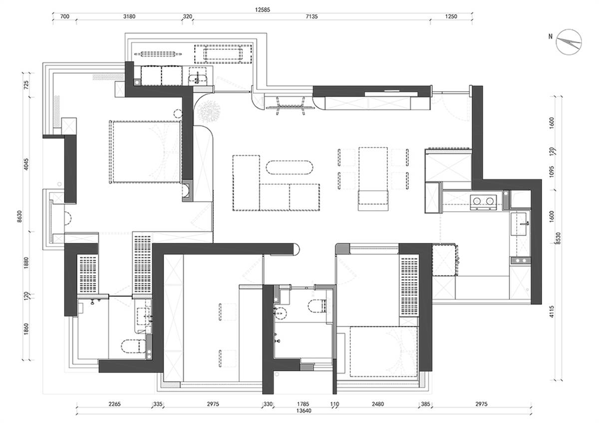
  • 餐边柜上方有一道大横梁,弧线造型的吊顶,很好地解决了层高过渡。 客厅一整面的黑色柜体,立稳根基。靠近大门的位置预留了挂包挂外套的区域,下方抽屉同时起着换鞋凳的作用。 客餐区的空调置于木质储物柜上方,将更宽松的层高留给主要行动区域。侧出侧回的空调深度超过了储物柜,吊顶设计反弧造型,自然衔接。 落地电视如画如境,置于窗前,有效避免了画面反光。电视左侧的弧形柜体,是弱电设备的机电中心,网络、影音隐于柜内,通过侧板开孔,沿着电视支脚与之相连,减少一切不必外露的琐碎。 吊顶、柜体、门扇,都采用了弧形元素,相互呼应,灵动温润,即使有大面积深色的硬装色调,也尽显柔和。 主卧门洞移动,过道多出一排浅柜,延伸至梳妆区,囊括包柜、梳妆柜的功能。 床尾原墙很短,部分床体面窗,体感失衡。我们增加了一组收纳柜,侧面贴石膏板统一滚刷涂料,确保整体性,延长墙面宽度,弥补收纳压力的同时规整了空间。 儿童房的衣柜设计了弧形拼色,颜色衔接处即是柜门拉手槽。随着弧形的起伏,拉手也有高低,孩子慢慢长大,关于自己的穿搭,甚至是生活,也会越来越多地掌控在自己手中。
  • 图片
  • 图片
  • 图片
  • 图片
  • 图片
  • 图片
  • 图片
  • 图片
  • 图片
  • 图片
  • 图片
  • 图片
  • 图片
  • 图片
  • 图片
  • 图片
  • 图片
  • 图片
  • 图片
  • 图片
  • 图片
  • 图片
  • 图片
  • 图片
  • 图片
  • 图片
  • 图片
  • 图片
  • 图片
  • 图片
  • 上一个 下一个
    2024第八届金腾奖 私宅(独居)丨私宅(多人居)丨餐饮丨酒店丨办公丨商业丨公共丨公益丨人物丨NEW100 jintengAWARD(小金_金腾奖组委会) 广州市海珠区琶洲大道68号华新中心21楼
    金腾奖视频号 金腾奖小红书号 监制:刘译遥
    统筹:张俊媚
    运营:赖钰炼 曹凯月 刘芳棋 小金
    新媒体:王贝贝 严洁 张文一
    技术:黄天佑 丁德昌
    最终解释权归金腾奖主办方所有