The Border
作品详情
  • Details of the work 标题横线
    头像或者logo
    图片 仧适设计
    城市:厦门
    公司:仧适设计
    参赛作品: 造境
    空间类型:公寓(150㎡以下)
    个人/公司简介:
    仧[cháng],取义:(1)指时间相隔距离大;(2)长久,永久。 适[shì],取义:(1)符合,适合。(2)舒适,满足;(3)正好,恰好。 仧适,谐音“尝试”,意指设计思路不断尝试、创新,但始终以长久的“适用、合适、舒适”为设计准则。 仧适设计,专注住宅,相信空间氛围可以熏陶人的品性体现居住者的气质,空间功能会影响人的生活习惯甚至作息。 我们在每个作品中畅想生活画面,像拍一场电影,有家人的和乐相依、独处的自由安逸,甚至特写一隅烛光的呼吸、沏茶饮酒的虚影。那是他们自洽的生活,不盲从大流,以自身舒适为尺度,拥有长期主义的「家」。
    设计说明 | Design Instruction
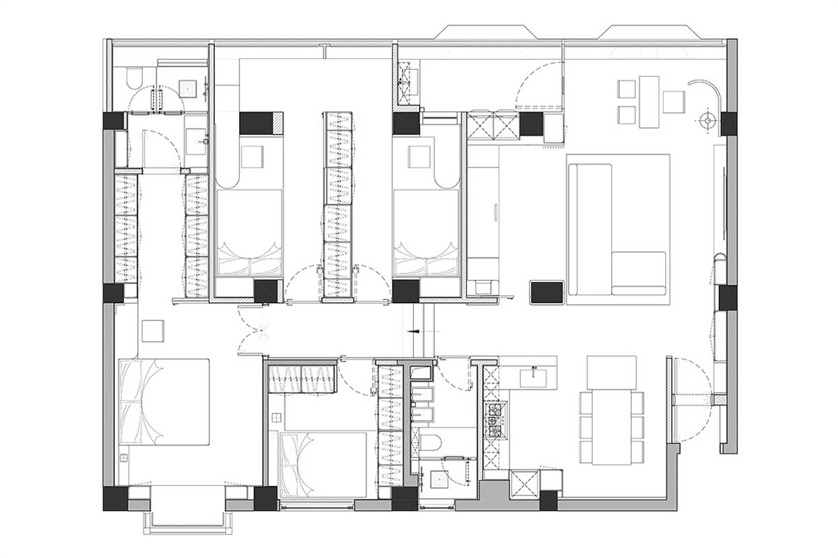
  • 这是一个错层户型,没有承重墙,构造柱区隔出原户型的三房两厅,一侧是超长露台,没有顶棚封窗的部分,基本是处于“浪费”的状态。 屋主一家五口,儿女双全,长辈也一同居住。通过墙体的重构、露台与室内兼并扩容,我们将新的户型结构变为4.5房,外露的柱子则通过造型弱化美化。 硬装材质以橡木饰面、灰调石材,搭配黑色系的材料,极尽克制的中性美学,能容纳更长远的生活变化。 【玄关】 原户型的大门和邻居紧邻,我们将大门退进室内,从室内玄关置换为室外玄关,可以实现:门外换鞋、临时置物功能。 【餐厨】 餐厅与玄关间墙,融合了解构主义的设计手法。将一面墙,分解再构成,体块大小的对比制造出视觉冲突。顶上预留光源,引导视线向上延伸。 通过橱柜立面、吊顶顶面的材质关联,厨房在联通开放的空间中形成独立的整体。横穿厨房、过道、客厅的大梁被饰面遮蔽,过道错层上行的层高单独释放出来也不至于突兀。 【客厅】 客厅吊顶通过脱缝、弧形过渡,把两道大梁的硬伤风格化。玄关柜的体块穿插,又将原本被梁顶分割的空间做了关联,重新形成整体。 原本的客厅与阳台有明显的区域界限,拆除墙垛后原先的阳台作为客厅一部分的泡茶区,进门视线得到最大的延伸。 沙发背后的空间,以构造柱为分界,作为客厅一部分的同时,兼具客卧的功能。日常敞开拉帘,是休闲的一角,整体公区开阔通透。模块化的沙发背向沙发,与卡座形成围合,便是面对面交流的聚会布局。拉帘闭合,关上口袋门,再拉出卡座下的折叠床,夜谈结束,即刻就寝。 【儿童房】 儿童房通过衣柜作为隔断一分为二,“Z”字结构的衣柜,与空调合并设计,双面使用双向出风。提高空间利用率。地台床+木质盒子的构造,仿佛拥有了睡眠舱,满满的安全感。 联通两间儿童房的位置,是孩子们共用的活动区,需要专注时,关上移门,就是各自独立的空间。
  • 图片
  • 图片
  • 图片
  • 图片
  • 图片
  • 图片
  • 图片
  • 图片
  • 图片
  • 图片
  • 图片
  • 图片
  • 图片
  • 图片
  • 图片
  • 图片
  • 图片
  • 图片
  • 图片
  • 图片
  • 图片
  • 图片
  • 图片
  • 图片
  • 图片
  • 上一个 下一个
    2024第八届金腾奖 私宅(独居)丨私宅(多人居)丨餐饮丨酒店丨办公丨商业丨公共丨公益丨人物丨NEW100 jintengAWARD(小金_金腾奖组委会) 广州市海珠区琶洲大道68号华新中心21楼
    金腾奖视频号 金腾奖小红书号 监制:刘译遥
    统筹:张俊媚
    运营:赖钰炼 曹凯月 刘芳棋 小金
    新媒体:王贝贝 严洁 张文一
    技术:黄天佑 丁德昌
    最终解释权归金腾奖主办方所有