Finite And Infinite Games
作品详情
  • Details of the work 标题横线
    头像或者logo
    图片 张渲琪
    城市:重庆
    公司: 十二分空间设计
    参赛作品: 有限与无限的游戏
    空间类型:公寓(150㎡以下)
    个人/公司简介:
    十二分空间设计主案设计师:设计的本源是对甲方的一场阅读跟理解,然后自然而然地去创造。 上海国际设计周新锐设计奖(2022-2023年度省际榜) 红棉设计奖-2023年度室内设计奖 2023年度老宅新生重庆十大改造设计师 金堂奖年度杰出零售空间设计
    设计说明 | Design Instruction
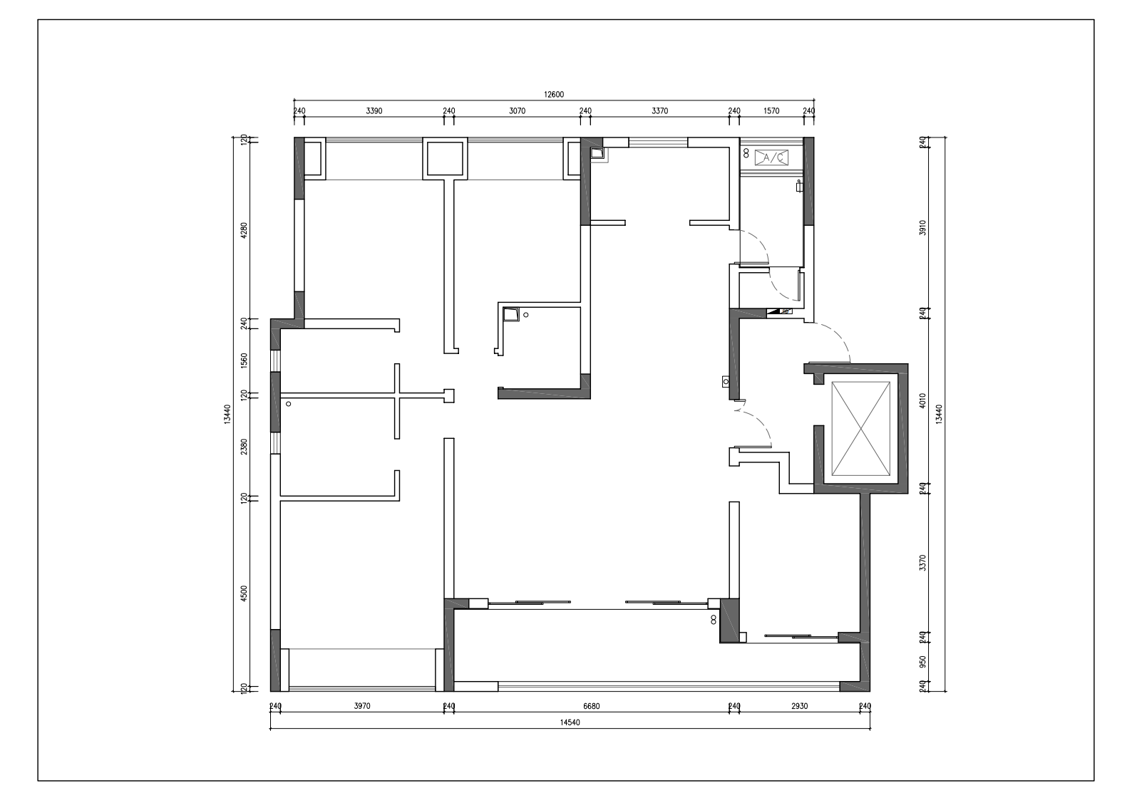
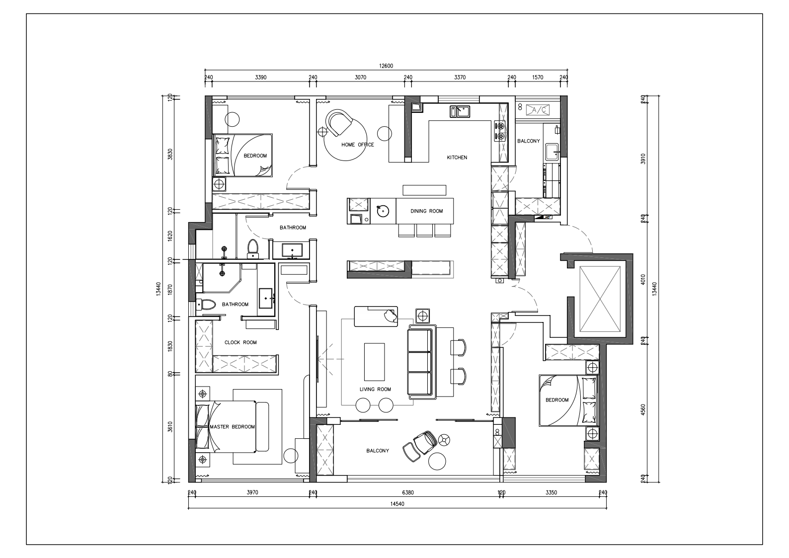
  • 项目位于渝北区壹江郡,定位为休闲养老的城市度假房。常住四人,夫妻俩和两个儿子。平时为方便小孩读书住学区房,周末跟节假日会相聚在这里。所以主要的诉求是提高公共空间的开阔性跟交流性,增加家庭互动的场景感,让每个家庭成员都能在家里舒服自在地享受生活,以此为出发点来塑造新的空间形态,满足每位家庭成员观影、做饭、就餐、阅读、写字的不同需求。 由于家里男性成员比较多,整个空间处理得更加干净干练,易于后期维护打理。同时也满足女业主想要呈现艺术性、文学性的美学沉淀感,优雅、沉静、放松;不拘泥于当下的流行趋势,让家在接下来的岁月里不断更新,焕发新的生命力。 结构改造: 1.将原有的四房三卫改为三房两卫,舍弃一个卧室跟卫生间增加公共区域的功能使用性,新的洄游动线满足不同家庭成员在同一空间观影、做饭、就餐、阅读、写字的需求,以此形成不同场景感。 2.重新分配两个卫生间的尺度大小,适当缩小儿童房面积,增加主卧衣帽间功能。 3.另一儿童房尺寸重新调配,增加客厅展示柜,营造有美感的文学氛围,满足业主看书学习的需求。 4.增加餐厨区电器容纳量,利用承重墙及换气道增加收纳空间及展示区域,再次强调洄游动线。
  • 图片
  • 图片
  • 图片
  • 图片
  • 图片
  • 图片
  • 图片
  • 图片
  • 图片
  • 图片
  • 图片
  • 图片
  • 图片
  • 图片
  • 图片
  • 图片
  • 图片
  • 图片
  • 图片
  • 图片
  • 图片
  • 图片
  • 图片
  • 图片
  • 图片
  • 图片
  • 图片
  • 图片
  • 上一个 下一个
    2024第八届金腾奖 私宅(独居)丨私宅(多人居)丨餐饮丨酒店丨办公丨商业丨公共丨公益丨人物丨NEW100 jintengAWARD(小金_金腾奖组委会) 广州市海珠区琶洲大道68号华新中心21楼
    金腾奖视频号 金腾奖小红书号 监制:刘译遥
    统筹:张俊媚
    运营:赖钰炼 曹凯月 刘芳棋 小金
    新媒体:王贝贝 严洁 张文一
    技术:黄天佑 丁德昌
    最终解释权归金腾奖主办方所有