Benmu
作品详情
  • Details of the work 标题横线
    头像或者logo
    图片 江右天工装饰 江西省室内装饰协会特约推荐
    城市:南昌
    公司:江右天工装饰
    参赛作品: 本木
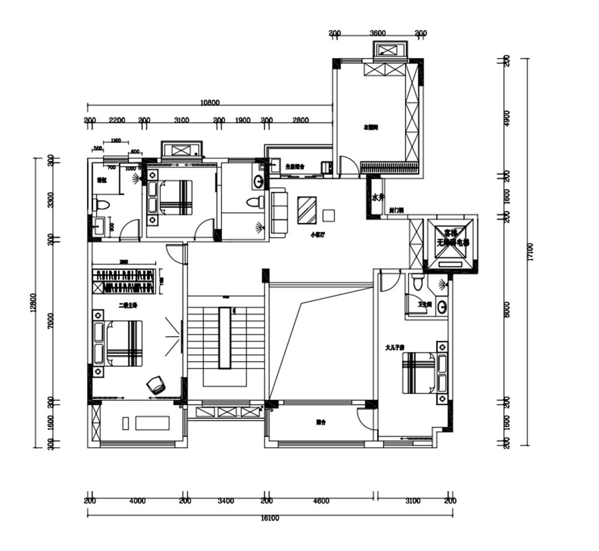
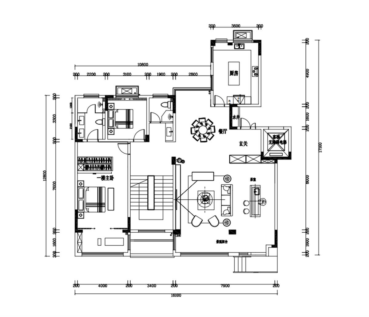
    空间类型:别墅
    个人/公司简介:
    本公司是一家集装饰设计、工程施工、材料配送于一体的综合性企业。主要从事住宅、公寓、办公、商业、酒店、学校、医院等场所的装修设计和施工。公司经瑞昌市市场监督管理局批准注册,已取得建筑装饰装修工程专业承包二级资质。公司实行从咨询开始,为您提供创意草案、测量、设计、选材、施工、陈设等服务;定期回访,两年保修,终生维护的全程服务。我们将精心为您营造一个温馨,舒适,环保的工作、生活环境。将经济、实用融于美、艺术、文化的创造之中,呈献给您一个舒适的氛围与空间,将给您带来不同的生活品味。公司拥有一批尽心而专业的管理团队和施工队伍,有固定办公场所,从根本上保证了质量与售后。
    设计说明 | Design Instruction
  • 家的本质,是一个让人放松惬意的场所,是灵魂栖息的家园。 本案位于瑞昌明珠花园,设计师充分考虑业主需求,将素雅色调与简约线条作为整体基调,采用大块面的设计手法,营造出静谧简约、舒适自在的理想家。 挑空的客厅设计增加空间的互动性,双重落地窗带来充足的采光效果,空间通透又富有层次。将茶室安置在沙发后面,打造出诗意品茶空间。以茶会友,以茶待客,是中国传统待客之礼。 大理石与木质的搭配,诠释了简约轻奢的格调,在光线的映衬下,奢华大气的空感扑面而来。将楼梯位置进行更改,使公区整体空间动线流畅、结构方正,同时空间更加通透明亮 餐厅延续了客厅的色调,通过线条、形状以及平面的修饰,更显现代主义简约格调。金属材质的运用恰到好处,增添一丝梦幻与科技,为空间赋予独特的高级感。 一处角落,简雅温润;一缕阳光,温暖肆意,一个简单的空间,却犹如心灵的归属,舒适自在、悠闲有趣,有种安然自得的惬意与氛围。
  • 图片
  • 图片
  • 图片
  • 图片
  • 图片
  • 图片
  • 图片
  • 图片
  • 图片
  • 图片
  • 图片
  • 图片
  • 图片
  • 图片
  • 图片
  • 图片
  • 图片
  • 图片
  • 图片
  • 图片
  • 图片
  • 图片
  • 图片
  • 图片
  • 图片
  • 图片
  • 图片
  • 上一个 下一个
    2024第八届金腾奖 私宅(独居)丨私宅(多人居)丨餐饮丨酒店丨办公丨商业丨公共丨公益丨人物丨NEW100 jintengAWARD(小金_金腾奖组委会) 广州市海珠区琶洲大道68号华新中心21楼
    金腾奖视频号 金腾奖小红书号 监制:刘译遥
    统筹:张俊媚
    运营:赖钰炼 曹凯月 刘芳棋 小金
    新媒体:王贝贝 严洁 张文一
    技术:黄天佑 丁德昌
    最终解释权归金腾奖主办方所有