听香水榭
作品详情
  • Details of the work 标题横线
    头像或者logo
    图片 TO+DESIGN 长沙青设联特约推荐
    城市:长沙
    公司:TO+DESIGN
    参赛作品: 听香水榭
    空间类型:公寓(150㎡以下)
    个人/公司简介:
    兔加设计
    设计说明 | Design Instruction
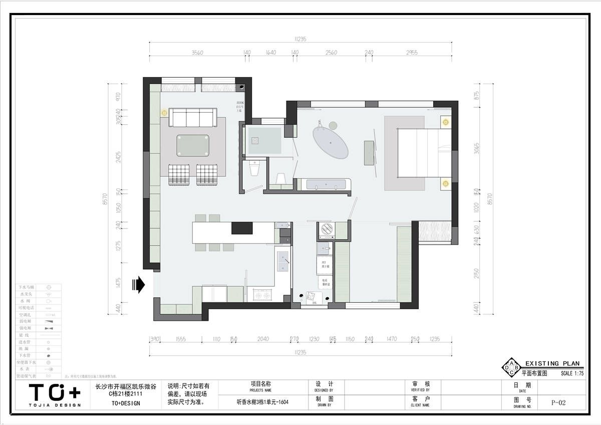
  • “家,是世界上唯一隐藏人类缺点与失败的地方,它同时也蕴藏着甜蜜的爱。”当踏入这个精心打造的空间,就如同走进了一个充满爱与美好的世界。客户小哥在众多小红书设计师的案例中邂逅了我们工作室,而第一次参观工作室,就被整体搭配深深吸引。 在平面布局上,我们大胆创新,将原本的小三房打通,重构为一室一厅的格局。客厅、餐厅、中厨、西厨连贯成 KDL 客餐厅一体化,空间豁然开朗,视觉上营造出大平层的宽敞大气,动静分区明晰,仿若一曲和谐的生活乐章。同时,巧妙地将原有不足3平的卫生间一分为二,一个是公区的马桶区,一个是主卫的淋浴及马桶,极大地提升了使用的便利性。 推开家门,玄关处那克莱因蓝的装饰造型柜,搭配内凹灯光槽的几何造型,宛如一颗璀璨的星辰,不仅美观独特,还提供了充裕的收纳空间,一进门便给予人强烈的视觉冲击,仿佛在诉说着生活的无限可能。 厨房采用开敞式设计,米色墙砖营造温馨氛围;吊柜的金属不锈钢门板彰显现代质感;3米的大岛台更是实用与美观的完美结合。 客厅从进门伊始,整面墙体的柜子犹如一幅绵延的画卷,拉伸了空间感。水泥清水板与克莱因蓝的组合造型独具个性,不羁中透着优雅。立体斜面窗框的设计,为客厅增添了丰富的光影效果和独特的艺术氛围。 主卧内,三块斜向的克莱因蓝玻璃隔断宛如灵动的舞者,巧妙地划分了泡澡区和睡眠区,形成独特的空间分隔,让心灵在静谧与活力之间自由穿梭。蓝色对比色琥珀橙的树脂浴缸为泡澡区增添了活泼与时尚的气息。床头和客厅的窗框选用复古树瘤皮,那岁月的纹理展现出复古与自然的韵味,仿佛在讲述着光阴的故事。飘窗拆除后增加了主卧的内阳台,搭配绿色棕榈树灯及黄橙调的 DEDAR 复古虎纹艺术沙发,营造出舒适惬意的休闲角落,宛如一片宁静的绿洲,让疲惫的灵魂得以栖息。 整体设计融合了现代与复古元素,色彩搭配大胆而和谐,材质选择精致且考究。每一处细节,都如同一朵绽放的花朵,在满足功能性需求的基础上,打造出一个充满个性与品质的理想家园,让生活在这里的每一天都如诗如画,充满生机与活力,尽享高级而松弛的美好时光。
  • 图片
  • 图片
  • 图片
  • 图片
  • 图片
  • 图片
  • 图片
  • 图片
  • 图片
  • 图片
  • 图片
  • 图片
  • 图片
  • 图片
  • 上一个 下一个
    2024第八届金腾奖 私宅(独居)丨私宅(多人居)丨餐饮丨酒店丨办公丨商业丨公共丨公益丨人物丨NEW100 jintengAWARD(小金_金腾奖组委会) 广州市海珠区琶洲大道68号华新中心21楼
    金腾奖视频号 金腾奖小红书号 监制:刘译遥
    统筹:张俊媚
    运营:赖钰炼 曹凯月 刘芳棋 小金
    新媒体:王贝贝 严洁 张文一
    技术:黄天佑 丁德昌
    最终解释权归金腾奖主办方所有