静谧之居:心灵的栖息之所
作品详情
  • Details of the work 标题横线
    头像或者logo
    图片 TO+DESIGN 长沙青设联特约推荐
    城市:长沙
    公司:TO+DESIGN
    参赛作品: 静谧之居:心灵的栖息之所
    空间类型:公寓(150㎡以下)
    个人/公司简介:
    兔加设计
    设计说明 | Design Instruction
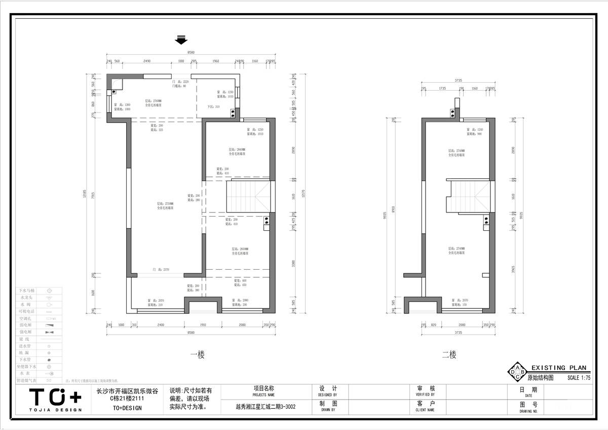
  • “陆上的人喜欢寻根问底,虚度了大好光阴” 在喧嚣的世界中,这位自带文艺气息的业主小哥,宛如一位遗世独立的诗人,追寻着内心的宁静与纯粹。他作为一个典型的“i人”,对静谧有着独特的向往,而这座精心设计的居所,便是他心灵的庇护所。 步入室内,首先映入眼帘的是厨房与餐厅之间那独具匠心的小吧台。吧台之上,折叠窗宛如一幅灵动的画卷,轻轻推开,两个空间瞬间交融,互动的趣味油然而生。烹饪时的烟火气息与用餐时的温馨氛围在此交织,为日常生活增添了一抹别样的色彩。 客厅的设计打破传统,摒弃了电视背景墙的束缚,以去客厅化的理念营造出轻松而富有松弛感的氛围。在这里,软装家具不再受规则的限制,可随心搭配、随意摆放,每一次的调整都能呈现出业主当下怡然自得的心情,仿佛在这片空间中,时间也放慢了脚步。 书房作为开放且互动的空间,宛如一个知识的海洋与心灵的港湾。静谧的办公区,为专注工作提供了理想的环境;而那悠闲的放松小角落,更是心灵的栖息之地。角落中的月亮悬窗,与阳台相互呼应,让自然的光影与微风悄然入室,伴随业主在冥想中探寻内心的深处,享受身心的愉悦与放松。 踏上二楼,一边是极具收纳功能的衣帽间和主卫空间,展现出对生活细节的精心呵护;另一边则是温馨的主卧睡眠区域,为疲惫的身心提供了一个宁静的归宿。 在这座充满诗意与静谧的居所中,每一处设计都仿佛是业主内心世界的外在延伸,让他在喧嚣的世界中,拥有一片属于自己的宁静天地,尽情享受阅读与冥想带来的心灵滋养。
  • 图片
  • 图片
  • 图片
  • 图片
  • 图片
  • 图片
  • 图片
  • 图片
  • 图片
  • 图片
  • 图片
  • 图片
  • 图片
  • 图片
  • 上一个 下一个
    2024第八届金腾奖 私宅(独居)丨私宅(多人居)丨餐饮丨酒店丨办公丨商业丨公共丨公益丨人物丨NEW100 jintengAWARD(小金_金腾奖组委会) 广州市海珠区琶洲大道68号华新中心21楼
    金腾奖视频号 金腾奖小红书号 监制:刘译遥
    统筹:张俊媚
    运营:赖钰炼 曹凯月 刘芳棋 小金
    新媒体:王贝贝 严洁 张文一
    技术:黄天佑 丁德昌
    最终解释权归金腾奖主办方所有