Warmth and Time
作品详情
  • Details of the work 标题横线
    头像或者logo
    图片 TEYU设计 长沙青设联特约推荐
    城市:长沙
    公司:TEYU设计
    参赛作品: 安暖与岁月
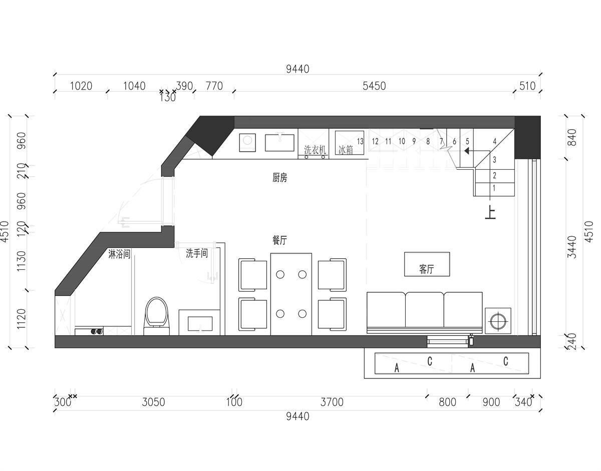
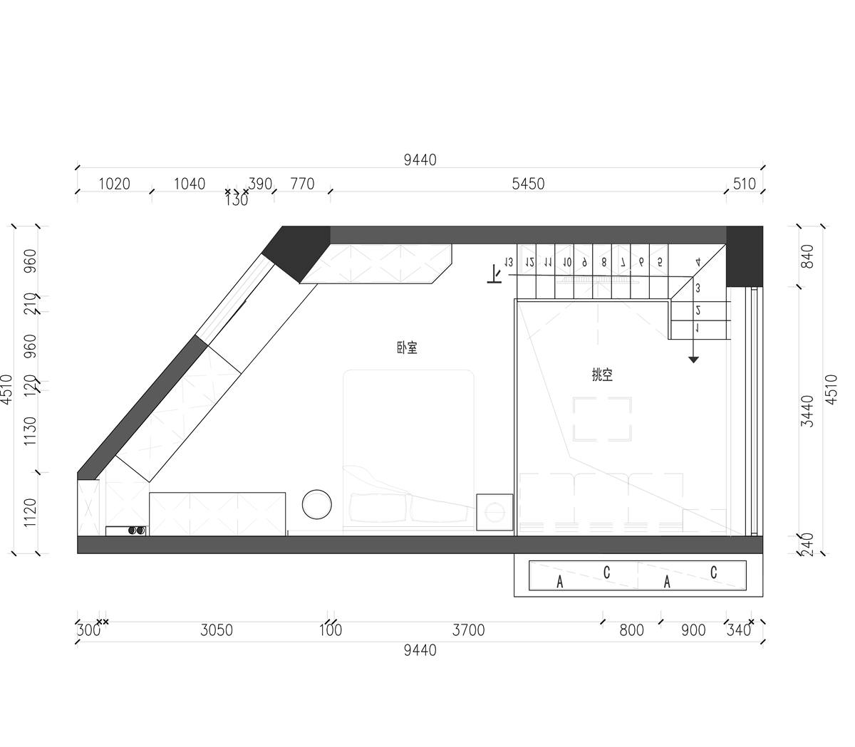
    空间类型:公寓(150㎡以下)
    个人/公司简介:
    致力于针对室内设计、环境设计等一体化的综合性专业设计公司。主要从事精致私宅、精品商业空间、办公空间、高档别墅等设计项目,我们致力于全案服务模式,从设计创意、工程技术管理到软装、设计、实施,能够满足客户对全面设计服务,以及最为完善的全案设计服务的需求,从而形成了鲜明的经营特色与独有的市场竞争力,并能有效控制最终的设计落地、品质把控。
    设计说明 | Design Instruction
  • 简约的自然色调透露着温柔,没有过多的复杂的色彩,全屋以温柔的奶油色为基调,高级温暖治愈的理想之宅,弧线的穿插,使空间温柔而富有灵性,简约不简单,妥妥的氛围感,以纯净温馨的奶油色调为主色调,去掉多余的元素,清爽的高级的配色,简约而不失质感,全屋木地板,搭配温馨舒适的色调,圆形的桌几融入,空间充满随性的舒适感,阳光顺势洒满屋内,若隐若现的光影,回归原始的温柔,展现优美的造型,原木色遇上奶油风,营造出一种平静的氛围,甜而不腻,优雅浪漫,温柔治愈。柔和的色调和细腻的质感,原木材质的融入,纹理清晰自然空间散发出温馨的气息,温暖而柔和,柔和的光线,让人感觉温暖舒适,简约的模块化沙发,让人柔软舒适,舒展身体尽情放松,躺在沙发上目光,所及都是美的,是家中最温馨和舒适的角落。
  • 图片
  • 图片
  • 图片
  • 图片
  • 图片
  • 图片
  • 图片
  • 图片
  • 图片
  • 图片
  • 图片
  • 图片
  • 图片
  • 图片
  • 图片
  • 图片
  • 图片
  • 图片
  • 图片
  • 上一个 下一个
    2024第八届金腾奖 私宅(独居)丨私宅(多人居)丨餐饮丨酒店丨办公丨商业丨公共丨公益丨人物丨NEW100 jintengAWARD(小金_金腾奖组委会) 广州市海珠区琶洲大道68号华新中心21楼
    金腾奖视频号 金腾奖小红书号 监制:刘译遥
    统筹:张俊媚
    运营:赖钰炼 曹凯月 刘芳棋 小金
    新媒体:王贝贝 严洁 张文一
    技术:黄天佑 丁德昌
    最终解释权归金腾奖主办方所有