Returning to Canada
作品详情
  • Details of the work 标题横线
    头像或者logo
    图片 TEYU设计 长沙青设联特约推荐
    城市:长沙
    公司:TEYU设计
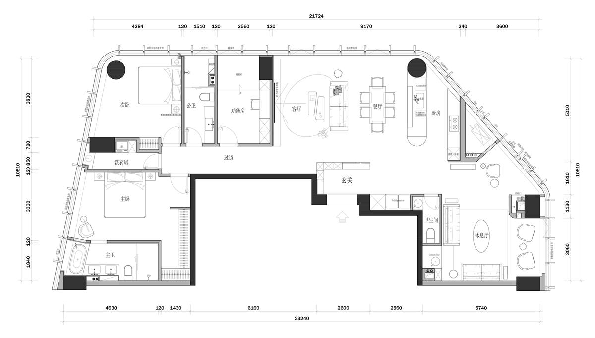
    参赛作品: 返程的加拿大
    空间类型:公寓(150㎡以下)
    个人/公司简介:
    致力于针对室内设计、环境设计等一体化的综合性专业设计公司。主要从事精致私宅、精品商业空间、办公空间、高档别墅等设计项目,我们致力于全案服务模式,从设计创意、工程技术管理到软装、设计、实施,能够满足客户对全面设计服务,以及最为完善的全案设计服务的需求,从而形成了鲜明的经营特色与独有的市场竞争力,并能有效控制最终的设计落地、品质把控。
    设计说明 | Design Instruction
  • 归真返璞,多一点木质生活 美木生活,初心怡家 木本藏心,妙手得之木美家美,初心之爱原木而居,唯有初心乐享初心自在阳光生活原木为心之所之向 本案常住人口为两人 年轻业主,夫妻从加拿大回国根据他们的生活需求致力于打造人与自然和谐共生,回归自然的空间 设计初衷是“一个属于自己的精神栖息地” 我们认为城市住宅所营造的场域常常是相对内向的 试图在闹市中寻找一片属于他们的寂静 利用极简的线条,温润的木色,减少过多复杂的装饰 打造纯粹而抽象的景象,追求平静、释然的精神世界 设计亮点 玄关的增设缓冲视觉效果的同时,增加收纳功能 湖厅、洗衣房的增设方案上通过对设备间及厨房位置进行变动获得更多的观湖区域以及增加了一个洗衣房的空间 客餐厅空间采用开放式设计 三分离卫生间延伸大尺度,开拓视野大面积开窗,使空间更加大气灵动明亮 设计过程对接细致 整个设计对接流程长达三个月 设备(地暖新风空调)及智能、灯光设计等前置 减少施工流程变动 1.多功能区域: 一物多用,一室多用。 湖厅同时引入沙发、书柜、水吧台 以及实现公共核心区与书房的功能复合 温柔静谧的开放空间 充满时尚感和舒适性 感受空间中自然的呼吸 打破空间和自然的壁垒,让光线自然流动 客餐厅区域: 运用原木色和白色拼色设计 空间视觉上大气又高级 客餐厅选用无主灯设计 是空间更具有通透感 异形的落地灯,给横平竖直的空间增添一抹趣味 餐厅原木色的家具搭配 呈现出素雅而温馨的美感 大面积留白 保持整个空间的开阔、通透、干净 简洁胜于繁复 极简极为丰富 自然材质打造治愈空间 留白为了让光线更好地游走于空间,让灵魂得以休憩
  • 图片
  • 图片
  • 图片
  • 图片
  • 图片
  • 图片
  • 图片
  • 图片
  • 图片
  • 图片
  • 图片
  • 图片
  • 图片
  • 图片
  • 图片
  • 图片
  • 图片
  • 图片
  • 图片
  • 图片
  • 图片
  • 图片
  • 图片
  • 图片
  • 图片
  • 图片
  • 图片
  • 图片
  • 图片
  • 图片
  • 上一个 下一个
    2024第八届金腾奖 私宅(独居)丨私宅(多人居)丨餐饮丨酒店丨办公丨商业丨公共丨公益丨人物丨NEW100 jintengAWARD(小金_金腾奖组委会) 广州市海珠区琶洲大道68号华新中心21楼
    金腾奖视频号 金腾奖小红书号 监制:刘译遥
    统筹:张俊媚
    运营:赖钰炼 曹凯月 刘芳棋 小金
    新媒体:王贝贝 严洁 张文一
    技术:黄天佑 丁德昌
    最终解释权归金腾奖主办方所有