Klein Blue accents
作品详情
  • Details of the work 标题横线
    头像或者logo
    图片 TEYU设计 长沙青设联特约推荐
    城市:长沙
    公司:TEYU设计
    参赛作品: 克莱因蓝的点缀
    空间类型:公寓(150㎡以下)
    个人/公司简介:
    致力于针对室内设计、环境设计等一体化的综合性专业设计公司。主要从事精致私宅、精品商业空间、办公空间、高档别墅等设计项目,我们致力于全案服务模式,从设计创意、工程技术管理到软装、设计、实施,能够满足客户对全面设计服务,以及最为完善的全案设计服务的需求,从而形成了鲜明的经营特色与独有的市场竞争力,并能有效控制最终的设计落地、品质把控。
    设计说明 | Design Instruction
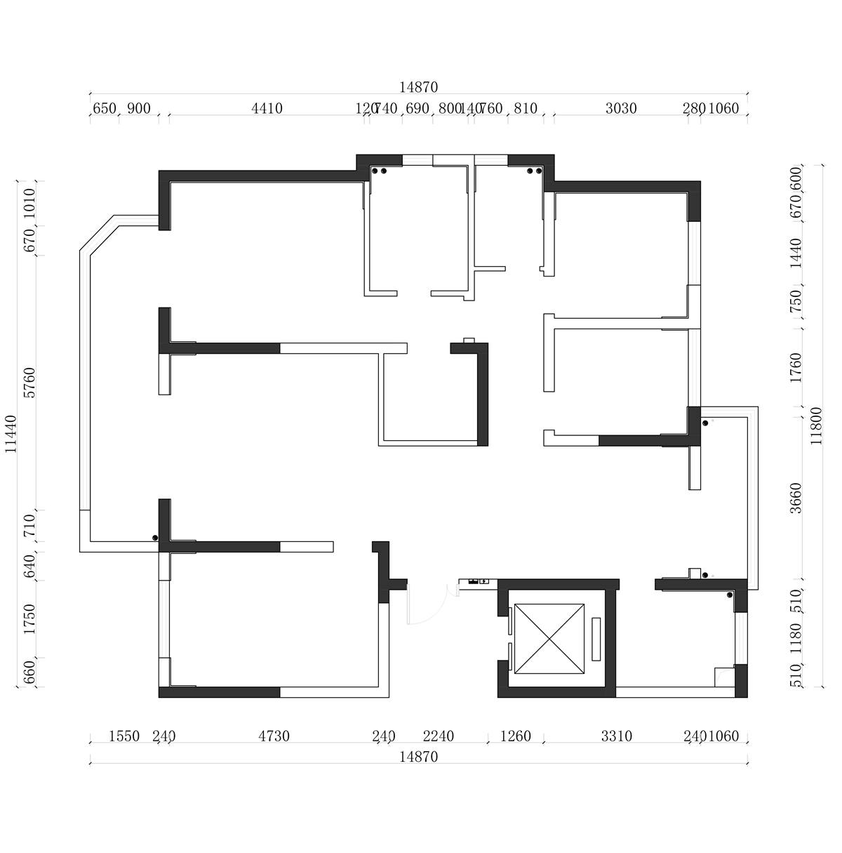
  • 本期屋主为一对年轻业主,两夫妇的职业是老师,对自己想要的空间有自己独特的见解,喜欢极简风,喜欢蓝色带来的宁静和平、放松舒适的空间。喜欢极简风格以和造型灵动的居住空间,整体空间色彩及材质上都运用了简洁一体化的设计手法,一眼望去空间开阔,无遮挡视野且极具温馨感。整体无主灯设计,时尚感十足,营造满满的高级氛围感。 以客厅入手,打开客餐厅空间,放大整体公共活动区,使居室变得大气通透,同时自然地引入户外自然光,使空间各处都能感受阳光的温暖,这是人与自然和谐共生的元素必备之一。 原始户型是三居室,但是客厅与餐厅连接灵活性较差,视线不流畅,光线不通透。在主卧区域,衣帽间区域较狭窄。公卫空间过小,不利于满足三分离,同时屋主希望有较大的储物空间。 1.入户门处做了一个悬浮式的壁炉,底部做了石材地台内嵌装饰壁炉,利用灯光和壁炉火焰等不同的光源营造玄关的温馨感,进门一眼看到的就是“景”,心情好仪式感强,让人在视觉上更为舒适。2.拆除客厅靠阳台处的墙体,餐厅处搭配一个岛台,空间中不做过多的装饰,使阳台+客餐厅+入户玄关一体,连接各个空间,让空间更大化、更具舒适性。3.主卧处拆除衣帽间门口左边的墙体 ,使主卧进门—衣帽间—休息区动线流畅,活动空间更舒适。4.公卫处,将洗漱盆放置在卫生间外面,放大内部空间,打造三分离式卫生间,既满足采光通风又能有效分隔出空间。 2.玄关区域眼前一亮,克兰因蓝+暖白色+火焰,同时搭配壁炉上的太空人艺术装置,以盒子里搭建结构,使我们投射情感,渲染温暖舒适的氛围。 3.客厅整体配色以乳白色基调为主,利落的线条配上精致的家具,将极简主义演绎的淋漓尽致,通过舒适奢侈的自然光,渲染舒适温馨的氛围,客厅背景墙通过线条与体块的纵横穿插,形成了流畅的线条,通过与空间的链接产生舒适感,让视觉上的轻盈,放松和“难以察觉”的艺术气息扑面而来,再搭配翻页造型,打破空间界限,营造节奏及韵律感。 4.餐厅处运用餐岛台一体的形式,可以最大化利用空间增强就餐仪式感,同时也将客餐厅动线分为两个平行区域,让空间更灵动更宽阔,以一个全开放式的空间,既能轻松实现餐厅、交流、聚会、学习等功能,又能解决收纳问题。 5.客卧以自然舒适为要义,色彩克制沉稳,通过轻盈的节奏和跳跃性的体块分割,试图创造细腻的情境,营造精致而不造作的画面。在选择家具时,注重简约的外观设计,选择简单、线条流畅的家具,采用极简主义风格的开门设计,让整个空间更加整洁、有序,同时提供足够的储物空间。 6.主卧在干净利落的空间中加入杂乱无章的石材纹理,以独特而具有艺术气质的软装与床头背景,让整个家充满了温馨感和创意感。顶部采用斜屋顶设计,增加层高的基础上扩宽了视野,艺术漆的运用增加了空间的氛围感,现代吊灯的设置,为大面白墙增添一丝特色。 7.儿童房整体色调偏明亮温暖为主,色彩活泼、丰富,搭配造型有趣的家具,极大程度满足儿童玩乐的心理,乳白色为主色调,搭配粉色点缀,营造温柔、治愈的氛围。
  • 图片
  • 图片
  • 图片
  • 图片
  • 图片
  • 图片
  • 图片
  • 图片
  • 图片
  • 图片
  • 图片
  • 图片
  • 图片
  • 图片
  • 图片
  • 图片
  • 图片
  • 图片
  • 图片
  • 图片
  • 图片
  • 图片
  • 图片
  • 上一个 下一个
    2024第八届金腾奖 私宅(独居)丨私宅(多人居)丨餐饮丨酒店丨办公丨商业丨公共丨公益丨人物丨NEW100 jintengAWARD(小金_金腾奖组委会) 广州市海珠区琶洲大道68号华新中心21楼
    金腾奖视频号 金腾奖小红书号 监制:刘译遥
    统筹:张俊媚
    运营:赖钰炼 曹凯月 刘芳棋 小金
    新媒体:王贝贝 严洁 张文一
    技术:黄天佑 丁德昌
    最终解释权归金腾奖主办方所有